// Check if the article Layout ?>
The Black House: Barn as holiday home
Photo: Miran Kambič
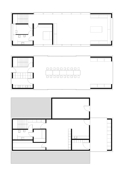
Situated on a hill, this holiday home sits enthroned on the edge of the Slovene village of Šentrupert. Arhitektura d.o.o. have transformed a barn into modern holiday accommodations.
The property comprises a house, barn, apiary and wooden pavilion. On the one hand, the Black House serves as a barn: a storage area for fruit, grain and tools, while the spacious ground floor is intended as a meeting place for the client and his business partners. The reinforced concrete construction allows the large spans required by the generous communal areas. Arhitektura d.o.o. designed the house to feature ashwood cladding on the floors, walls and ceilings.
The ground floor opens up by means of large expanses of glazing and glass sliding doors. Inspired by the existing barns in the area, the architects decided in favour of a black shell for the structure.
Project data
Architect: Arhitektura d.o.o. (Peter Gabrijelčič, Boštjan Gabrijelčič)
Construction period: 2012-2014
Client: Private
Location: Šentrupert, Slovenia
Source: Arhitektura d.o.o.








































