The Concert Hall as Sofa Cushion: Art Centre in Prague
Foto: Benedikt Markel, Jan Slavik
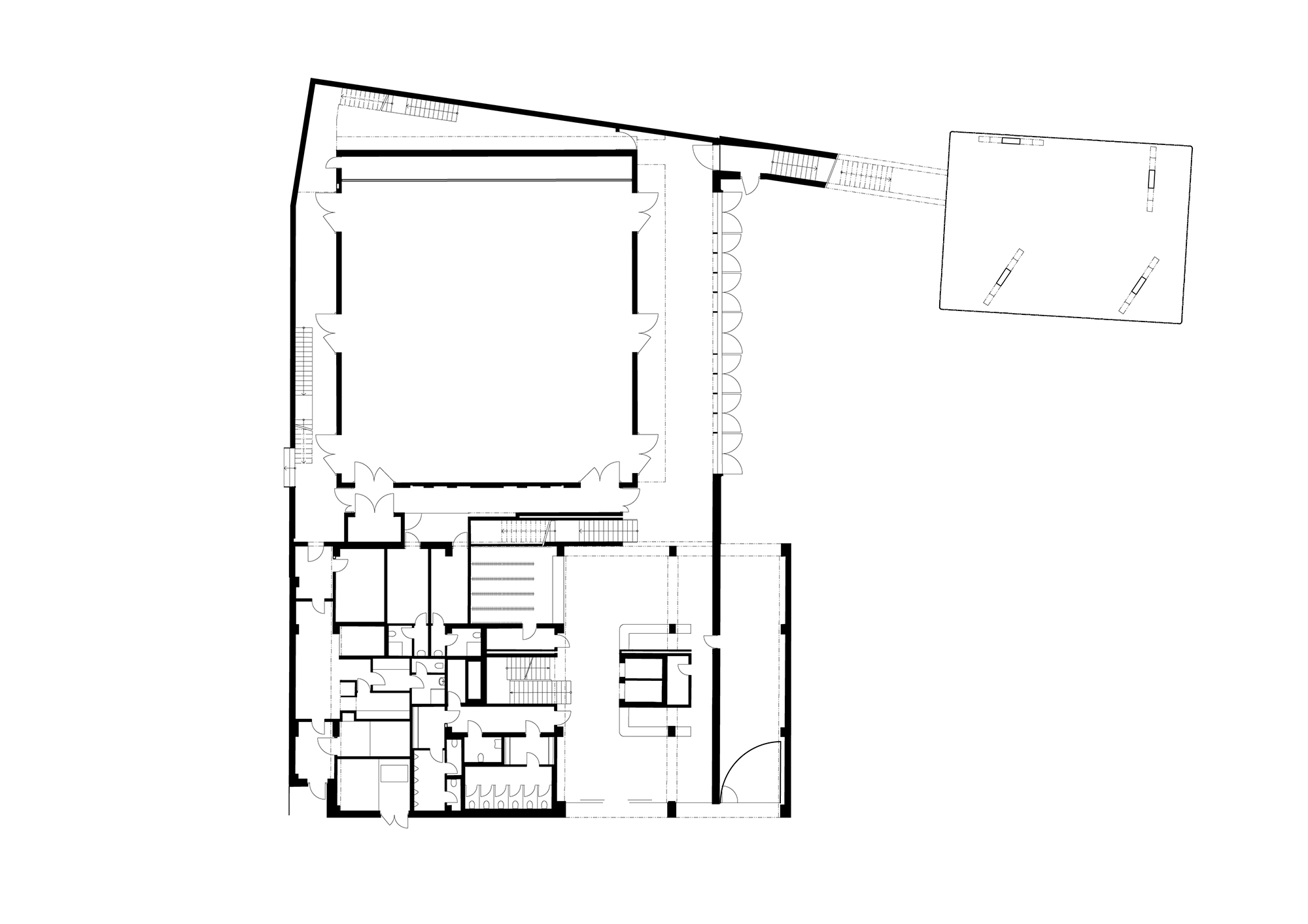
A flightless dirigible of wood and steel balances precariously on the roofs of two buildings: this used to be the trademark of the Centre for Contemporary Art DOX in Prague’s Holešovice district. Now Prague architect Petr Hájek has expanded the centre by three new structures, at least two of which display a similar character. The new concert hall, a dance rehearsal room and a school of architecture have significantly expanded the spatial program of the centre, which had previously focussed on the visual arts.
The ARCHIP school of architecture has moved into a renovated building from the 1970s that stands in the same street. In contrast, the two buildings for the concert hall and dance rehearsal room are new. In order to protect them from cold and heat, and to prevent any noise from escaping to the outdoors, the architects have enrobed the reinforced-concrete construction with mineral wool and an elastic, grey synthetic roof membrane.
This membrane is deep-anchored in the concrete with point fixtures at regular intervals. At the edges of the building, the architects used XPS insulation, which is more pressure-resistant, rather than mineral wool. The anchoring of the membrane is conceived in such a way that no tears will appear even under temperature-dependent changes to its length.
The acoustics in the hall can be adapted to the type of music being performed. Pivoting, three-sided panels beneath the ceiling serve this purpose, as do the lobbies that surround the hall. One side of each panel has a sound-absorbent, diffuse and reflective surface. Turning them varies the fadeout time in the room from 1 to 1.3 seconds. Moreover, if the doors to the adjacent lobbies are opened, the fadeout time extends to 1.6 seconds.
The dance rehearsal room is a space with floor-plan dimensions identical to those of the stage in the main hall. Above the inner courtyard, it stands on V-shaped concrete supports arranged so they do not affect traffic flow or interfere with the technical installations under the surface of the yard.
Further information:
Acoustics: AVT Group a. s. (Martin Vondrášek)
Contracting bussines: IMOS Brno, a.s.
Execution plastic sheed facade: IzoDol s.r.o.






















