// Check if the article Layout ?>
The DEAN Bar in Berlin: Club atmosphere in a tasteful interior
Photo: Patrick Batek
In their redesign of Delicious Doughnuts, a former after-hour club, into the elegant DEAN, Bruzkus Batek Architects have provided Berlin's night life a new address. The new location carries conviction, not only as a glamorous dance bar catering to an international audience but also because of its tasteful design.
Architect: Bruzkus Batek Architekten Partnerschaft, Berlin
Location: Rosenthaler Straße 9, 10119 Berlin, Germany
Architect: Bruzkus Batek Architekten Partnerschaft, Berlin
Location: Rosenthaler Straße 9, 10119 Berlin, Germany
Unlike Berlin's usual trendy Mitte district bars offering peeling stucco and flea market furnishings, the DEAN stands for an exclusive club atmosphere and refined interior design.
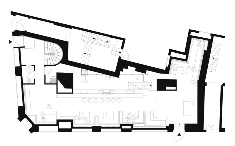
Guests arriving at the club pass through a deep black entrance area, walking over a dark mastic asphalt floor and past a marble bar to emerge into interior reaches shimmering with touches of gold, followed by a dance floor area at the rear of the club. Niches with velvet-upholstered seating are scattered throughout the bar, making an inviting effect against a backdrop of walls lined in timber and mirrored slats.
A mirrored spiral staircase leads to the cloakroom and toilets on the lower floor, where the operators have the option of installing a further dance floor. On 150 square metres of space, the DEAN has room for 230 people meeting up on weekends to enjoy extravagant cocktail creations and a varied music programme in the up-to-the-minute club.
Further information about the project in DETAIL inside 1/2015.







