// Check if the article Layout ?>
The Full Monty: Community Centre in Saint-Ouen
Photo: Ecliptique – Laurent Thion
Saint-Ouen is like many other banlieues in the northwest of Paris: the historic centre is surrounded by industrial areas which cut it off from the Seine. There is little green-space; until recently, organized free-time activities were just as rare.
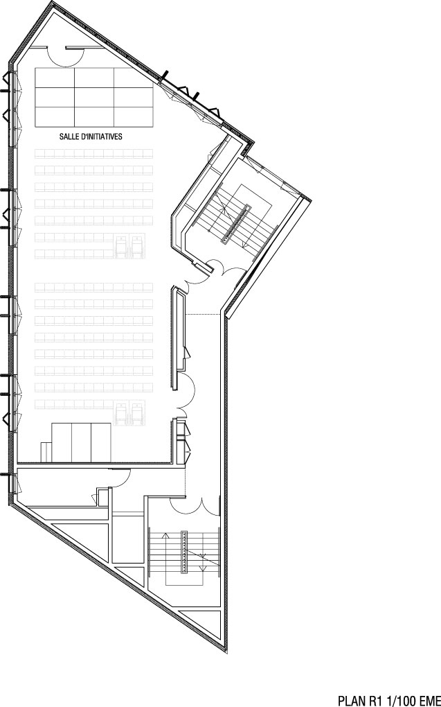
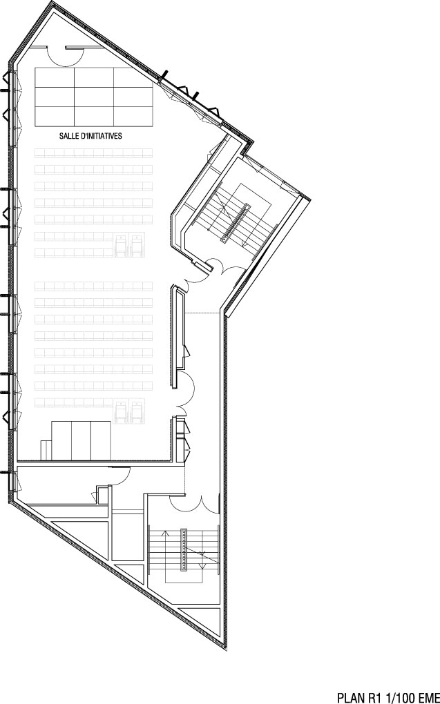
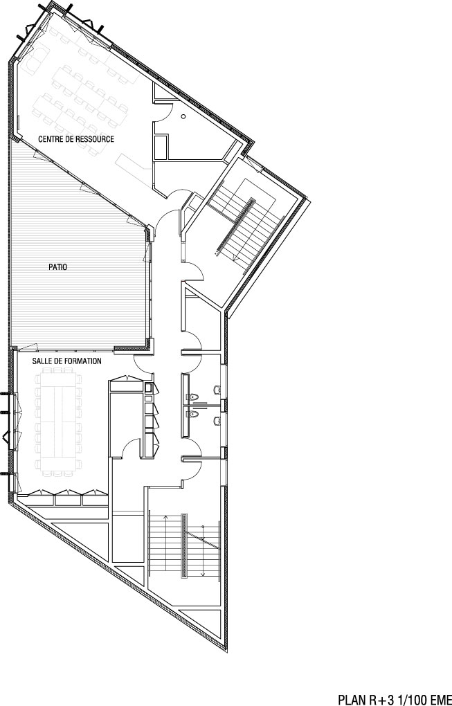
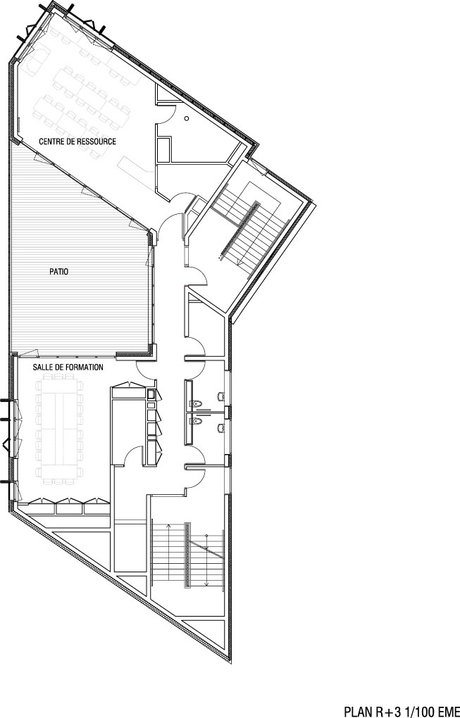
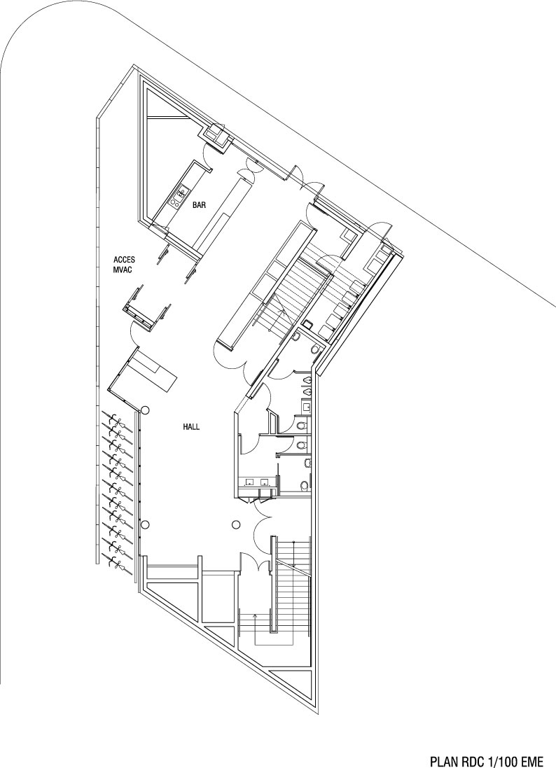
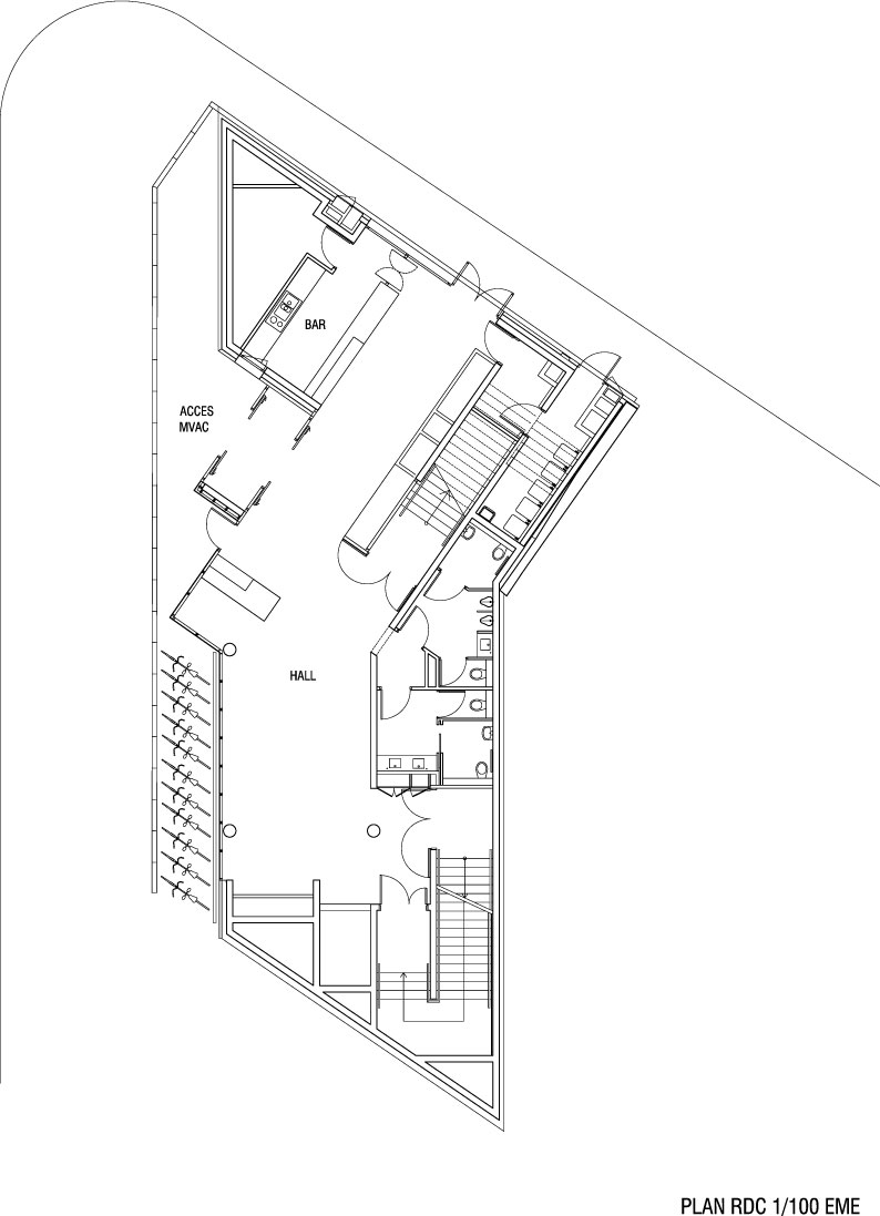
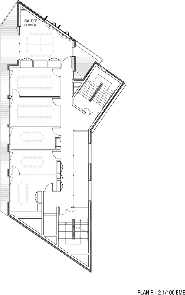
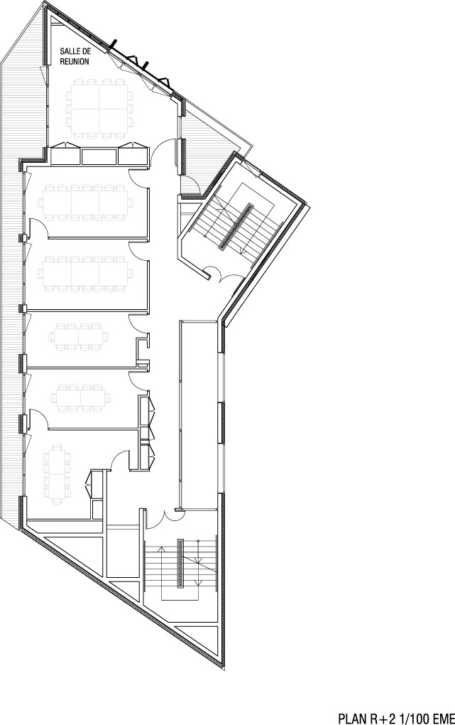
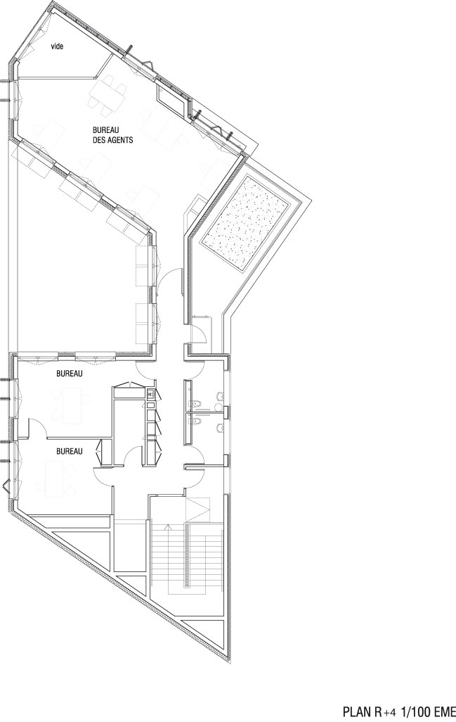
The construction of the Maison de la vie associative et du citoyen (MVAC) will change all that. The five-storey multipurpose building by Paris architects Laraqui-Bringer accommodates a theatre and exhibition space, meeting rooms, offices and an open-air terrace on the third floor. The centre will become an important meeting place for the 270-odd local clubs and their members.
The architects describe their new community centre as a “small-scale utopia whose bright, soft spaces will create social connections.” They conceived the wood-clad corner building as a contrast to the surrounding apartment houses, most of which are plastered or clad in brick. Indeed, the new centre resembles its neighbours only in its height. Its entryway faces almost directly west, opening onto the busy thoroughfare of Avenue Gabrial Péri. The windows facing this street are equipped with folding shutters which, when closed, make the larchwood façade a homogeneous shell.
The architects have set vivid accents with three zones of different colours. On the ground floor, lime-green HPL panels alternate with ceiling-high glazing. Behind that, we find the lobby, toilets and a bar. The (wood-clad) first upper storey is also the building’s tallest: it is home to the large theatre and exhibition space. On the second upper storey, an atrium takes up the entire front of the building. Meeting rooms are located behind the flaming red façade. On the third and fourth storeys, more classrooms and the offices open onto a patio. The architects had originally planned to enclose this with glass, thus creating a conservatory. However, financial constraints mean that this step has been postponed.
The new community centre is certified with the French label Haute Qualité Environnementale (HQE), for both client and planners place great value on energy efficiency, comfortable acoustics and air quality. The choice of materials is rather conventional. The wooden shell conceals a traditional concrete prefab construction, visible only on the exposed concrete interior sides of the outer walls.
Set off against the rather ordinary materials, the architects have used colour accents in the equipment and flooring. To a certain extent, these correspond to the colours of the façade; for instance, the bar on the ground floor is lime-green. Both the event room on the first upper floor and the neighbouring corridor have red flooring. On the third floor, the steel-sheeting window blinds and the floor are yellow-green. The offices on the top floor have been done in neutral greys and shades of white. Here, aside from those enjoying the use of the building, only the wood-wool panels on the ceiling and the reflections of the coloured shutters bring colour into the space.

























