Three Façades: Subsidized Apartment Building in Barcelona by Espinet/Ubach
Foto: Pedro Pegenaute
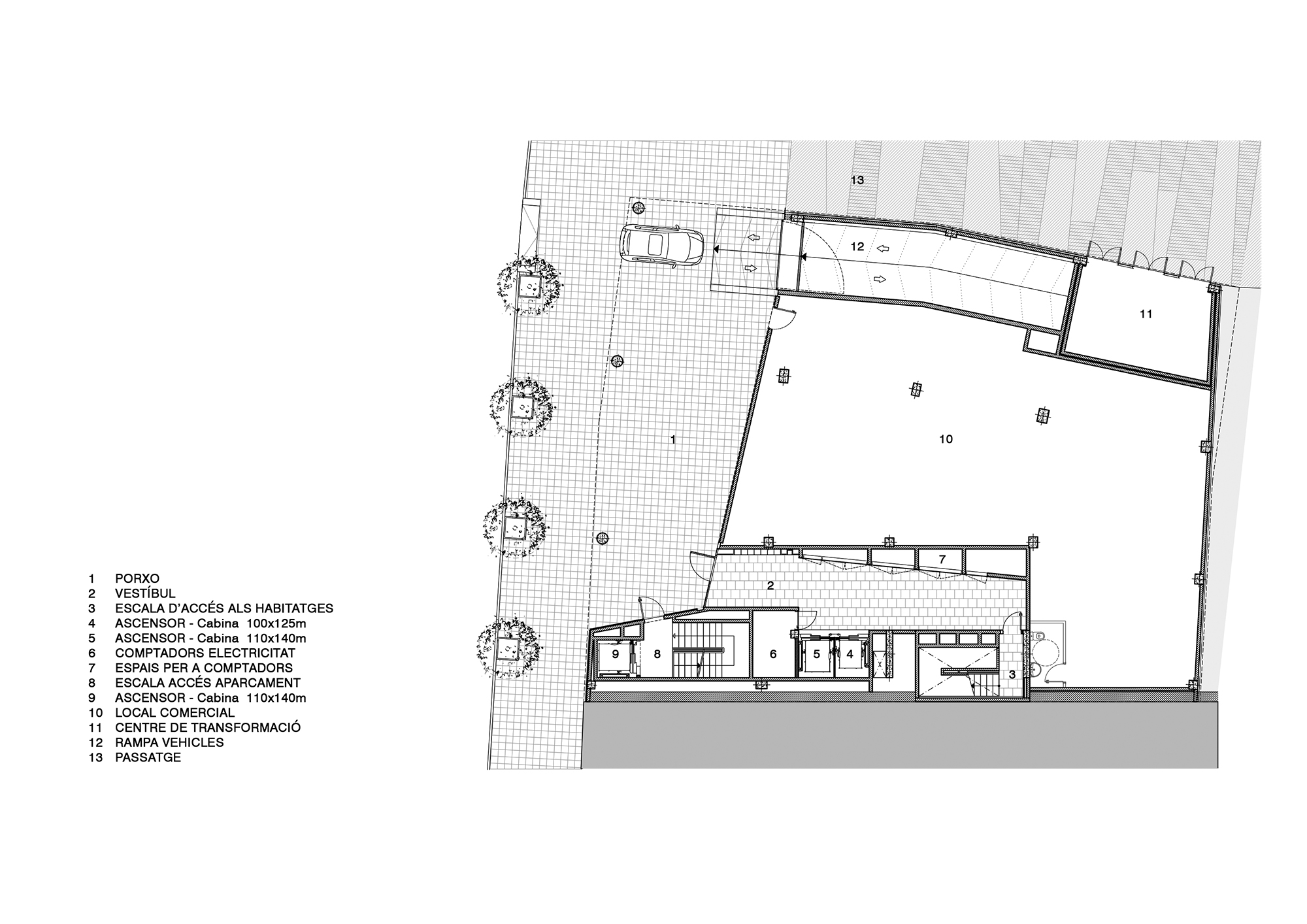
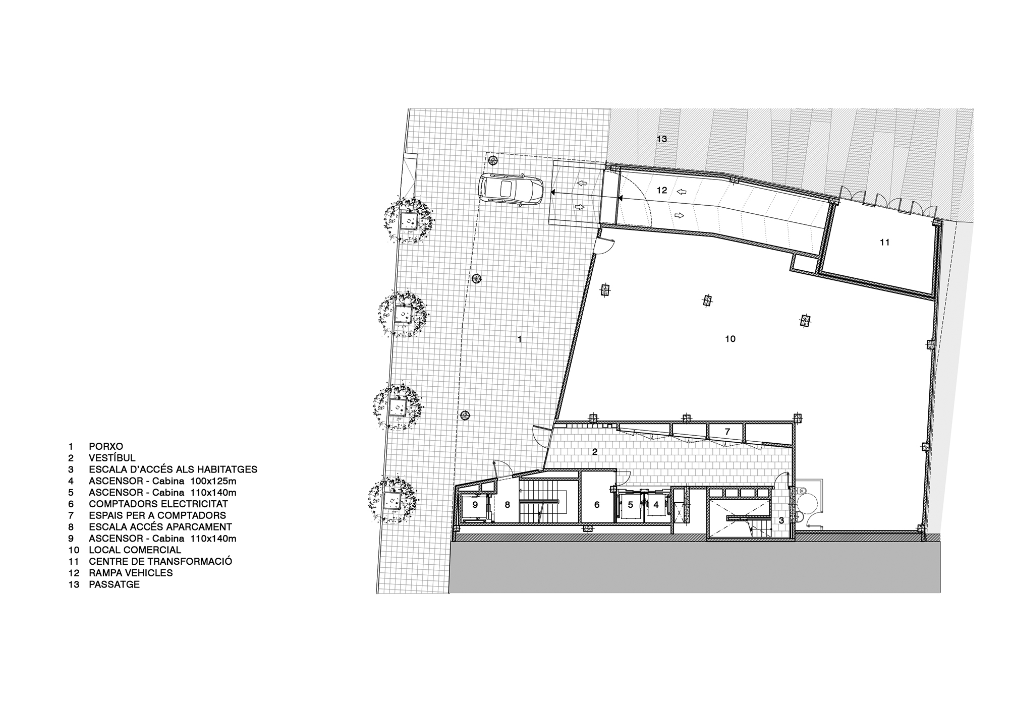
The new apartment building at the former Can Batlló textile factory is the result of a competition hosted by the Patronat Municipal de l’Habitatge de Barcelona. The design by Espinet/Urbach carried the day with a building structure that develops around a central courtyard. The challenge in the competition task lay in the various permissible building heights for the property: the design responds to this with three different façade heights.
Three Façades
The volume stands at the end of the Carrer de Parcerisa and is directly adjacent to the textile factory building. One side faces west, towards the district of Sants. To the north, a passageway leads to a park. The third façade opens entirely onto the green space to the east and shows the main face of the Can Batlló factory.
A Folded Building Shell
The slightly folded shape of the building shell breaks the geometric order of the overall body. A strong colour contrast between the dark, corrugated-like façade texture on the ground floor and the white-plastered upper storeys makes the building appear to float. The central patio is a structure traditional for Spanish buildings and is lined by gallery walkways behind sheltering, vertical metal elements. A round flowerbed at the centre enlivens the resulting open space.
Flexible Living Areas
The heart of the apartment building by Espinet/Ubach serves as a spatial distribution area from which residents and visitors can access six apartments on each floor. All the apartments have virtually identical floor plans. The service areas are arranged around the inner courtyard, while the flexible living spaces face towards the outer façade. The warmth of the spaces facing the courtyard is the result of air currents rising from the patio. In other words, the courtyard regulates the building temperature as much as it acts as a place to enjoy meeting neighbours, social activities and visual appeal.






















