// Check if the article Layout ?>
Tilted: House in Chile
Photo: Fernando Alda
Casa Bahia seems to float in front of the surrounding cliffs. All the same, it evokes a degree of lightness despite its monolithic concrete shell. The slight slope of this elongated structure gives it the look of an abstract sculpture which deliberately echoes its topographical surroundings. Simultaneously, the tilted house is meant to create a certain tension between its own oblique position and the horizontality of the ocean.
A row of irregularly placed apertures interrupts the seaward façade of the house. These openings are playfully arranged to take up the slope of the building and to conceal the life within. Moreover, they turn the unadorned structure into an abstract object which, seen from a distance, is supposed to look like a ruin. The holes in the façade hide a bower-like open area which has been set before the actual edifice like a second shell. Partly roofed-in, partly open to the skies, this buffer zone extends the interior space. The apertures allow unobstructed ocean views that look like huge paintings inside the house.
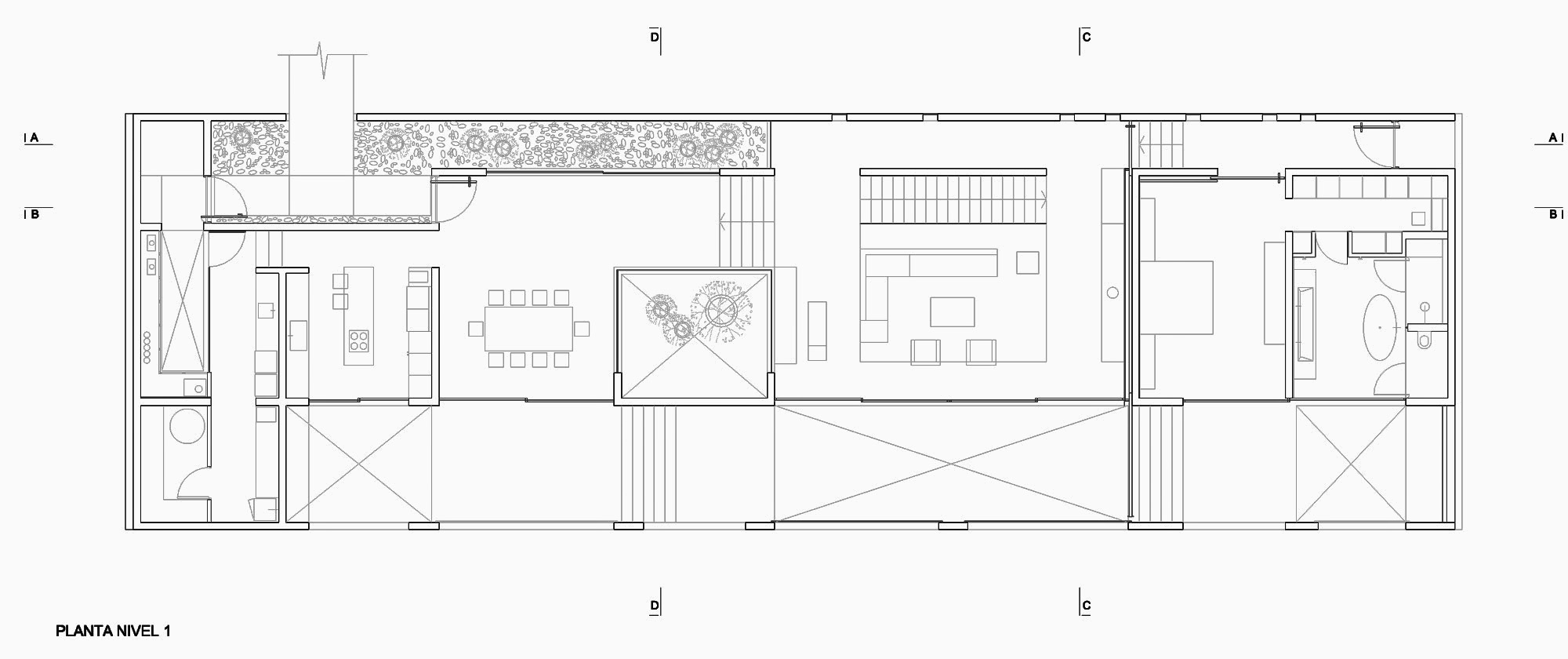
The slopeside location and tilting position of the house can be experienced directly by walking through it. The floor plan of this rectangular structure makes itself known by means of a series of carefully placed level changes that both echo the local cliffside topography and bring it indoors. The lower floor is home to the more intimate areas such as bedrooms, whose extensive glazing offers views of the rocky landscape. Upstairs, we find the communal areas of the house. An atrium located in the middle of the house creates a visual connection between both levels. Casa Bahia is a successful instance of how the specifics of the surrounding landscape and the quality of the view can be exploited to their full potential in order to create a harmonious, holistic concept. In particular, the double-shelled exterior and the interior level changes work to present an exciting, diverse spatial experience merely by walking through the house.




































