Tiny House for Four Families: Casa El Gauchal in Navidad
Foto: Bruno Giliberto
Casa El Gauchal near the surfing paradise Matanzas is one of those buildings that make it difficult to figure out what they contain. The slender volume is three storeys high, and few windows articulate the exterior with its spruce cladding glazed the same pale colour as the low-pitched standing-seam roof. The roof’s angle re-occurs in vertical form as a slight bend on the north-eastern façade. Only the annex with its truncated pyramidal roof ties in with the much lower buildings of the neighbourhood.
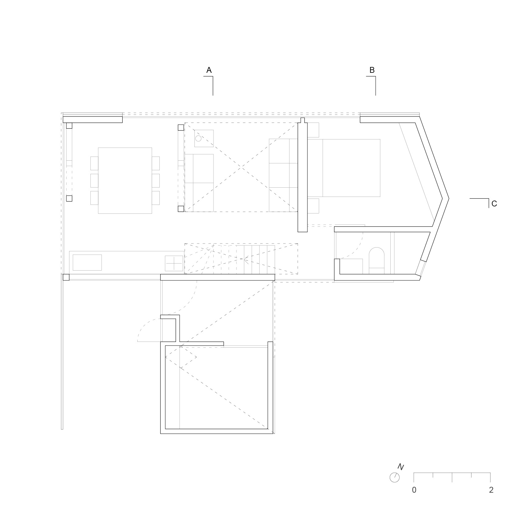
The fairly uncommon design came about for an equally uncommon reason: the clients commissioning the weekend house consisted of no less than four families. The architect Iván Bravo had to take their ideas into consideration without favouring one family or the other. This was compounded by the wish to each have a clear view of the sea – thus explaining the building’s vertical character – and also shared areas that are as spacious as possible.
All these considerations have given rise to four small and identical bedrooms, each with two or three beds, two bathrooms and a roof terrace surround the three-storey atrium containing the staircase in vertical extension of the living and dining area on the ground floor. The storey-height glazing at this level can be closed off by wooden sliding shutters. Each bedroom on the higher floors has been provided a sizeable, floor-to-ceiling window. The house was built in a timber frame construction with spot footing foundations, and has exposed timber beam ceilings and power-floated concrete floors. The interior walls are lined in the same white-glazed spruce boards as the facades.




























