// Check if the article Layout ?>
Tower Room and Patio: Houses in Amsheet
Photo: Wissam Chaaya
Amsheet, which lies about 40 kilometres north of Beirut, and its 25,000 inhabitants are a typical holiday destination on the Lebanese coast. Here, the coastline is lined with narrow pebble beaches behind which the terrain suddenly rises. Visitors will seek extensive sandy beaches in vain. Therefore, those who can afford it install their own swimming pools in front of their houses.
There are two pools on the parcel of land that Hashim Sarkis and his office have added four houses to in the past few years. In addition, they were charged with the task of redesigning the extensive free areas. The terrain falls noticeably towards the sea, but is not so steep that the houses would not have blocked each other’s views with a traditional building design. Therefore, the architects have moved the larger part of the houses underground. Only on the west side does each house open up onto a terrace cut into the grounds and the sea. The excavated material was used to set the two landward-facing houses onto small, artificially backfilled hills.
The floor plans of the four houses are nearly the same. On the lowest floor the living room, kitchen and one of the three bedrooms surround a small patio. The surrounding walls to the north, east and south are double-leaf to insulate the rooms from the cool soil.
Moreover, this allows all installation cables to be accommodated in the wall cavity. The inner patio does not only allow daylight into the living spaces, it supports cross-ventilation as well.
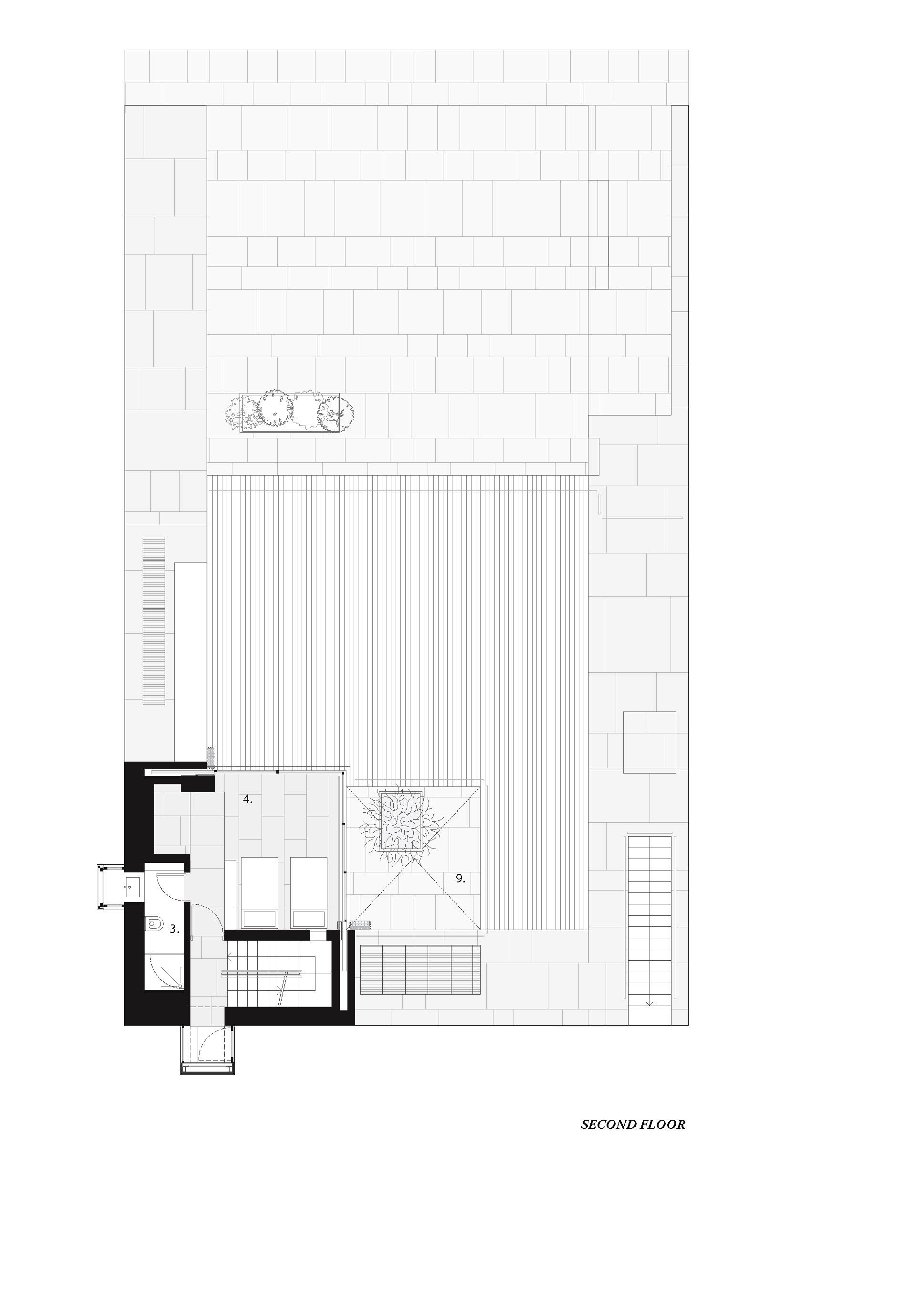
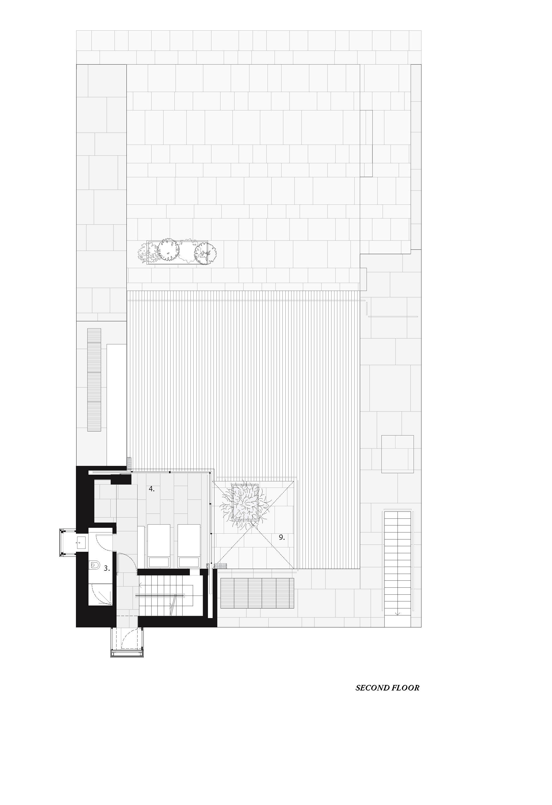
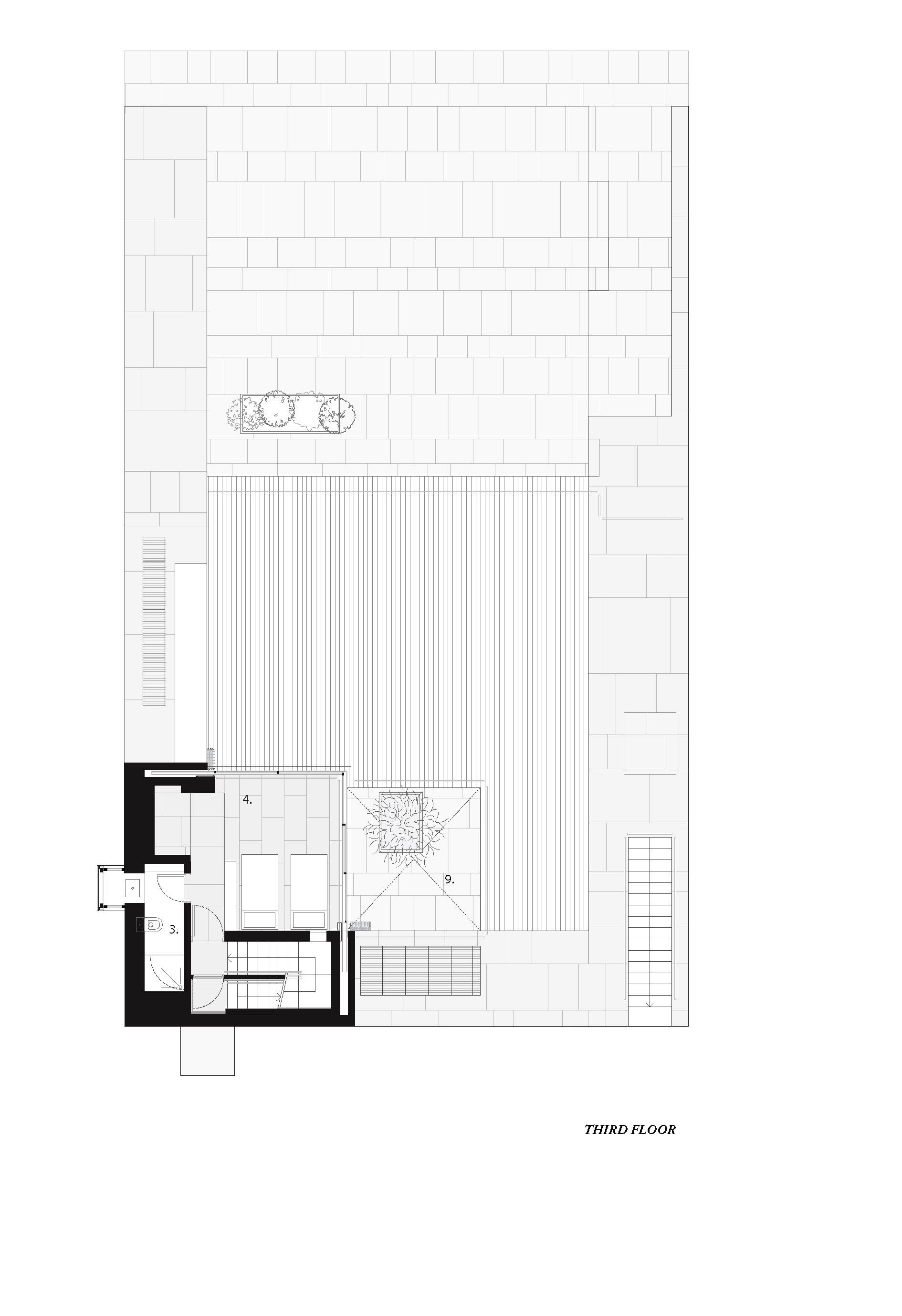
The two other bedrooms in each house are distributed over both upper levels. The onion principle of the floor-plan zoning is continued here: to the south and east – the sides with the most direct sunlight – the stairs and bathrooms are behind thick concrete walls clad with natural stone. Small, inside-out (and executed as steel constructions) oriels accommodate the house’s entrance and two sink niches in the bathrooms. In contrast, the bedrooms are in the northwest corner of the tower. The wooden shutters can be completely folded open and the windows slid entirely into recesses in the walls. Because the tower’s ceilings jut unsupported from the exterior walls, when the windows are recessed the bedrooms become open balconies measuring around 4 x 4 metres.
There are two pools on the parcel of land that Hashim Sarkis and his office have added four houses to in the past few years. In addition, they were charged with the task of redesigning the extensive free areas. The terrain falls noticeably towards the sea, but is not so steep that the houses would not have blocked each other’s views with a traditional building design. Therefore, the architects have moved the larger part of the houses underground. Only on the west side does each house open up onto a terrace cut into the grounds and the sea. The excavated material was used to set the two landward-facing houses onto small, artificially backfilled hills.
The floor plans of the four houses are nearly the same. On the lowest floor the living room, kitchen and one of the three bedrooms surround a small patio. The surrounding walls to the north, east and south are double-leaf to insulate the rooms from the cool soil.
Moreover, this allows all installation cables to be accommodated in the wall cavity. The inner patio does not only allow daylight into the living spaces, it supports cross-ventilation as well.
The two other bedrooms in each house are distributed over both upper levels. The onion principle of the floor-plan zoning is continued here: to the south and east – the sides with the most direct sunlight – the stairs and bathrooms are behind thick concrete walls clad with natural stone. Small, inside-out (and executed as steel constructions) oriels accommodate the house’s entrance and two sink niches in the bathrooms. In contrast, the bedrooms are in the northwest corner of the tower. The wooden shutters can be completely folded open and the windows slid entirely into recesses in the walls. Because the tower’s ceilings jut unsupported from the exterior walls, when the windows are recessed the bedrooms become open balconies measuring around 4 x 4 metres.
Further information:
Staff: Rola Idris, Sandra Frem, Wissam Chaaya, Samir Bitar, Pablo Roquero, Cynthia Gunadi, Penn Ruderman, Christopher Johnson, Charif Tabet, Helena Briones
Construction supervision: Polygon, sal
Planning of structural framework: Rudolphe Mattar
TGA-planning: Roger Kazopoulo
Power engineering: Transsolar Energietechnik GmbH
Electrical planning: Roger Njeim
Lanscapearchitecture: Hashim Sarkis Studios
Horticulture: Exotica
Construction supervision: Polygon, sal
Planning of structural framework: Rudolphe Mattar
TGA-planning: Roger Kazopoulo
Power engineering: Transsolar Energietechnik GmbH
Electrical planning: Roger Njeim
Lanscapearchitecture: Hashim Sarkis Studios
Horticulture: Exotica





















