// Check if the article Layout ?>
Traces of the past: Memorial by Rudy Ricciotti
Photo: Kevin Dolmaire
The former camp is a bleak and hopeless place of crumbling walls and dilapidated barracks. Built in 1939 for the military, Camp des Rivesaltes served as a transit site for France's undesirables and marginalised peoples again and again over the course of the 20th century. During the Nazi era, such people consisted of "dangerous foreigners", Jews, Sinti and Roma, and later on of prisoners-of-war and French army Algerians (known as "harkis"). Later on illegal immigrants were held there for deportation. The last part of the camp was only closed in 2007.
In the years that followed, Camp de Rivesaltes was a gaunt and barren place awaiting an appropriate way of dealing with it. Plans had already been drawn up for its demolition when the decision was taken to set up a memorial at the grounds to commemorate their past. The resulting design developed by Rudy Ricciotti in collaboration with Passelac & Roques makes a powerful statement while showing fitting respect for the historical site.
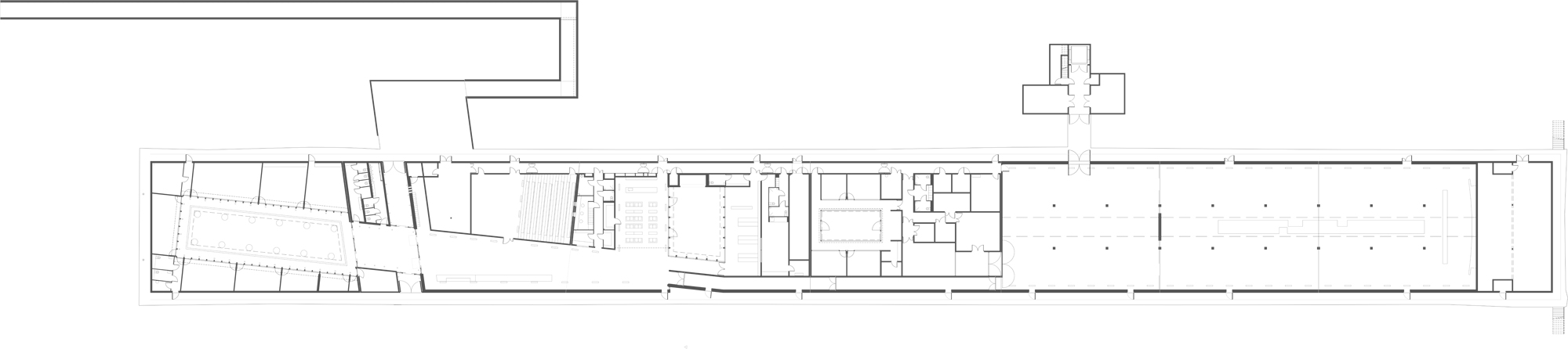
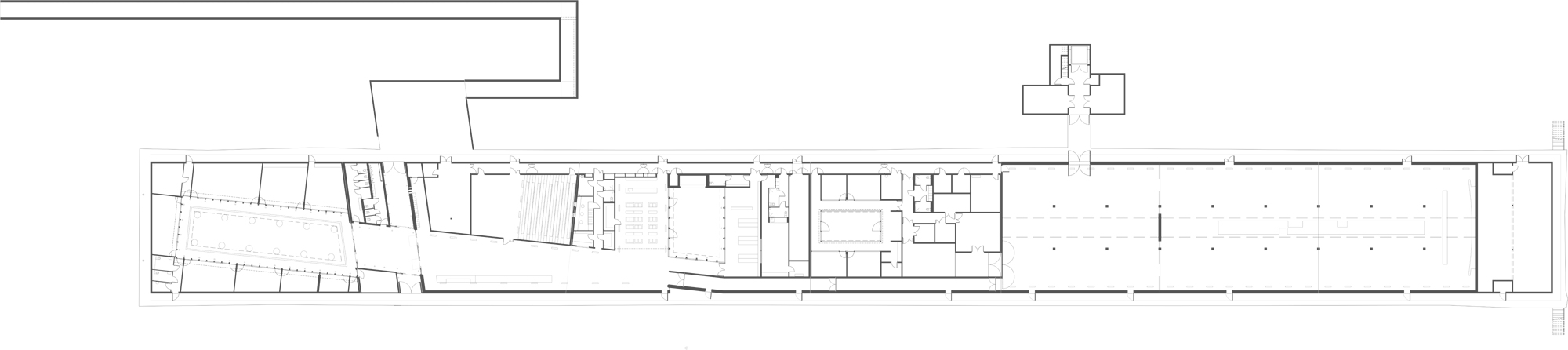
A barely noticeable structure 220 metres long and 20 metres wide now lies buried in the ground almost out of sight, and it is only on taking a closer look that the roof is seen to rise in a gentle upward slope from east to west. By not exceeding the height of the dilapidated barracks the monolithic structure subordinates itself to the surrounding ruins in a sign of respect, and at the same time matches the ochre-coloured sandy ground in colour to fit in with the surroundings.
On the northern side of the building, a ramp leads visitors down into the interior, where daylight reaches the interior rooms through small openings and three inner courts around which a workshop, meeting rooms and an adjacent auditorium are grouped along with a restaurant and administration rooms. The actual exhibition spaces, completely enclosed and located at the far end of the structure, can only be accessed along two narrow corridors that lead visitors into the depths of history as it were.




























