// Check if the article Layout ?>
Translucent ruin: "The Mansio" tours English sites
Photo: brotherton-lock
The structure is the result of a competition held by the Hexham Book Festival for a mobile tea house. The proposal submitted by Matthew Butcher, Kieran Wardle and Owain Williams found favour over those of the other invited entrants, which included the shortlisted FleaFolly Architects, Sean Griffiths Modern Architecture, NEON and Dutch artist Krijn de Koning.
The mobile structure that the book festival was in search of was to be one in which authors would be able to present their work. The resulting installation will now be putting in stops at various sites along England's Hadrian's Wall until mid-September, generally within sight of actual ruins. Formed by Butcher, Wardle and Williams out of a steel frameworkand panels of semi-translucent polycarbonate, The Mansio embodies the ghost of a ruins, in this way paying homage to both the classical Roman mansio(Latin for stopping or resting place) as well as the industrial architecture of North England. The translucency of the polycarbonate changes with the swift succession of clouds and sunshine that typify an English summer, and thus the appearance of The Mansiovaries according to the weather.
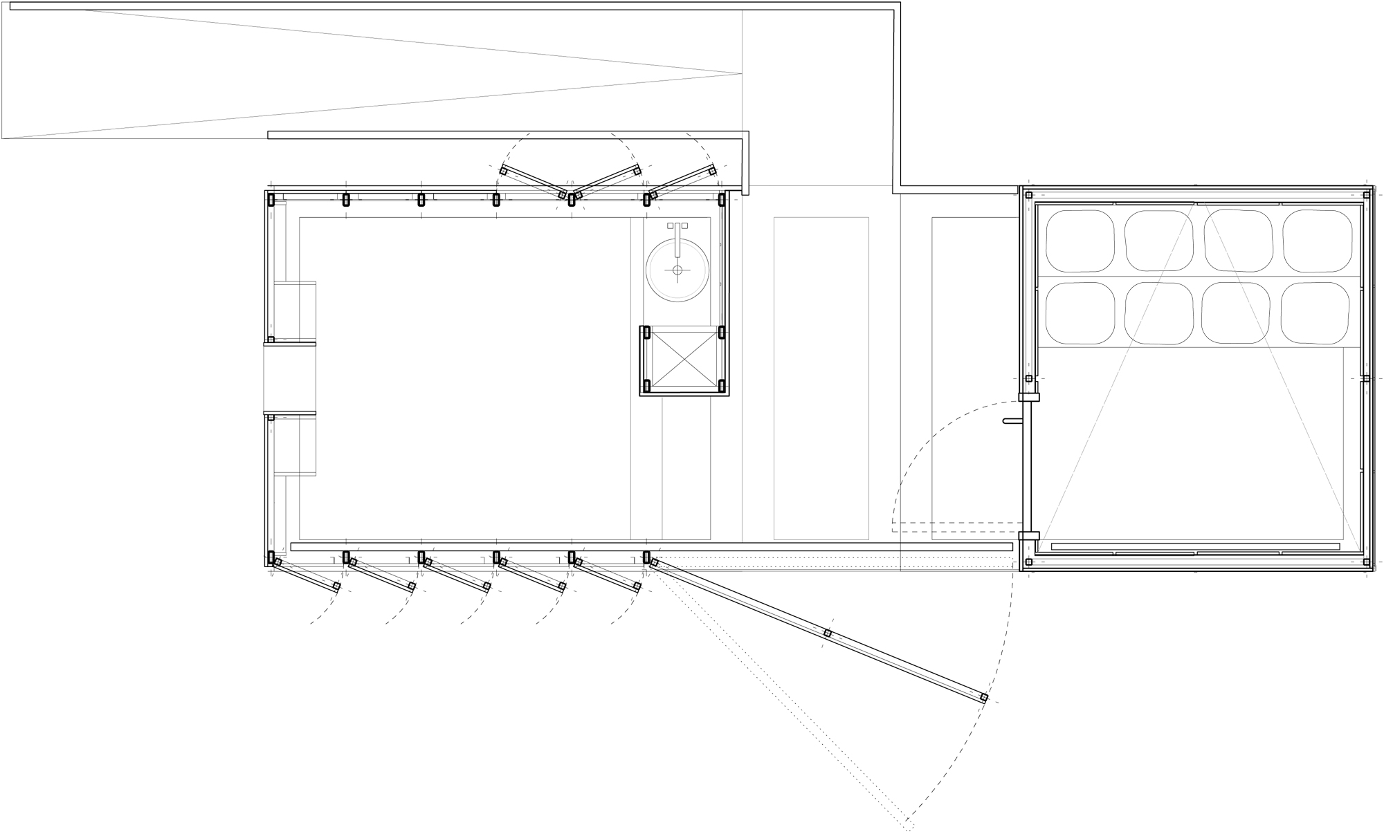
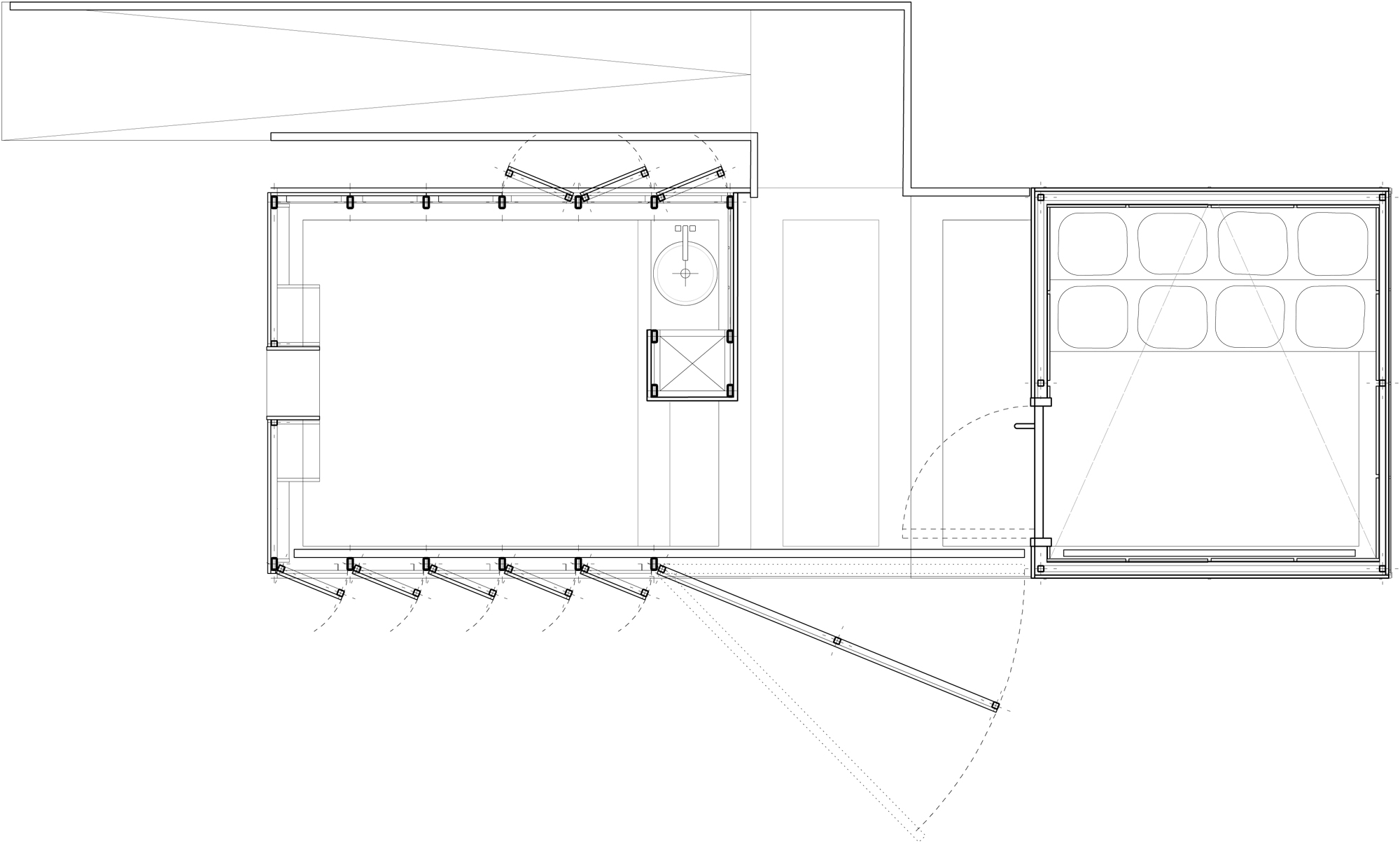
On one side the structure consists of a Gatehouse, with the gate expressed in the form of hinged,fin-like shutters that let in light and air into the room, which is mainly reserved for drinking tea and viewing the landscape. In the middle the structure opens up to form ahalf-covered space where films can be shown in good weather. The most closed-off area is on the other side, and is used for running short films on the authors and poets. The shape of this section is reminiscent of a stylised horse's head, which according to Butcher was not at all intentional. But it is not that surprising either, since, as Butcher relates, his work is influenced by John Hejduk, an architectwho useszoomorphic and anthropomorphic forms. And the idea that such shapes can create empathy is one that appeals to Butcher.
The installation is crowned by a tower– the most implicit reference to the industrial buildings of the region. As The Mansio will be moving to various spots over a six-month period, the tower also serves to signal its presence at each of the venues it travels to.
Matthew Butcher teaches at the UCL Bartlett School of Architecture and is the founder of the Postworks studio office as well as P.E.A.R.:Paper for Emerging Architecture Research, a magazine that examines the broad field of architects' interests beyond the pale of the mainstream press. A new issue is to be published this year again following a two-year break.











