A Tower with a Kink: The Muse in Rotterdam
Foto: Christian van der Kooy
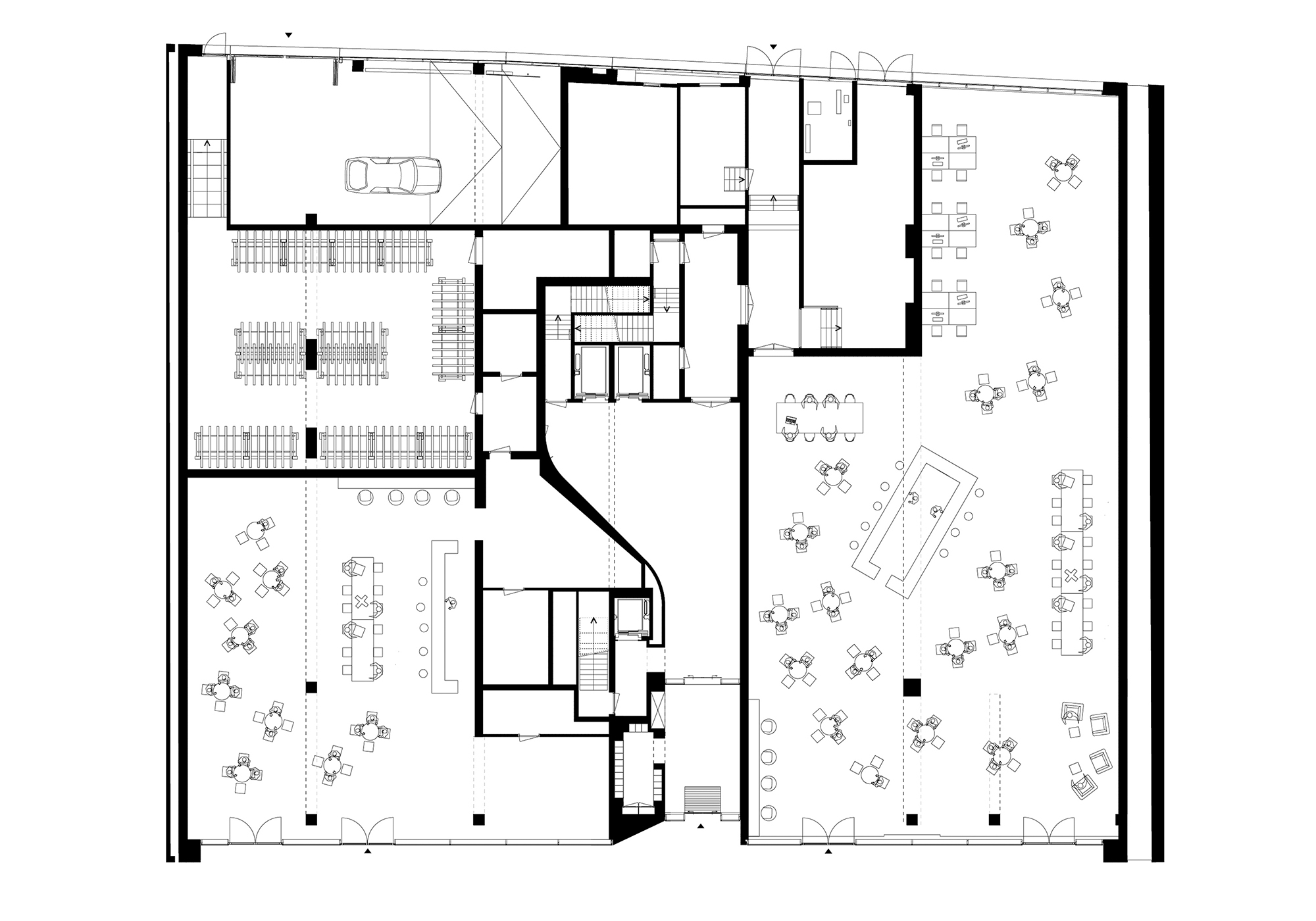
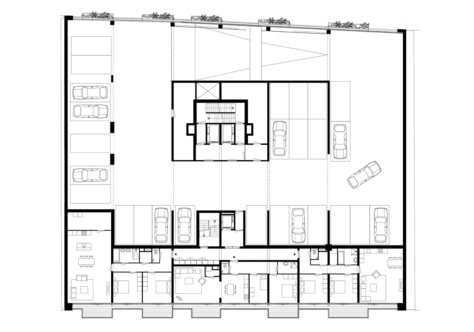
Seinen Ehrentitel „Manhattan an der Maas“ trägt Rotterdam nicht zu Unrecht: Inmitten all der Hochhäuser, die in der Hafenstadt in den letzten Jahren entstanden sind, gehört The Muse von Barcode Architects mit seinen 74 Metern nicht einmal zu den höchsten. Das jedoch macht der Neuzugang mit seiner zentralen Lage und der ungewöhnlichen Silhouette wett: Über einem sechsgeschossigen Sockelbau ragt das Hochhaus mit elegantem „Hüftschwung“ empor. Die Initiative zu seinem Bau geht auf die Architekten selbst zurück, die hier, am ehemaligen Standort eines städtischen Verwaltungsbaus, die Chance sahen, zentral gelegene Eigentumswohnungen für eine zahlungskräftige Klientel zu realisieren. Die Käufer der Wohnungen genießen Fernblick aus der verglasten Nord- und Südfassade mit den vorgelagerten, durch weiße Brüstungsbänder verbundenen Balkonen. Die deutlich geschlosseneren West- und Ostfassaden bilden einen Rahmen aus geschosshohen, anthrazitfarbenen Betonfertigteilen rund um das Gebäude. Am Taillenansatz des Turms zwischen dem 5. und 8. Obergeschoss realisierten die Architekten eine Art Terrassenhaus-Typologie mit besonders großzügigen Freisitzen. Der Gebäudesockel enthält neben Läden und einem Fitnesszentrum auch eine dreigeschossige oberirdische Parkgarage. Im fünften Obergeschoss stehen den Bewohnern zusätzliche Gästezimmer mit Zugang zur Dachterrasse zur Verfügung. Die Terrasse wird The Muse künftig mit dem nochmals 35 m höheren Wohnturm „CasaNova“ verbinden, der auf dem Nachbargrundstück derzeit ebenfalls nach Plänen von Barcode Architects entsteht.


















