// Check if the article Layout ?>
Undulating forms: House and stables by Casey Brown Architecture
Photo: Rhys Holland
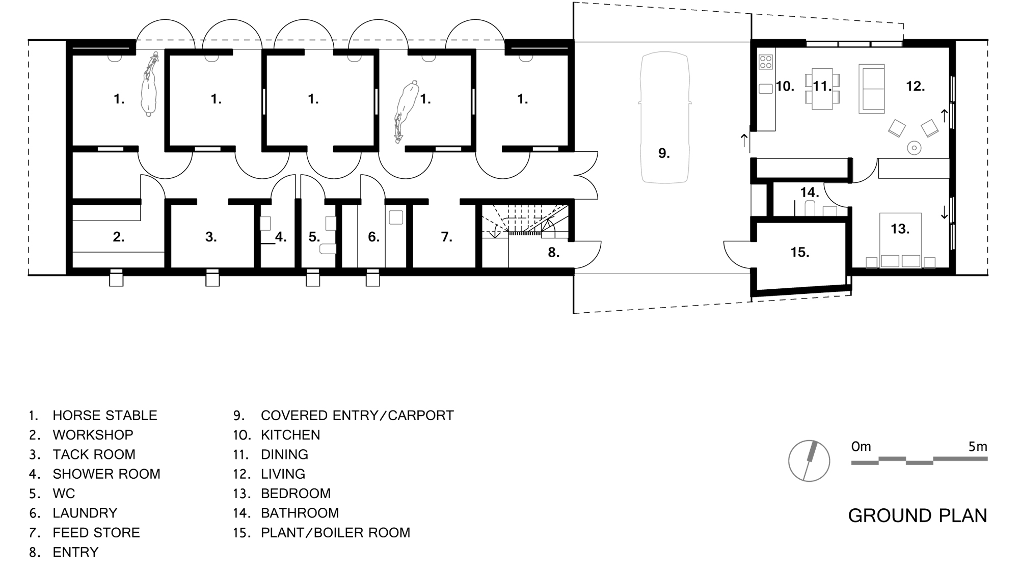
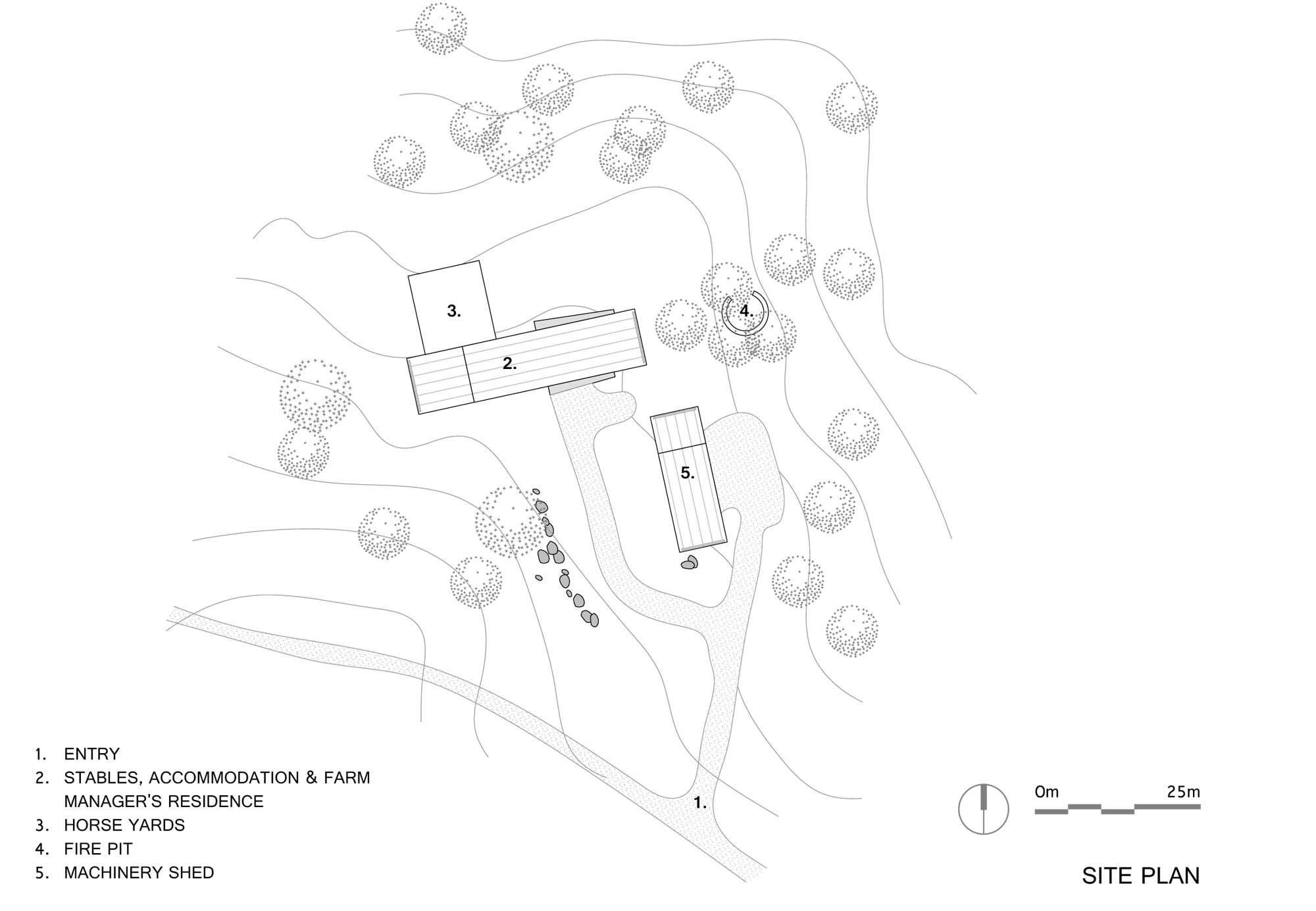
The building ensemble not far from the village of Thredbo in the Snowy Mountains consists of two volumes: a long accommodation and stables building with an east-west alignment, and smaller machinery shed to its east that forms a barrier from the winter winds. A large drive-through passage divides the main building at the ground floor level into its separate components, and as such serves variously as a large sheltered entrance area, as a place for hitching horses and parking vehicles and as a practical storage area.
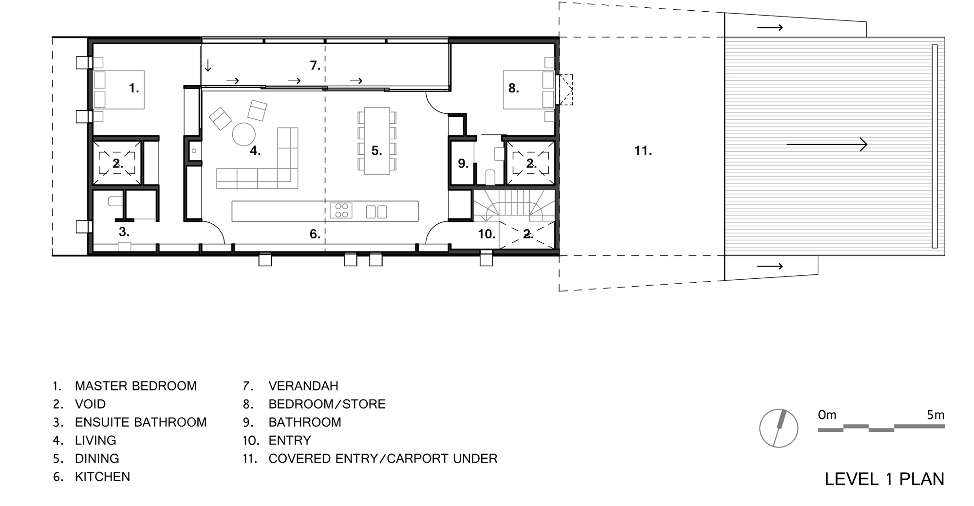
While the farm manager's accommodation is located to the right of the covered passage, the stables complete with the associated tack room, feed store and workshop are situated on the left, and are topped by two-bedroom accommodation that is dominated on its north side by a large loggia offering expansive views of the hilly bush landscape. To the south, the building is punctuated by a large number of small square windows that create a playful touch.
The two farm buildings are completely clad in a skin of silvery corrugated steel that makes a powerful statement and lends them a homogeneous look. The corrugated steel is complemented here and there with Corten steel panels that provide both visual accentuation as well as protection from bush fires. Robust indoor materials such as steel and concrete underscore the agricultural character of the ensemble, while the fitted wooden elements in the residential quarters create a warm and homely feel.
The specific forms of the structures not only recall the style of local farm buildings but are also part of a passive energy concept, with the shape of the buildings and their gently sloping roofs providing an answer to extreme climatic conditions such as snow and wind. Overhangs and deep window reveals provide a structural means of protection from the glare of the sun, and a rainwater collection system ensures a sufficient supply of water. The contemporary form idiom and the buildings' durable materials breathe new life into the farm style typical of the region, resulting in an unusual lodging for man and beast.
more Information:
Design: Rob Brown
Team: Vince Myson und Siobhan Berkery, Myson and Berkery Architects
Engineer: Ken Murtagh, Murtagh Bond
Building contractor: Bellevarde Constructions
Team: Vince Myson und Siobhan Berkery, Myson and Berkery Architects
Engineer: Ken Murtagh, Murtagh Bond
Building contractor: Bellevarde Constructions

























