// Check if the article Layout ?>
Unique All Around: Elizabethan Theatre by Calais
Photo: Martin Argyroglo
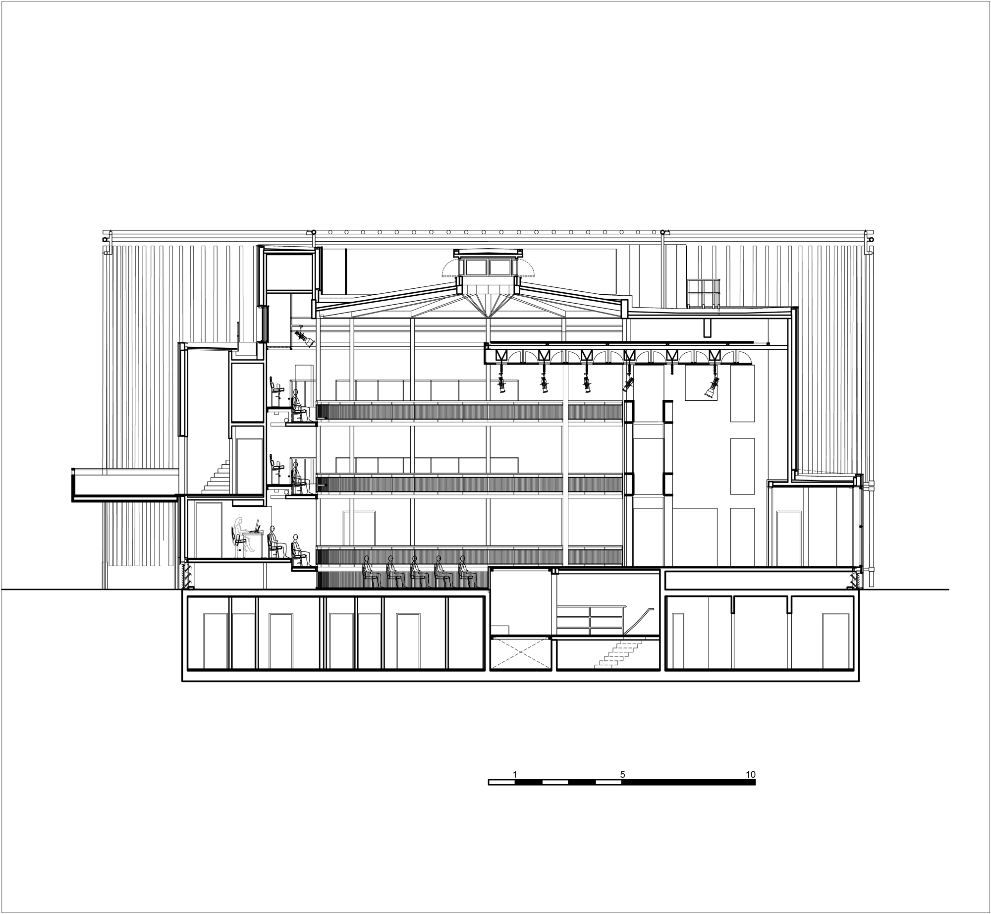
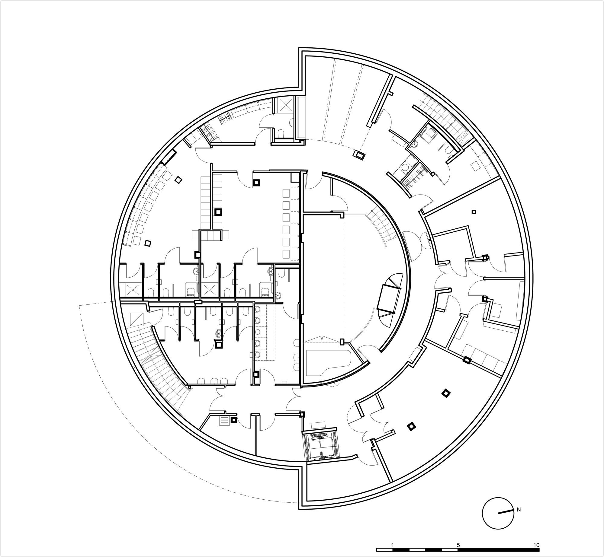
The core of the structure is home to a proscenium stage, 388 seats over three levels and a completely roofed-in auditorium, which can be transformed into a baroque-style opera house. The corridors and other areas are arranged like petals around a rose: the foyer, which is lit from above, the main stairway, which leads to the outer balconies, the cloakroom and the escape stairs. All these areas are constructed of massive spruce panels in a method Andrew Todd claims has never been used before. The entire cylinder is surrounded by a radial ribwork of 12-metre-high bamboo poles imported from Bali. The crown of the roof functions as a giant chimney whose light air currents provide good ventilation in the auditorium. This, along with the building’s unusually low energy consumption, make the Elizabethan Theatre a forerunner of naturally ventilated cultural institutions in France.
In the nineteenth century John Hare, a close friend of the English author Charles Dickens, refurbished Château d’Hardelot in the Tudor style. Since 2007 the castle, which has an 800-hectare park, has been home to the Centre culturel de l’Entente cordiale. Regular exhibitions, conferences and theatre or music events regularly take place here as a means to strengthen the friendship between France and the UK. Thanks to the growing popularity of the annual Midsummer Festival, which is held in the castle’s garden, the Department of Pas de Calais hosted a competition for the design of a permanent theatre. The ecological and historically appropriate design by British studio Andrew Todd was the winner.
Apart from the closed-in roof, the round floor plan, wood cladding and amphitheatre-like auditorium are a deliberate nod to the round design of the Renaissance-era Elizabethan theatre. London’s Globe Theatre has become famous with the reopening of Shakespeare’s Globe. However, in France the round shape was generally forbidden because of the social hierarchies in place at the time. This makes the Elizabethan Theatre unique to France. In 2014, the theatre was officially inaugurated by HM Elizabeth II on the occasion of a state visit to France.
This Elizabethan theatre, whose permanence, materiality and ecological efficiency make it unique to France, is a successful symbol of respectful cooperation and cultural exchange between countries.
In the nineteenth century John Hare, a close friend of the English author Charles Dickens, refurbished Château d’Hardelot in the Tudor style. Since 2007 the castle, which has an 800-hectare park, has been home to the Centre culturel de l’Entente cordiale. Regular exhibitions, conferences and theatre or music events regularly take place here as a means to strengthen the friendship between France and the UK. Thanks to the growing popularity of the annual Midsummer Festival, which is held in the castle’s garden, the Department of Pas de Calais hosted a competition for the design of a permanent theatre. The ecological and historically appropriate design by British studio Andrew Todd was the winner.
Apart from the closed-in roof, the round floor plan, wood cladding and amphitheatre-like auditorium are a deliberate nod to the round design of the Renaissance-era Elizabethan theatre. London’s Globe Theatre has become famous with the reopening of Shakespeare’s Globe. However, in France the round shape was generally forbidden because of the social hierarchies in place at the time. This makes the Elizabethan Theatre unique to France. In 2014, the theatre was officially inaugurated by HM Elizabeth II on the occasion of a state visit to France.
This Elizabethan theatre, whose permanence, materiality and ecological efficiency make it unique to France, is a successful symbol of respectful cooperation and cultural exchange between countries.
Finalized: Mai 2016
Associate: Andrew Todd, Niclas Dünnebacke, Philip Mellor-Ribet, Solveig Rottier, Nadia Raïs
Engineering office: LM Ingénieur
Theater: Charcoalblue
Structual fire protection: Cabinet Casso
Landscapearchitecture: L + A
Calkulation of costs: Bureau Michel Forgue
CGI: Morph
Associate: Andrew Todd, Niclas Dünnebacke, Philip Mellor-Ribet, Solveig Rottier, Nadia Raïs
Engineering office: LM Ingénieur
Theater: Charcoalblue
Structual fire protection: Cabinet Casso
Landscapearchitecture: L + A
Calkulation of costs: Bureau Michel Forgue
CGI: Morph






























