// Check if the article Layout ?>
Vaulted and expanded: Vector Architects refurbish Captain’s House
Foto: Vector Architects, Chen Hao
Die Rahmenbedingungen des Projekts gibt das in die Jahre gekommene Captain‘s House vor, das sich am Südostende der Halbinsel Huangqi befindet. An einer Engstelle, umgeben von der ostchinesischen See, fügt sich das Wohnhaus in die dichte Bebauungsstruktur ein. Während zu beiden Längsseiten Nachbargebäude angrenzen, eröffnen die Queransichten konträre Ausblicke auf das Meer: zum einen nach Osten auf die ruhige See, zum anderen zum geschäftigen Hafen im Westen.
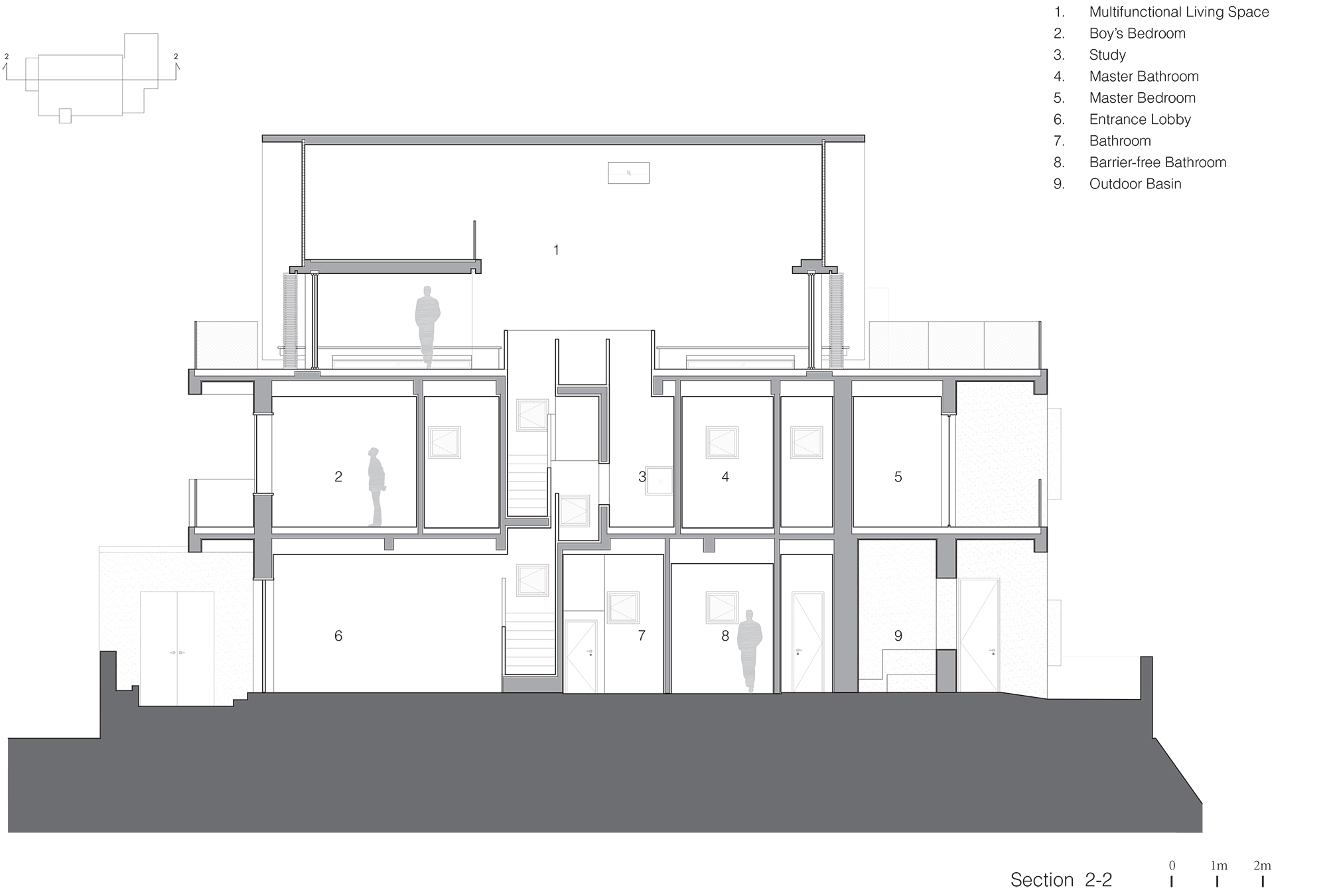
Im Mittelpunkt stand die Sanierung der Bausubstanz. Das Ziegelmauerwerk wird durch eine Betonverstärkung statisch und bauphysikalisch auf den neuesten Stand gebracht und passt sich in zartem Beige an die von Erdtönen geprägte gebaute Umgebung an. Sämtliche Öffnungen sind in Beton eingefasst und ragen wie Bullaugen aus der Fassade. Dieser Effekt verleiht ihr neben Witterungsschutz außerdem eine gewisse Plastizität. Den krönenden Abschluss des Projekts bildet ein neues Dach, das gleichzeitig eine Aufstockung darstellt. In Form eines tonnenförmigen Gewölbes legt es sich über das Captain‘s House und kommt somit dem Wunsch des Bauherrn nach mehr Platz nach. Außerdem beugt seine Geometrie undichten Stellen vor und überzeugt somit nicht nur in optischer Hinsicht.
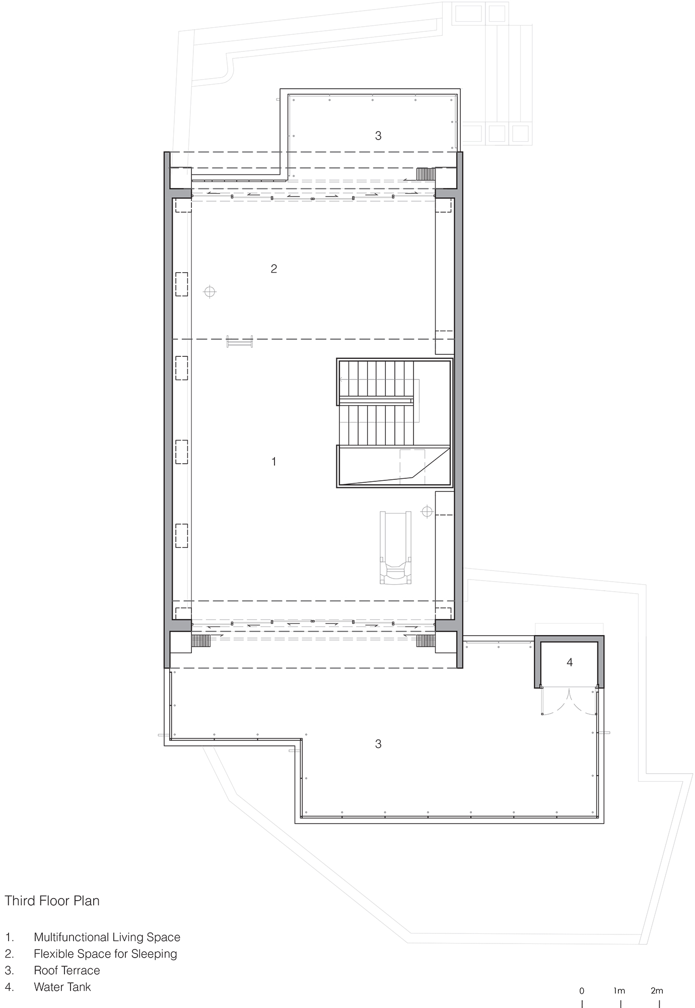
Dem rechteckigen Grundriss des Bestands widmen sich Vector Architects mittels einer Reorganisation des Raumprogramms. Im Zuge dessen werden Bäder und Erschließungskern ins Zentrum verlegt und machen Platz für zum Meer orientierte luft- und lichtdurchflutete Wohn- und Schlafbereiche. Entlang der Querfassaden erweitern Innenhof, Terrassen und Balkone den Wohnraum nach außen hin.
Bei der Gestaltung der Innenräume setzt man auf eine klare, ruhige Linie. Einbauten aus dunklem Kirschholz übernehmen zwei Funktionen: Sie dienen der Ausstattung und sind raumbildend. Über tiefe Fensterlaibungen, die zu Sitzecken oder Tisch werden, rückt das Holz den Bereich zwischen Innen und Außen in den Fokus und inszeniert diesen bewusst. Unter dem Gewölbe entsteht ein großer Multifunktionsraum in dem sich die Struktur der feinen Schalung deutlich auf den rohen Sichtbetonwänden abzeichnet und zum gestalterischen Element wird. Der Raum wandelt sich je nach Bedarf zur Unterkunft für Gäste, Fitnessraum oder gar zur hauseigenen Kapelle. Die Querabschlüsse sind im oberen Teil in Glasbausteinen ausgeführt, durch die tagsüber diffuses Licht ins Innere fällt und abends nach außen tritt. In südlicher Richtung öffnet sich die Betonkonstruktion in einer raumhoch verglasten Luke und gibt über den Dächern der Nachbarbauten einen ungehinderten Ausblick frei.
































