// Check if the article Layout ?>
Vertically Rhythmic: Gymnasium by Atelier Zündel Cristea
Photo: Sergio Grazia
The district of Neudorf, near Strassbourg, is currently undergoing a comprehensive new development program aimed at creating closer ties to the inner city by means of increased urban density. One of the flagship projects is this gym, which can be seen from the main thoroughfare. Sunk two metres into the ground, the new structure does not overwhelm its neighbouring buildings, but rather finds its place in the urban environment.
It did not take the architects long to choose the materials for the gym. The purpose of the building as a place of athleticism meant that concrete was the natural choice for the foundation. On either side, the concrete rises obliquely from the ground, forming a sculptural shape in the entryway. In contrast to the massive substructure, the cube itself consists of a steel-reinforced wooden construction. With a wheel base of 1.6 metres, the superimposed construction creates an evenly spaced façade which gives the austere building a delicate note.
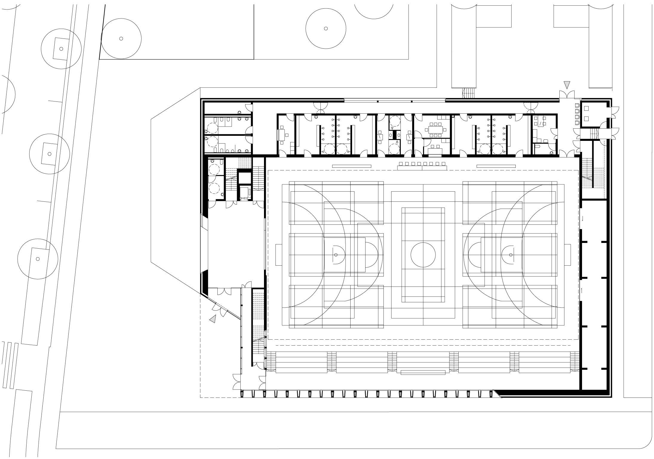
The gym can be accessed by means of two different entryways. The main entrance, located on the ground floor, is aimed at the public, while a second entrance is meant for sports clubs or school groups. Along with the lobby, the sunken foundation also houses a cafeteria, dressing rooms and a generous multifunctional gymnasium, whose meandering bank of windows allows natural light in on all sides. Aside from the skylight, the main gym area features a striking, grid-like ceiling construction. On the upper floor there is another, smaller gym space that is used for fencing and has its own dressing area.
Fencing, handball, basketball, badminton or gymnastics: Neudorf’s new gymnasium is a suitable home for any sport. Despite its extensive spatial program created under specifically determined prerequisites, the result is a clear, compact structure with an austere, but not bleak, geometry. The vertically rhythmic façade has made a rather playful building shell that stands modestly among its neighbours.





















