Wooden house with brick rotunda
Villa Bjorland in Stavanger by Vatn Architecture
Red bricks meet dark wood at Villa Björland. Both materials were added during the renovation. © Johan Dehlin
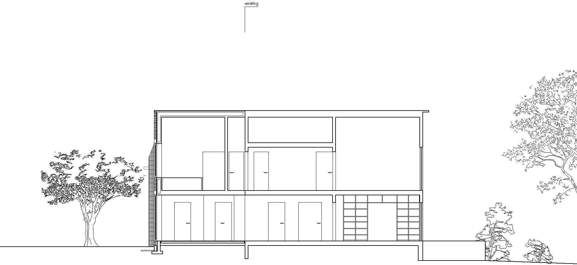
Like thousands of similar construction projects, the renovation of Villa Bjorland began when a family of five bought a dilapidated 1950s house and decided to make it more energy efficient and larger. The house originally had a wooden frame, but a double-shell brick exterior wall was added to the north side in the 1970s.


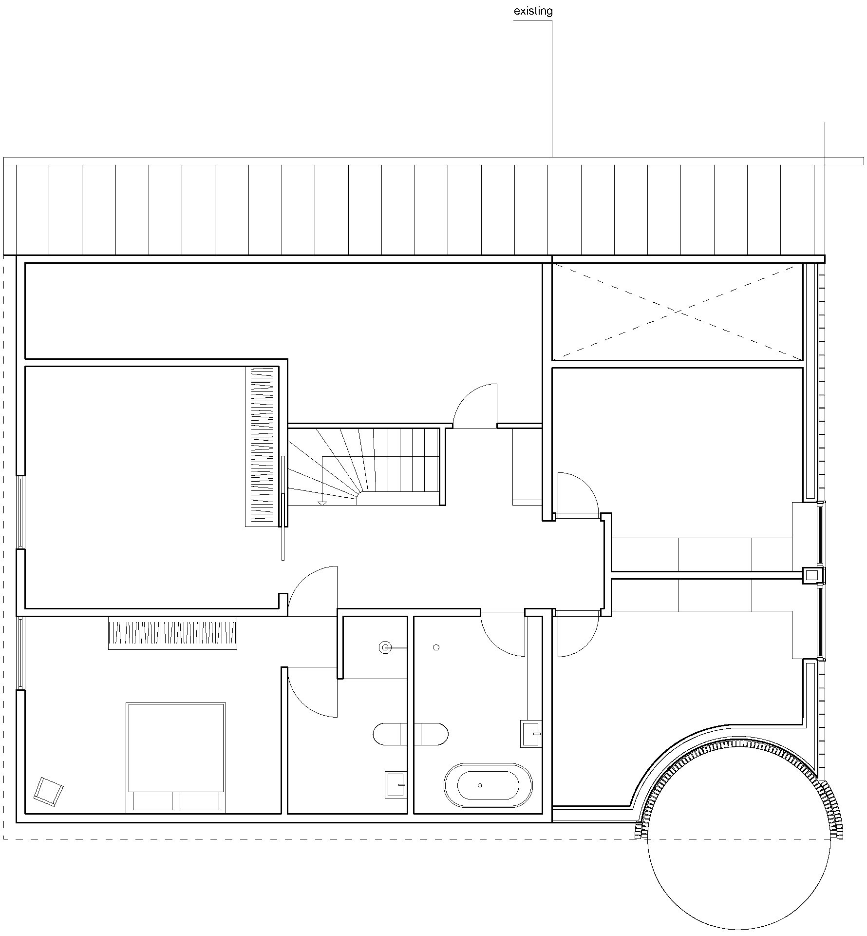
On the ground floor, the view extends across the entire house. The two windows on the upper floor are in the two children's rooms. © Johan Dehlin
Dark pine wood and red brick
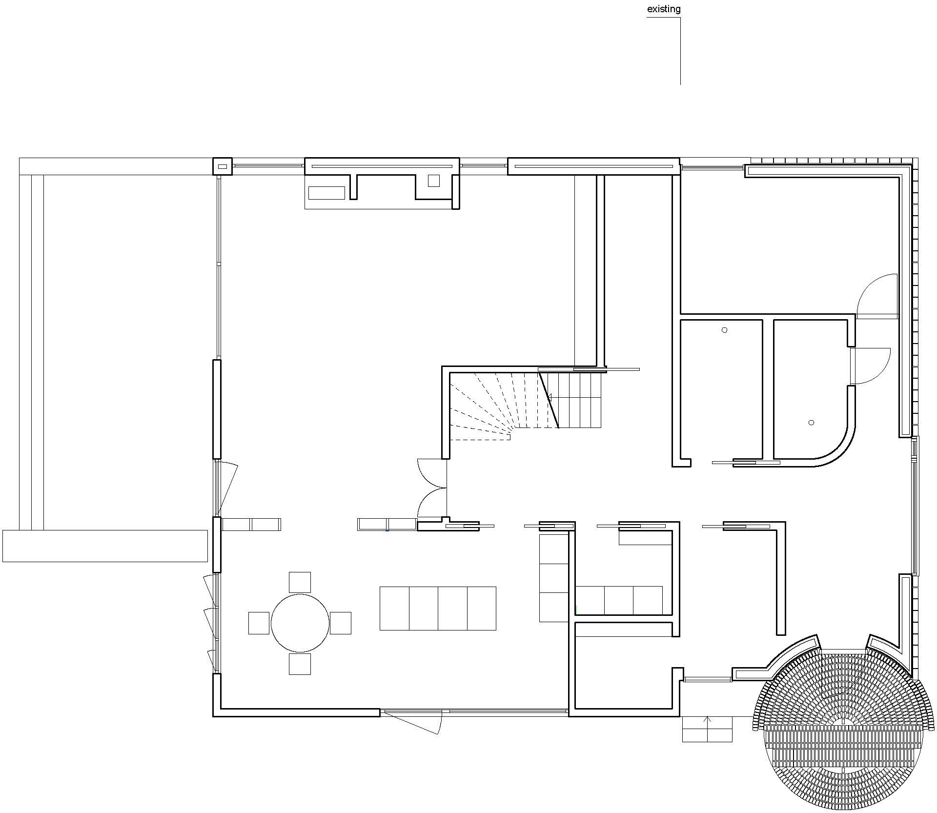
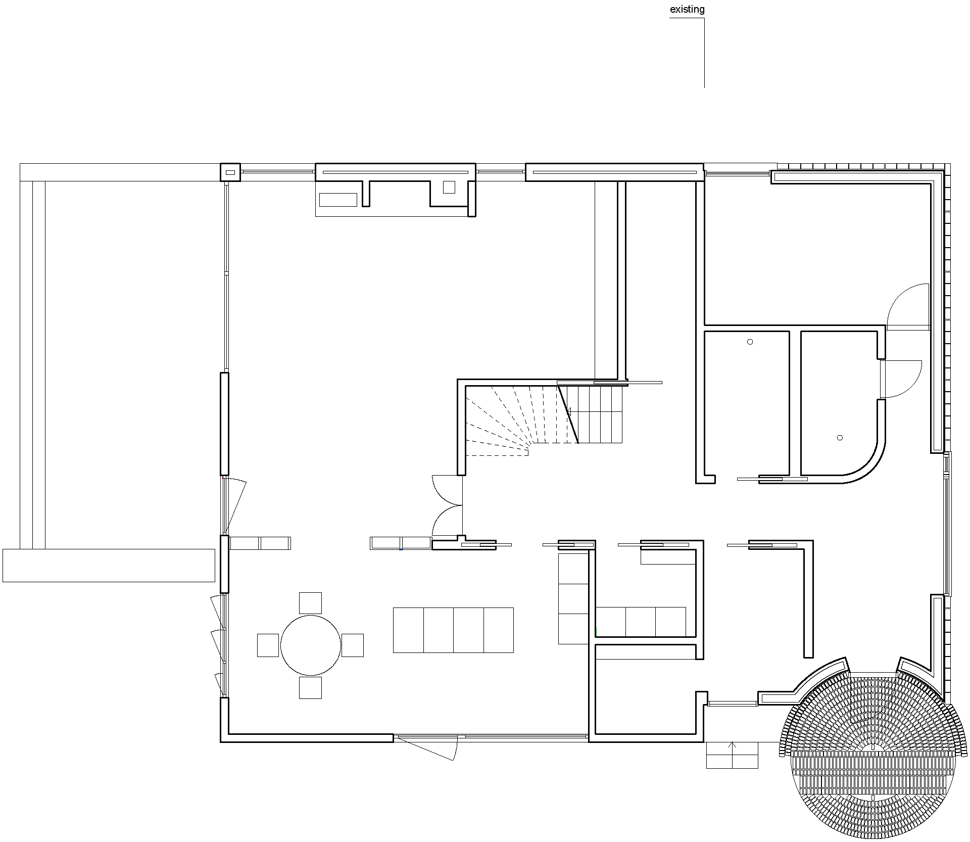
The Vatn Architecture practice continued this duality with its 75 m² extension. The existing building was given dark, horizontal pine cladding instead of a lighter, vertical one, as well as triple-glazed windows. The floor plans were also altered to meet the clients' requirements. However, the kitchen and living room remained in their original locations, and Vatn Architecture took care to avoid interfering with the wooden structure unnecessarily.
Inspired by agricultural silos
The brick extension is particularly striking due to its imposing entrance rotunda. With two open arms, the semi-cylinder welcomes guests. This unusual feature is reminiscent of the grain silos found on farms in western Norway. Some were connected to barns and others were built as separate structures, but they always had a distinctive presence. In addition to the entrance area, the extension houses a guest room, a bathroom, a WC and two children's rooms.


Beyond the semi-cylindrical entrance is a spacious foyer. To the right, behind the partition wall, there is an additional cloak- and storage room. © Johan Dehlin
The double entrance is a typical Norwegian feature: to the left of the rotunda are three dark brick steps leading up to a second entrance door. This is the everyday entrance for the family, leading directly into a spacious cloakroom where they can store their clothes without worrying about presentation.
Architecture: Vatn Architecture, Laura Sæther Architecture
Client: private
Location: Stavanger (NO)
Contractor: Front Bygg










