Vom Kloster zum Firmensitz
From Monastery to Company Headquarters: Jacoby Studios by David Chipperfield Architects
Foto: Simon Menges
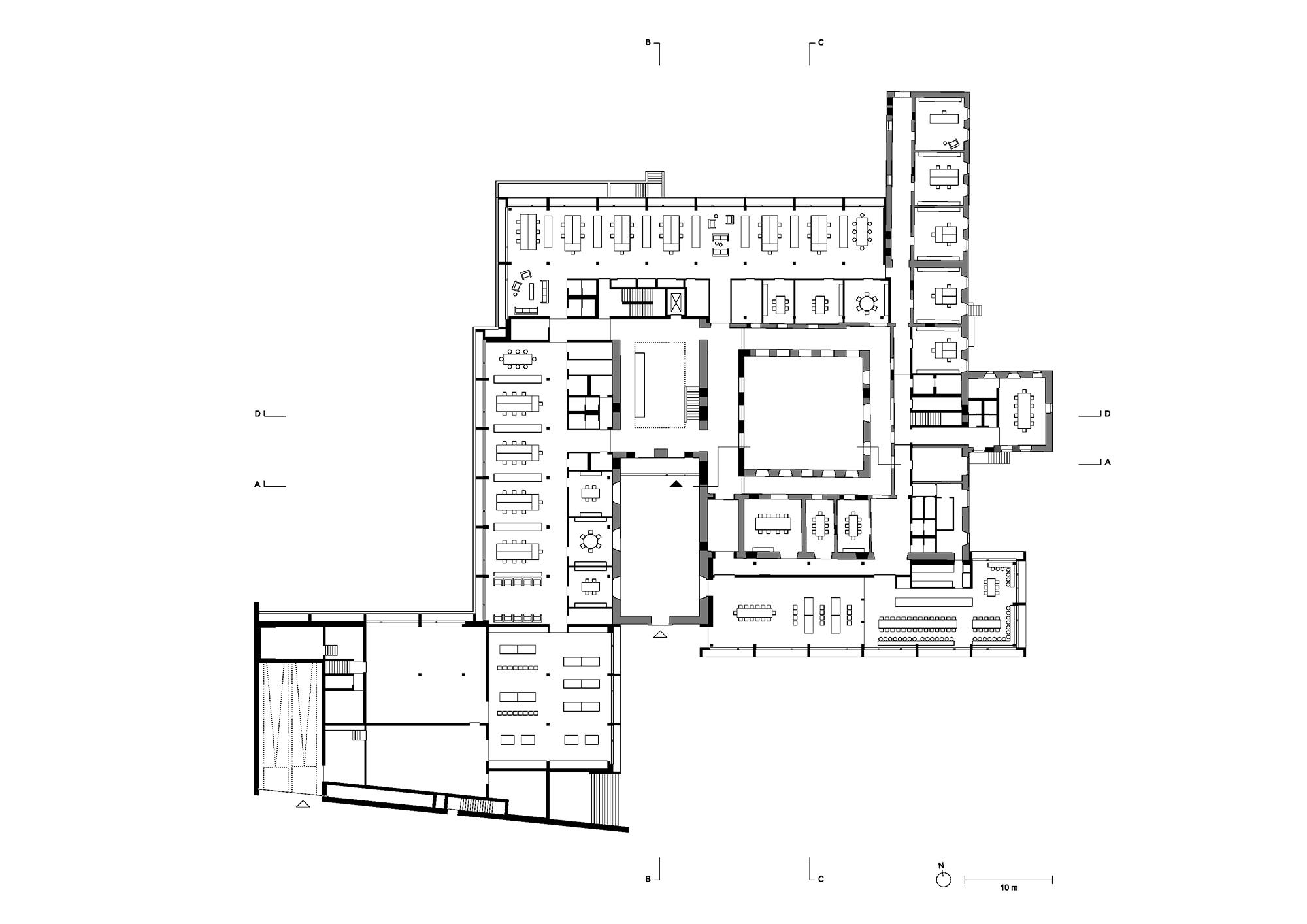
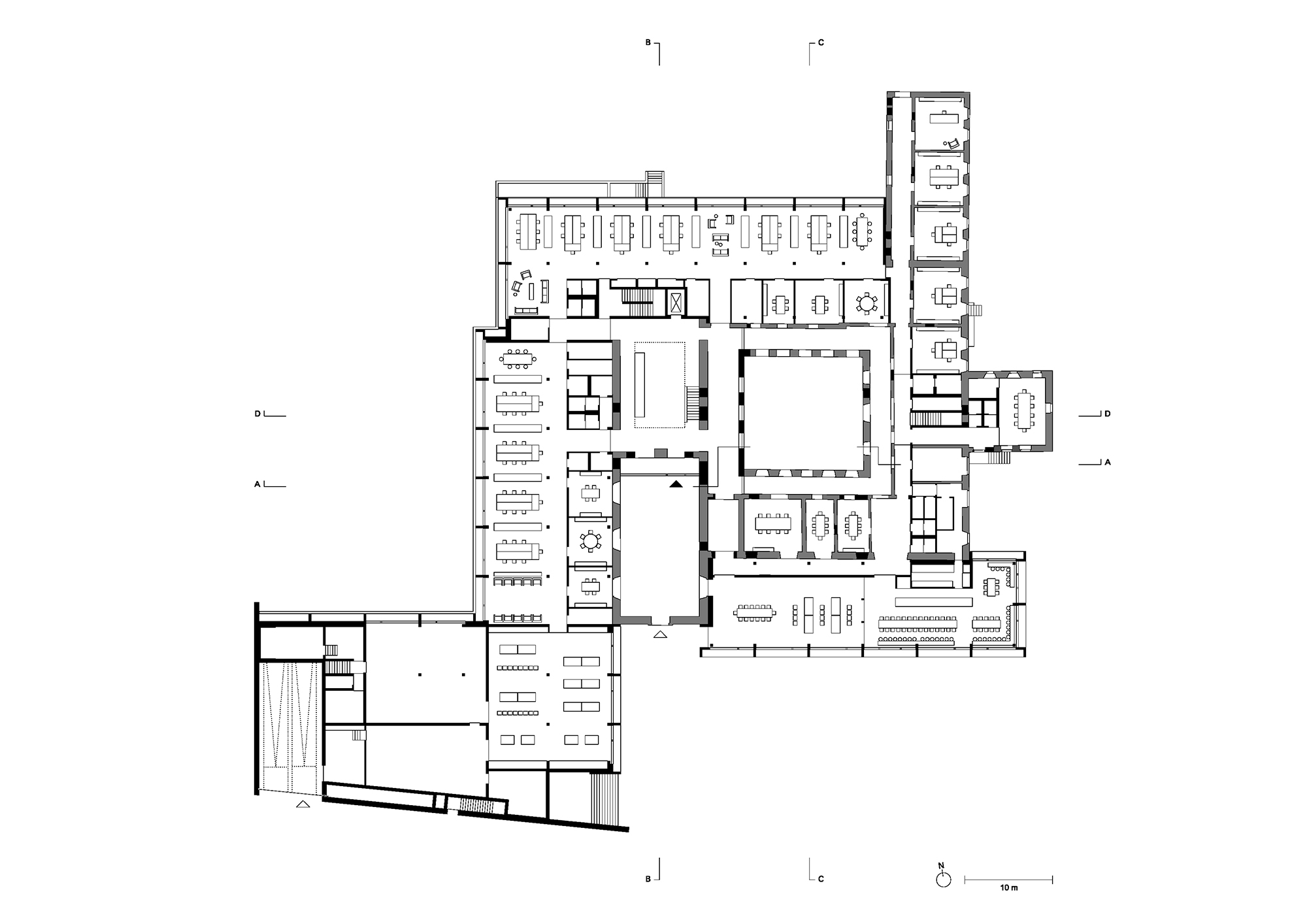
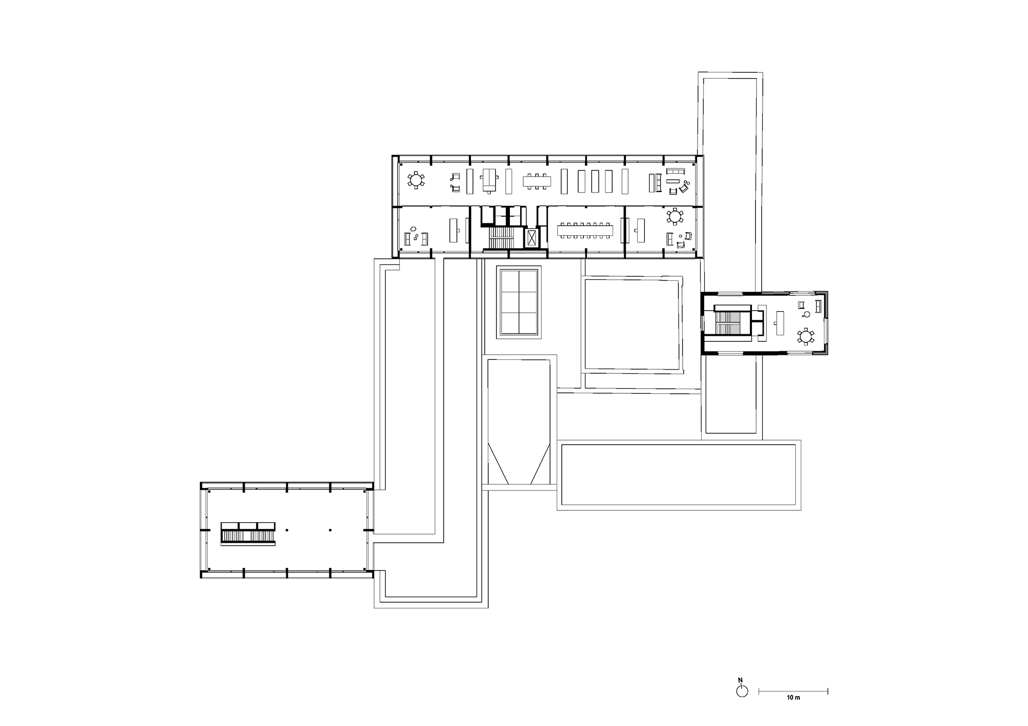
Für den DIY- und Kreativwarenhändler renovieren die Planer das teils denkmalgeschützte Kapuzinessenkloster aus dem 17. Jahrhundert. Im Laufe der Jahre und im Zuge der späteren Nutzung als Landeshospital wurde es etliche Male um- bzw. wiederaufgebaut und erweitert. Deshalb setzte sich der Bestand aus mehreren Gebäudeteilen in sehr unterschiedlichem Zustand zusammen. Die Planer reduzierten die Bausubstanz bis auf ihren Kern und sanierten das Ensemble behutsam, allen voran die ehemalige Kapellenfassade, den Kreuzgang, den östlichen Gebäudeflügel und die alten Keller. In Rücksprache mit dem Bauherrn wurden alle erhaltenen Teile unter Denkmalschutz gestellt.
Während die aufbereiteten Fassaden aus Naturstein und Ziegeln roh und unverkleidet bleiben und den Jacoby Studios ihren modernen Industriecharme verleihen, sind die neuen Trakte in Sichtbeton und Holz gestaltet. Sie umfassen jeweils zwei bis drei Geschosse und orientieren sich am orthogonalen Rhythmus der einstigen Klosteranlage. Über das Eingangstor und die frühere Kapelle gelangen Besucher und Angestellte der Firmenzentrale in das großzügige Foyer. In den Innenräumen sind auf 12.500 m2 vielfältige Arbeitsplätze, Showroom und Kantine untergebracht. Die natürliche, in Erdtönen gehaltene Farbpalette setzt sich auch hier fort und lässt die verschiedenen Bereiche, in Kombination mit großflächigen Verglasungen und Ausblick nach draußen, hell und freundlich erscheinen.
Die ressourcenschonende Sanierung und ein Lowtech-Ansatz ergeben zusammen ein nachhaltiges Gesamtkonzept. Bei der Energieplanung achteten David Chipperfield Architects darauf, Technik möglichst minimal, sinnvoll und langlebig einzusetzen. So ersetzen beisielsweise mechanische Lüftungselemente eine aufwendige Klimatisierung der Räume. Mittels Wärmepumpe wird aus dem Wasser eines angrenzenden Seitenarms der Pader Energie gewonnen und so die Jacoby-Firmenzentrale ganzjährig auf einer konstanten Temperatur gehalten – im Sommer mittels Betondeckenaktivierung, im Winter über eine Fußbodenheizung.
Weitere Informationen:
Bruttogrundfläche: 12.500 m2
Partner: David Chipperfield, Martin Reichert, Alexander Schwarz (Designleitung)
Projektleitung: Franziska Rusch (Konzeptstudie), Frithjof Kahl (Lph 1 – 4, Leitdetailplanung, Künstlerische Bauoberleitung)
Projektteam: Thomas Benk, Thea Cheret, Dirk Gschwind, Elsa Pandozi, Franziska Rusch, Diana Schaffrannek, Eva-Maria Stadelmann, Amelie Wegner; Grafik, Visualisierung: Dalia Liksaite
Ausführungsplanung: Schilling Architekten
Landschaftsarchitekt: Wirtz International
Tragwerksplanung: Gantert + Wiemeler Ingenieurplanung
Gebäudetechnik, Lichtplanung: Köster Planung
Bauphysik, Akustik: Hansen Ingenieure
Brandschutzgutachter: HHP West Beratende Ingenieure














