// Check if the article Layout ?>
Water tanks as art galleries: Goldsmiths Centre for Contemporary Art by Assemble
Foto: Goldsmiths CCA. Image courtesy of Assemble.
The Assemble architectural collective has completed its first building in the form of the Goldsmiths Centre for Contemporary Art in in Lewisham, southeast London. In the process the former Jacobinic Laurie Grove Baths by Thomas Dinwiddy has been transformed into a hub for contemporary art. The college acquired the bathhouse in 1999, and went on to mainly use it to house studios for the students and rooms for teaching events.
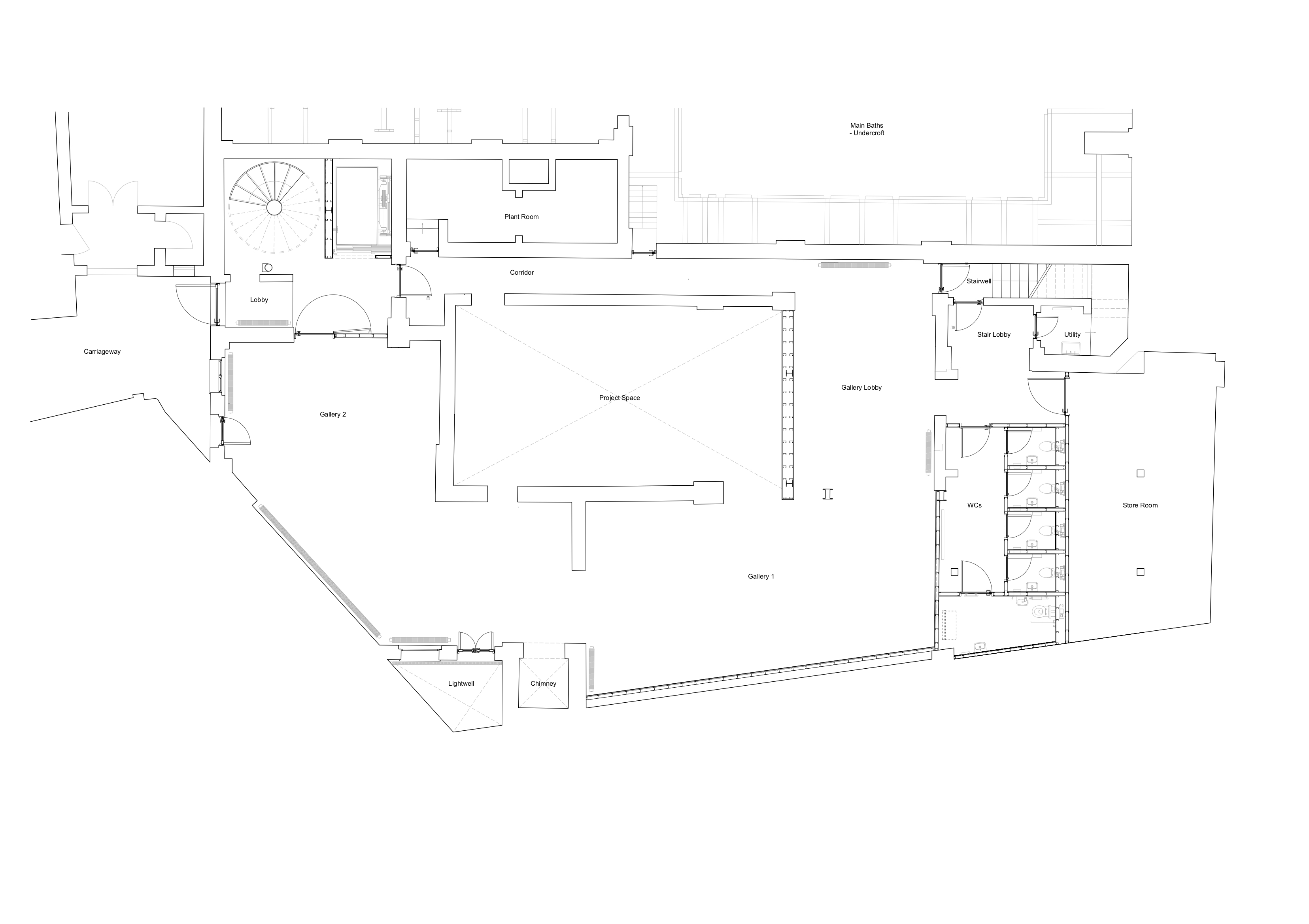
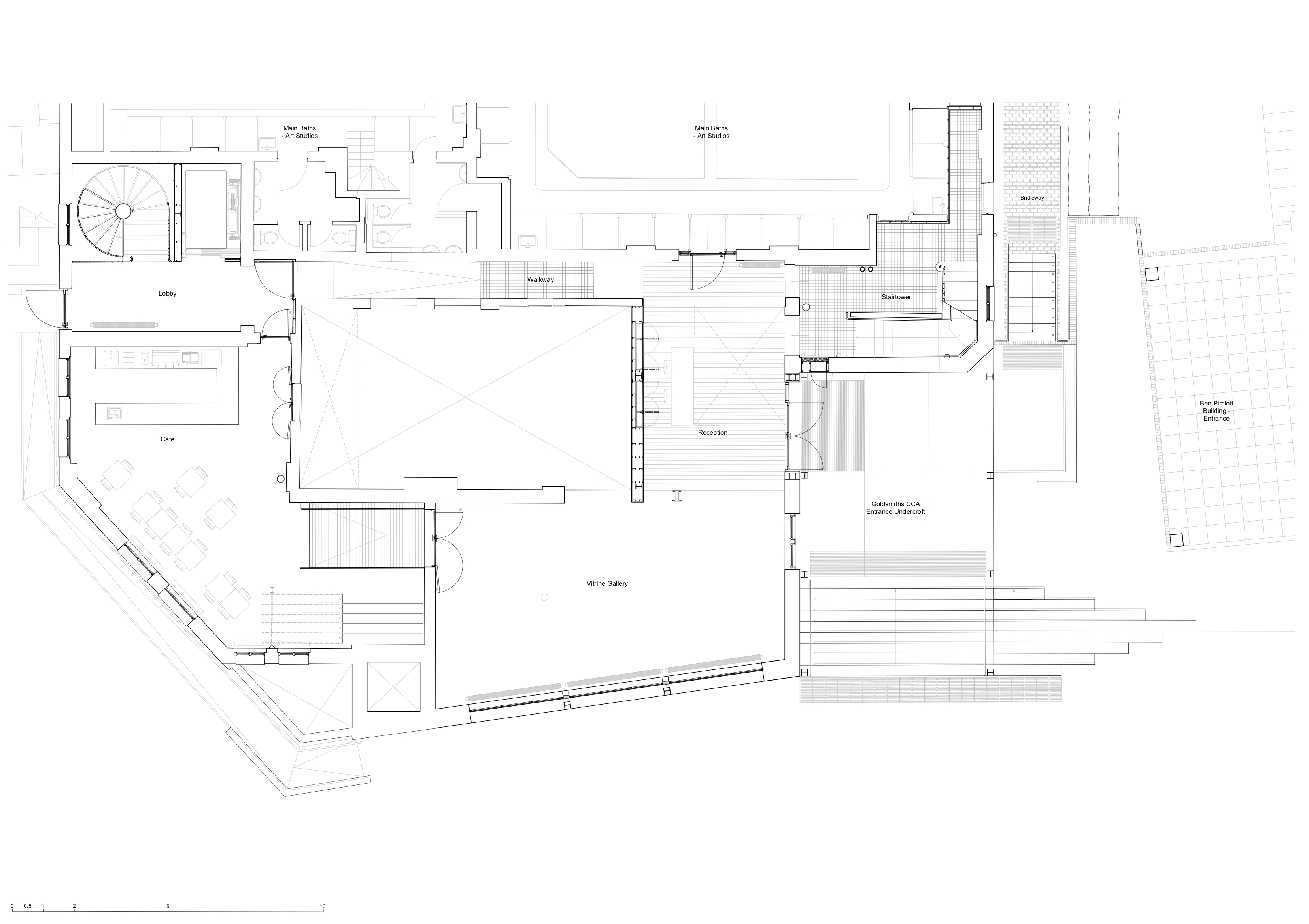
The main goal of the project was to work with the particular features of the existing space. The interplay of modern architectural idiom and historical building fabric are immediately noticeable when looking round the CCA, where the cast iron water tanks have been retained in their original form and now serve as art galleries. Two top-lit White Cube galleries have been added on, with the result that the CCA comprises seven galleries altogether. The building's key feature is a double-height Project Space that is to act as the main hall for capacious installations and performances. The building's turquoise-coloured concrete façade also refers back to the ceramic tiles of the Victorian swimming pool hall.
Assemble, winner of the Turner Prize in 2015, sought to make Goldsmiths CCA a culturally significant resource and active gathering space for students, artists and members of the public interested in art. Supplementing the historical fabric of the building with handcrafted concrete and ceramic elements has made part of south London's urban and social history accessible again.
The main goal of the project was to work with the particular features of the existing space. The interplay of modern architectural idiom and historical building fabric are immediately noticeable when looking round the CCA, where the cast iron water tanks have been retained in their original form and now serve as art galleries. Two top-lit White Cube galleries have been added on, with the result that the CCA comprises seven galleries altogether. The building's key feature is a double-height Project Space that is to act as the main hall for capacious installations and performances. The building's turquoise-coloured concrete façade also refers back to the ceramic tiles of the Victorian swimming pool hall.
Assemble, winner of the Turner Prize in 2015, sought to make Goldsmiths CCA a culturally significant resource and active gathering space for students, artists and members of the public interested in art. Supplementing the historical fabric of the building with handcrafted concrete and ceramic elements has made part of south London's urban and social history accessible again.
Further information:
Design Team
Architecture: Assemble
Structural Engineers: Alan Baxter
Mechanical and Electrical Engineers: Max Fordham Graphic Designers: Kellenberger White
Project Management: Goldsmiths Estates
Quantity Surveyor: Artelia
Contract Administration: Artelia
Building Control: MLM
Main Contractor: Bryen Langley
M+E Contractor: Elmec
Fire Strategy: LWF
Structural Engineers: Alan Baxter
Mechanical and Electrical Engineers: Max Fordham Graphic Designers: Kellenberger White
Project Management: Goldsmiths Estates
Quantity Surveyor: Artelia
Contract Administration: Artelia
Building Control: MLM
Main Contractor: Bryen Langley
M+E Contractor: Elmec
Fire Strategy: LWF





















