Where art meets culinary offerings: Les Halles du Scilt in Schiltigheim
Foto: Eugeni Pons
Schiltigheim is a town north of Strasbourg that gained in size as a brewing and industrial location, and it is in this tradition that the Halles du Scilt was erected in the heart of its historical town centre. The voluminous brick building involved, set back a little from the main street, was originally a schnapps distillery and later housed the work and sales rooms of the local butchery cooperative. In 1986 the municipality took over the structure and turned it into a venue for cultural events. When the building ceased to meet contemporary safety standards, it was closed off for a complete decade until Dominique Coulon & Associés were awarded the contract for its conversion and rehabilitation.
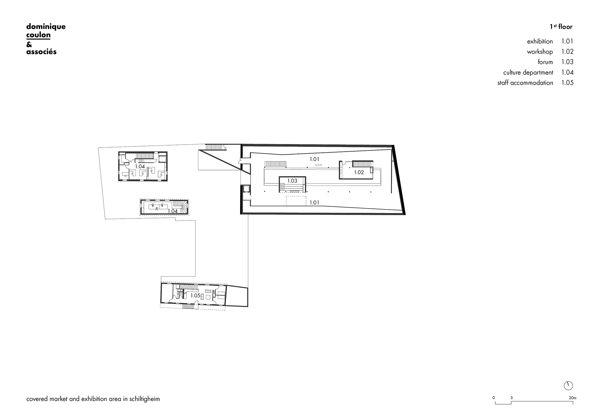
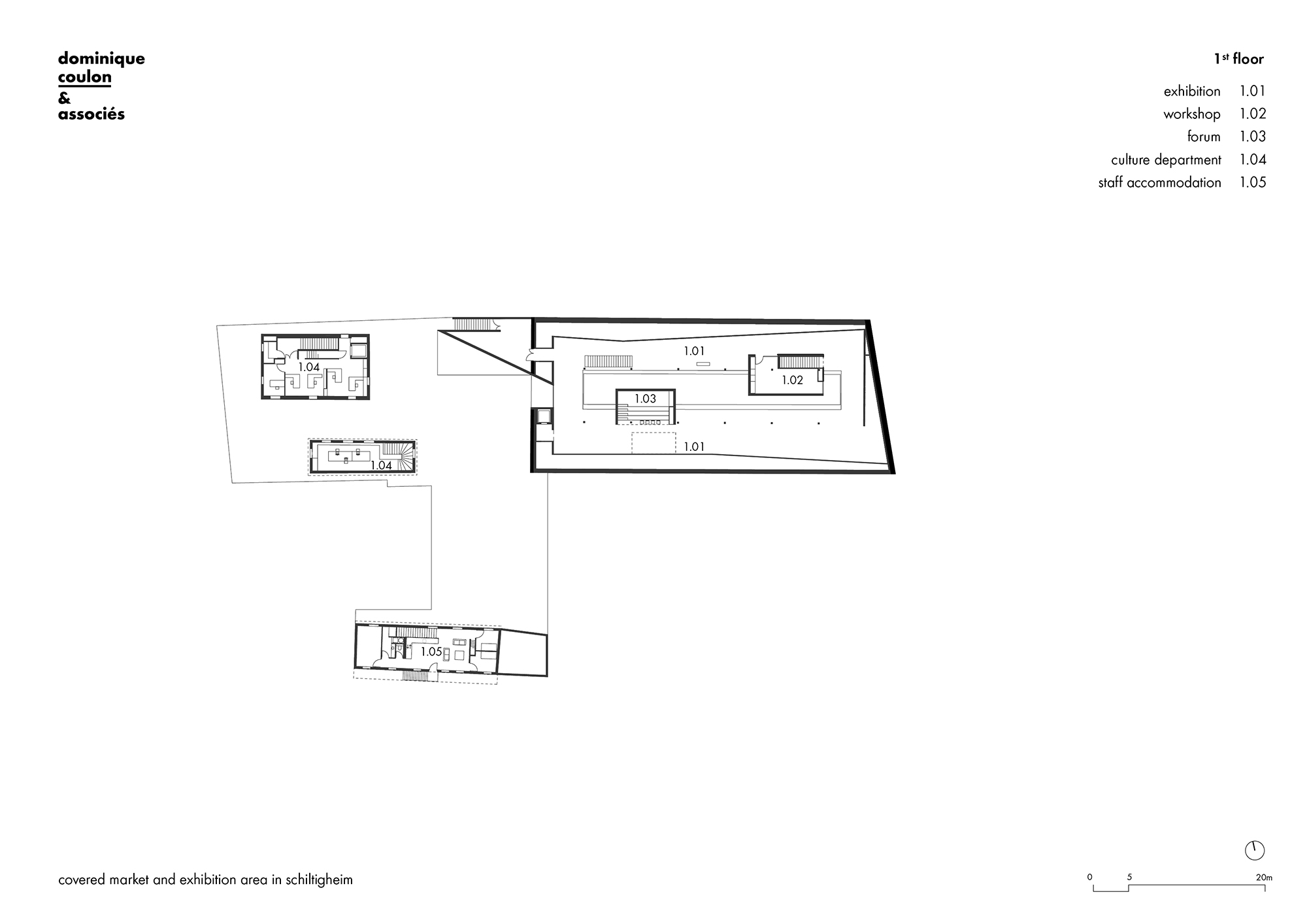
Jean-Marie Kutner, Schiltigheim's former mayor, was instrumental in the idea that then came about, namely that Halles du Scilt could become an exhibition hall and indoor market in one – an unusual combination. Unusual too is the tightly packed way in which the architects have united the two uses. A central passage leading up to the top of the building connects the market area on the ground floor with the open exhibition space on the upper one.
At present five retailers have rented space in the building. A cafe is located directly at the entrance, complete with an outdoor section shaded by an unusual concrete sculptural structure. This step-like canopy juts out from the old building at the upper floor level, like a drawer pulled out at an angle. Its fair-faced concrete surface harmonises well with the hall's brick walls, generously reinforced with concrete and coated in grey slurry.
The conversion project also encompassed three half-timbered houses in the entrance court. These were also rehabilitated and now house the city's culture department and a staff apartment.
Further information:
Project team: Dominique Coulon, Steve Letho Duclos, Guillaume Wittmann, Mathilde Blum, Diego Bastos-Romero
Construction site management: Steve Letho Duclos
TGA-planning: Solares Bauen
Electro planning: BET G.Jost
































