// Check if the article Layout ?>
"Wiggly House" near Milan: Introspective in impression
Photo: Andrea Martiradonna
"Wiggly House" covers the plot like a kind of grid, its juxtaposed volumes making more the impression of an artificial landscape than that of a single-family residence. Not tied to any rigid geometry, it makes the impression of an irregularly articulated structure. Rather, everything is organised around a centrally positioned long section that runs from north to south with various volumes and patios aggregated and structured around it.
The special ground plan of the "Wiggly House" is in answer to the requirements that forward-looking construction needs to fulfil. Conventional types of housing are generally unable to respond to societal changes, meaning they will successively have to make way for more flexible and adaptable concepts.
The form of the building is very lively in effect and is characterised by a continual rising and falling of roof surfaces that also differ in pitch and alignment, thus presenting constant changes in silhouette depending on vantage point. The outward-facing walls have few openings. Rather, the building is oriented inwards and upwards, with the various stacks and light wells providing it both maximum natural lighting and an inimitable character.
The "Wiggly House" is a concrete building in constructional terms. Consisting of granite, the predominantly grey outer skin screens out undesired views into the house and protects the interior from temperature extremes. The heating system is coupled to a solar installation, while window openings are set opposite each other to ensure best-possible ventilation.
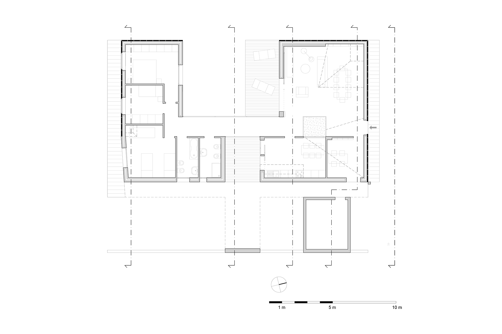
The single-family home is entered from a northern direction. All the rooms and the kitchen and bathrooms lead off a passageway located in the building's middle section. A generously dimensioned living area is situated straight away on the right, and bedrooms are oriented to the south.
The interior gains its character from its upward alignment. This intention can be felt in all areas to equal effect. This can be seen for example in the skylight that also serves to draw off fumes arising at the kitchen counter far below, or in the case of the little roof window that bathes the meditation room in a warm light. In the living area, the window looking onto the patio reaches down to the floor, lending the interior court the effect of an island around which daily life revolves.
The special ground plan of the "Wiggly House" is in answer to the requirements that forward-looking construction needs to fulfil. Conventional types of housing are generally unable to respond to societal changes, meaning they will successively have to make way for more flexible and adaptable concepts.
The form of the building is very lively in effect and is characterised by a continual rising and falling of roof surfaces that also differ in pitch and alignment, thus presenting constant changes in silhouette depending on vantage point. The outward-facing walls have few openings. Rather, the building is oriented inwards and upwards, with the various stacks and light wells providing it both maximum natural lighting and an inimitable character.
The "Wiggly House" is a concrete building in constructional terms. Consisting of granite, the predominantly grey outer skin screens out undesired views into the house and protects the interior from temperature extremes. The heating system is coupled to a solar installation, while window openings are set opposite each other to ensure best-possible ventilation.
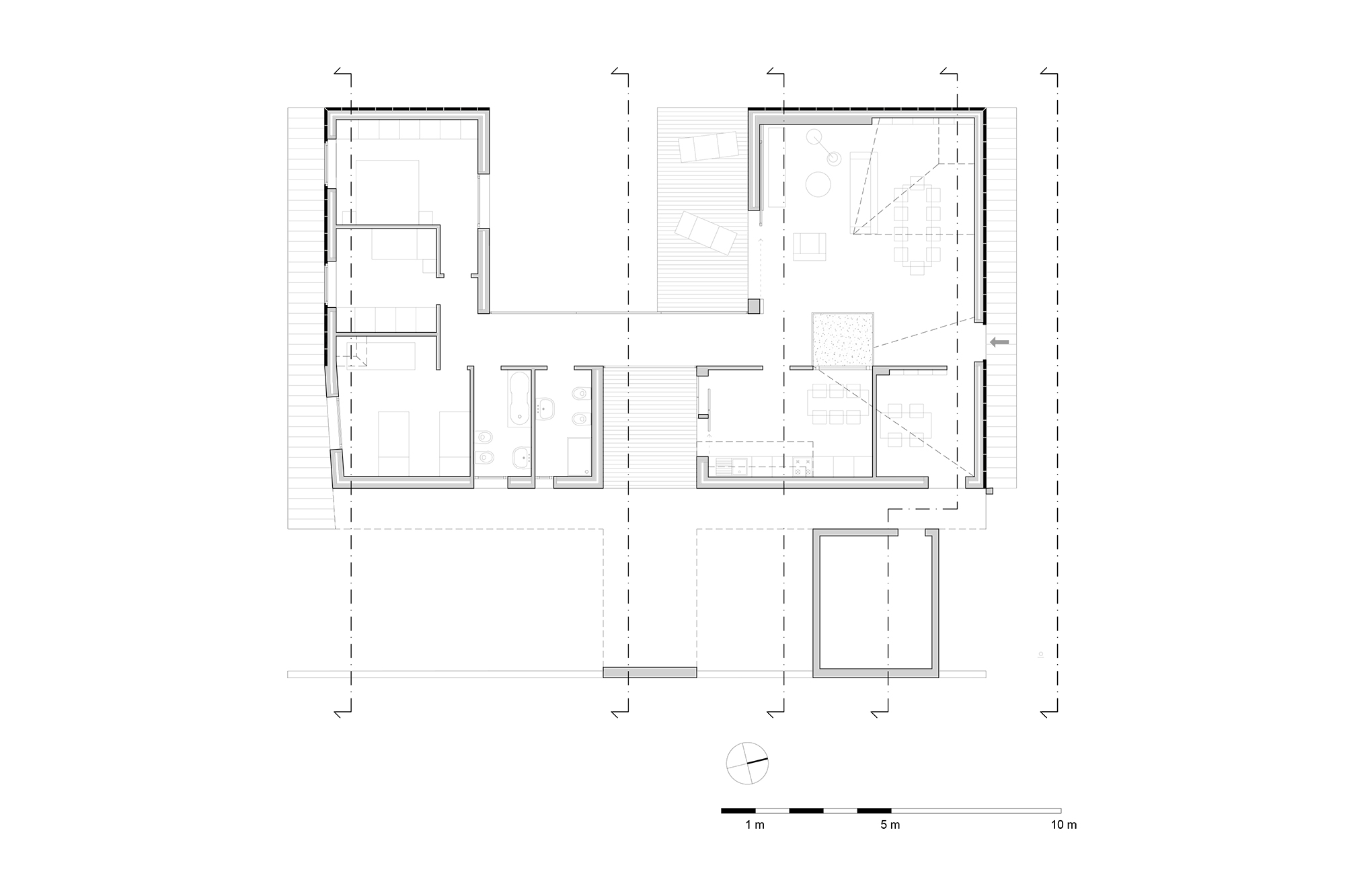
The single-family home is entered from a northern direction. All the rooms and the kitchen and bathrooms lead off a passageway located in the building's middle section. A generously dimensioned living area is situated straight away on the right, and bedrooms are oriented to the south.
The interior gains its character from its upward alignment. This intention can be felt in all areas to equal effect. This can be seen for example in the skylight that also serves to draw off fumes arising at the kitchen counter far below, or in the case of the little roof window that bathes the meditation room in a warm light. In the living area, the window looking onto the patio reaches down to the floor, lending the interior court the effect of an island around which daily life revolves.



















