// Check if the article Layout ?>
Withdrawing into a shell: Family home in Estoril
Photo: Francisco Nogueira
The coastal town is only half an hour's train ride from Lisbon, so it is no surprise that Estoril has been a favourite seaside resort for the capital's populace for over a hundred years. In earlier days the numerous lighthouses on this stretch of coast used to show homeward-bound seafarers the way to Lisbon. The house that António Costa Lima has erected in a residential district close to Estoril's centre has to do with coming home, too: the clients had seen a lot of the world in recent years and were now in search of a peaceful, permanent abode close to the capital.
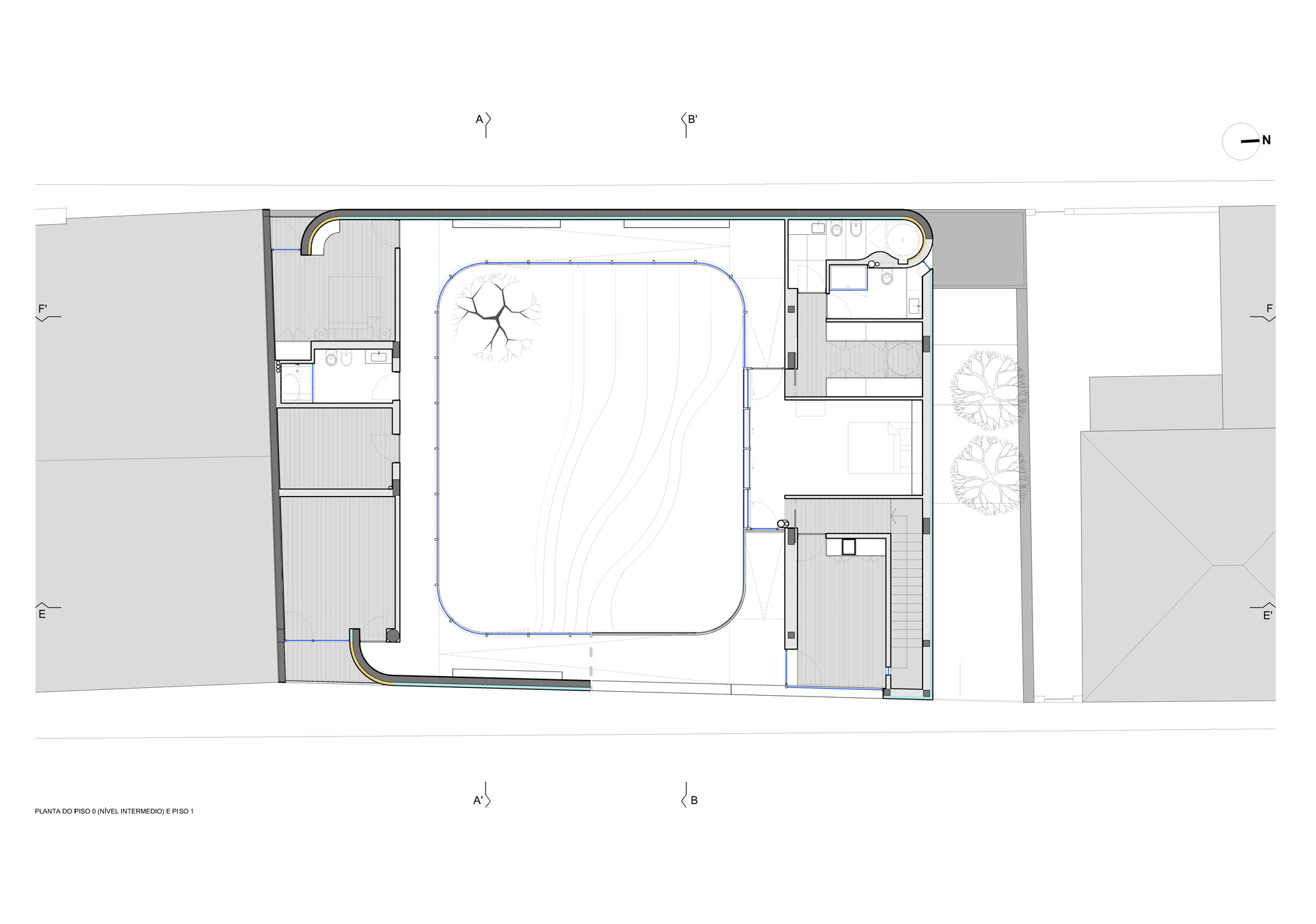
The properties in the neighbourhood are quite small and thus the gardens are also sparingly sized. To make the most out of the available plot area, Costa Lima placed the building mass around the edges and set an introverted garden courtyard in the middle. At its south the house joins directly to the fire wall of an adjacent building; to the north it keeps a little distance from its next neighbour. The building's two long walls, set alongside narrow residential streets that run at right angles to the sea, are practically windowless. Both these elevations have a fair-faced concrete foundation wall, topped by a white sculptural ramp that continues around the house to form a spiralling link to the rooms.
The circulation principle and form language of the house are visibly inspired by Álvaro Siza. The Portuguese Prize winner used similar ramps in a large number of his buildings – arguably most impressively at the museum of the Ibere Camargo Foundation in Porto Alegre, Brazil, where a ramp zigzags across the front of the main building as a sequence of projecting concrete walkways.
Unlike the ramps at the museum, the ones at the house in Estoril are not completely enclosed, being either glazed or completely open on the sides overlooking the garden courtyard. The living quarters are grouped in the parts of the building set at right angles to the streets. The southern part accommodates the garage and children's rooms above it, while the northern section contains a long-drawn-out room incorporating kitchen, dining and living area on the ground floor. This is followed on the upper floor by the parent's bedroom and dressing room as well as a bathroom and study. The spiralling ramp ends in a roof terrace at the very top.
The properties in the neighbourhood are quite small and thus the gardens are also sparingly sized. To make the most out of the available plot area, Costa Lima placed the building mass around the edges and set an introverted garden courtyard in the middle. At its south the house joins directly to the fire wall of an adjacent building; to the north it keeps a little distance from its next neighbour. The building's two long walls, set alongside narrow residential streets that run at right angles to the sea, are practically windowless. Both these elevations have a fair-faced concrete foundation wall, topped by a white sculptural ramp that continues around the house to form a spiralling link to the rooms.
The circulation principle and form language of the house are visibly inspired by Álvaro Siza. The Portuguese Prize winner used similar ramps in a large number of his buildings – arguably most impressively at the museum of the Ibere Camargo Foundation in Porto Alegre, Brazil, where a ramp zigzags across the front of the main building as a sequence of projecting concrete walkways.
Unlike the ramps at the museum, the ones at the house in Estoril are not completely enclosed, being either glazed or completely open on the sides overlooking the garden courtyard. The living quarters are grouped in the parts of the building set at right angles to the streets. The southern part accommodates the garage and children's rooms above it, while the northern section contains a long-drawn-out room incorporating kitchen, dining and living area on the ground floor. This is followed on the upper floor by the parent's bedroom and dressing room as well as a bathroom and study. The spiralling ramp ends in a roof terrace at the very top.


























