Wood Hybrid for Living and Learning: Agricultural Centre in Salez
Foto: Seraina Wirz
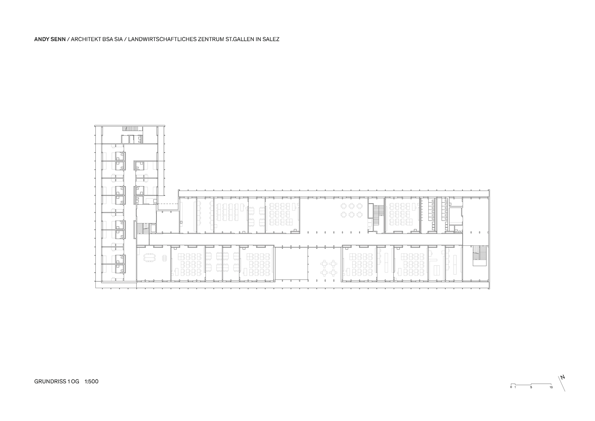
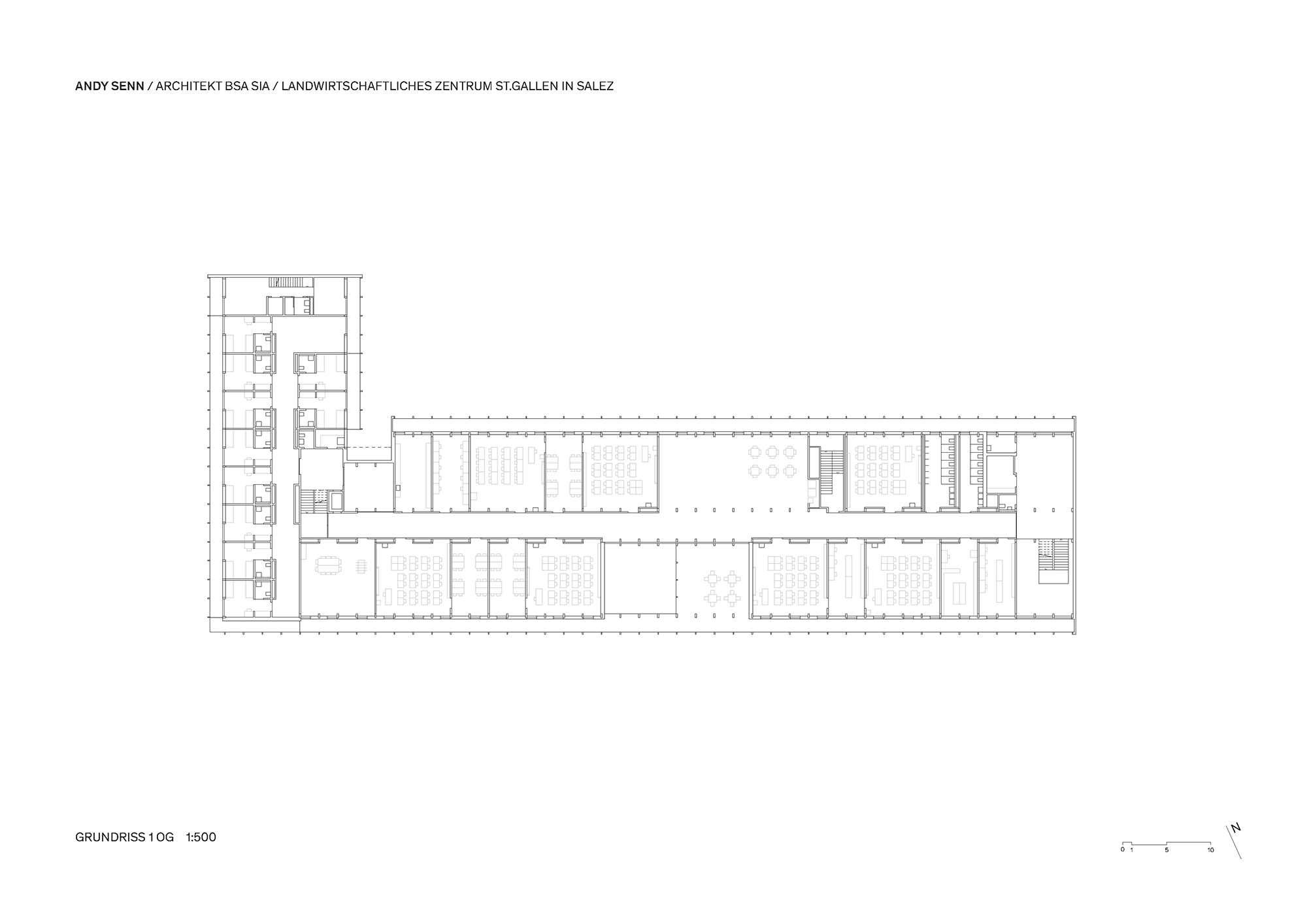
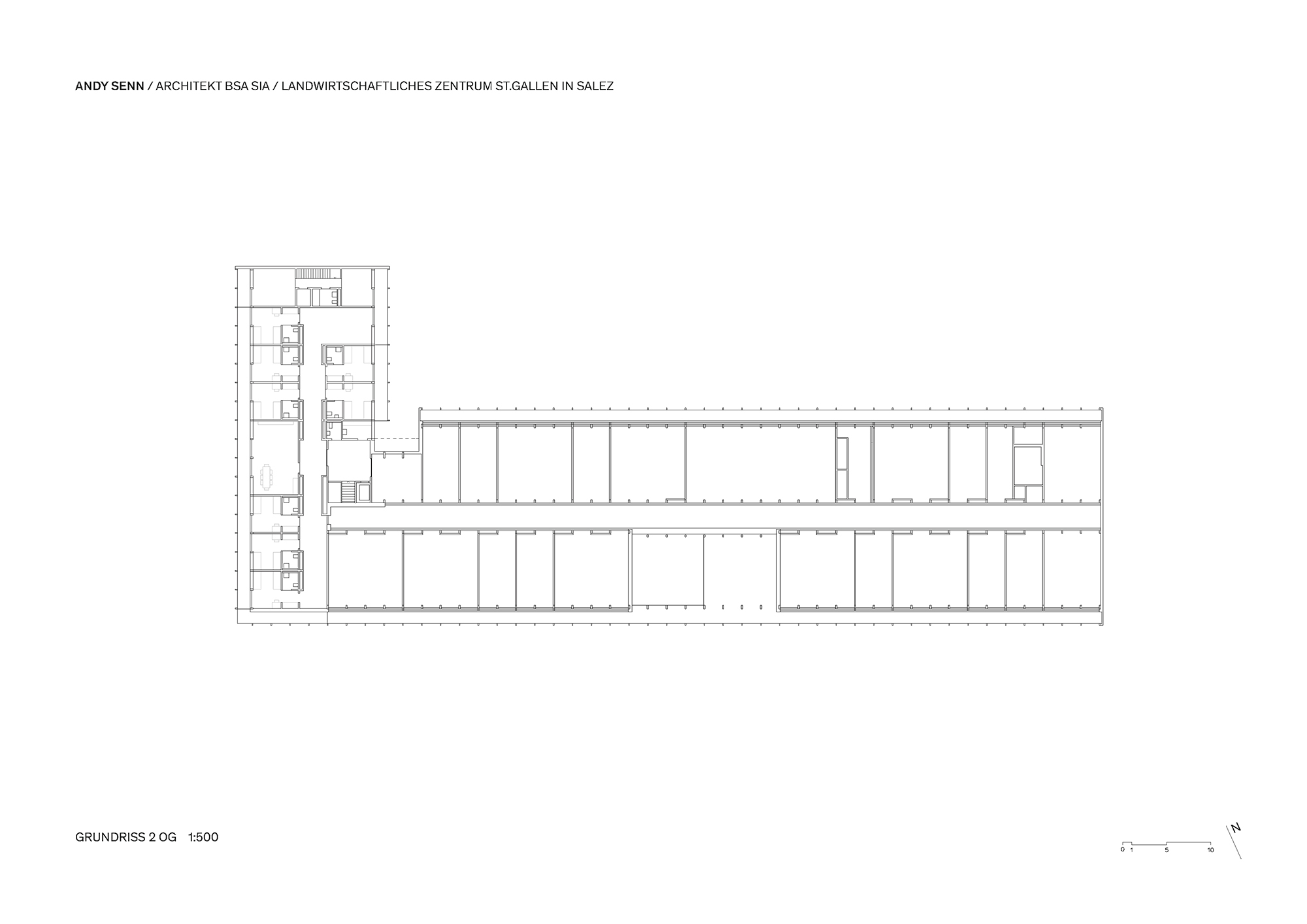
In den Rheinauen im Schweizer Kanton St. Gallen erstreckt sich vor einer imposanten Bergkulisse der Neubau für das Landwirtschaftliche Zentrum des Architekten Andy Senn. Der lange L-förmige Gebäuderiegel in Holz-Hybridbauweise liegt am Rand des Örtchens Salez und vereint Unterrichtsräume, ein Seminarzentrum und Übernachtungsmöglichkeiten für Gäste. Er schließt sich an eine bestehende Werkhalle an, wodurch mittig ein großzügiger neuer Hof entsteht.
Aufgrund der wenig tragfähigen Bodenverhältnisse ist das Gebäude auf Stahlbetonpfählen gegründet, Untergeschoss und Bodenplatte bestehen ebenfalls aus Stahlbeton.
Darauf fügt sich ein klar strukturierter, unaufgeregter Holzbau wie selbstverständlich in die Umgebung ein. Der lange zweigeschossige Bereich mit Unterrichtsräumen für die landwirtschaftliche Berufsbildung besteht aus einer reinen Holzskelettkonstruktion im Raster von 2,14 m, die große Spannweiten der Deckenbalken und langfristig eine hohe Flexibilität ermöglicht. Der kürzere dreigeschossige Flügel in Elementbauweise beherbergt 28 Doppelzimmer. Holz-Beton-Verbunddecken sorgen für die nötige Aussteifung und einen guten Schallschutz. Laubengänge dienen als konstruktiver Sonnen- und Witterungsschutz für die Fassaden. Die der Witterung ausgesetzten Bereiche bestehen aus Laubholz, alle anderen Teile der Tragkonstruktion aus Nadelholz, das weitgehend aus den umliegenden Wäldern stammt. Große Fenster in den bis zu 4,40 m hohen Räumen sorgen für optimale Tageslichtverhältnisse und geben beim Betreten des Gebäudes Blicke Richtung Süden auf das weitläufige Rheintal frei.


























