Wooden building in bridal attire: Hotel Bergamo in Ludwigsburg
Foto: Brigida González
In their design for the new hotel, the Stuttgart-based architects had little other choice than to go for demonstrative restraint in view of the neighbourhood, which presented a rather muddled exemplar of Ludwigsburg’s architectural history, as seen by residential buildings from the 18th century and over the road the gigantic Marstall Center complex from the 1970s with its shopping centre and towering apartment blocks. The project for the building, designed by Von M and clad in virginal white, was initiated by the City of Ludwigsburg to repair the urban fabric of the neighbourhood and provide impulses for a climate-neutral future.
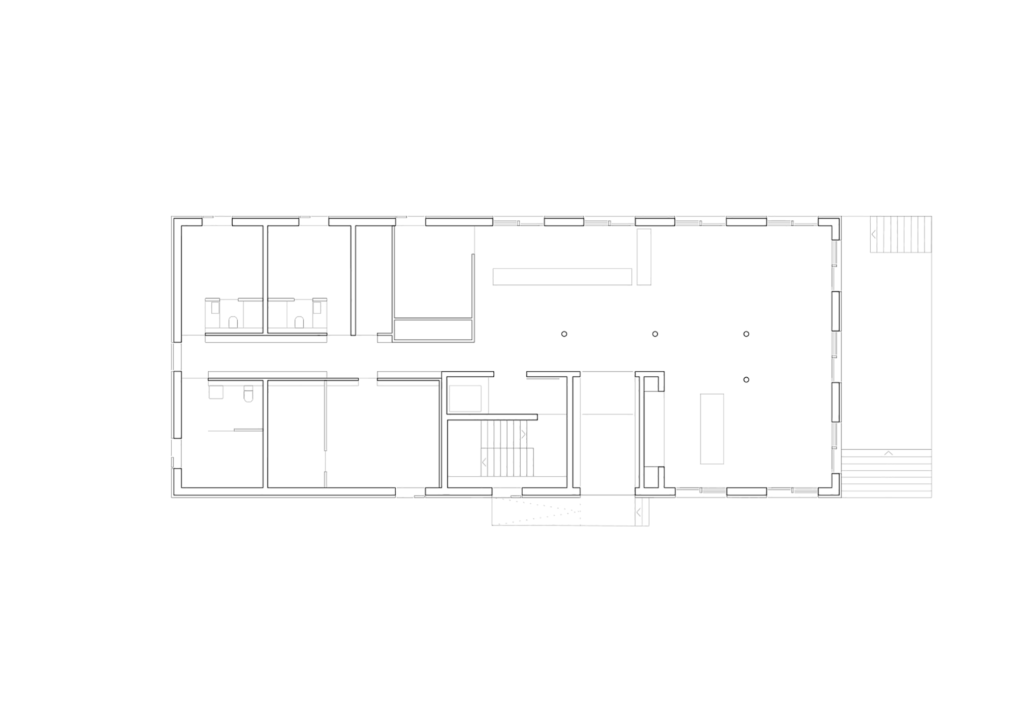
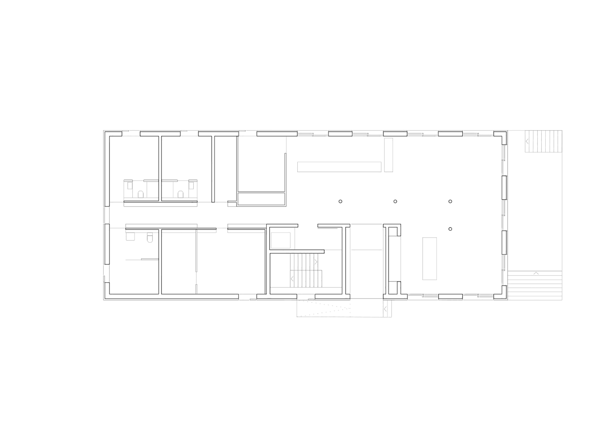
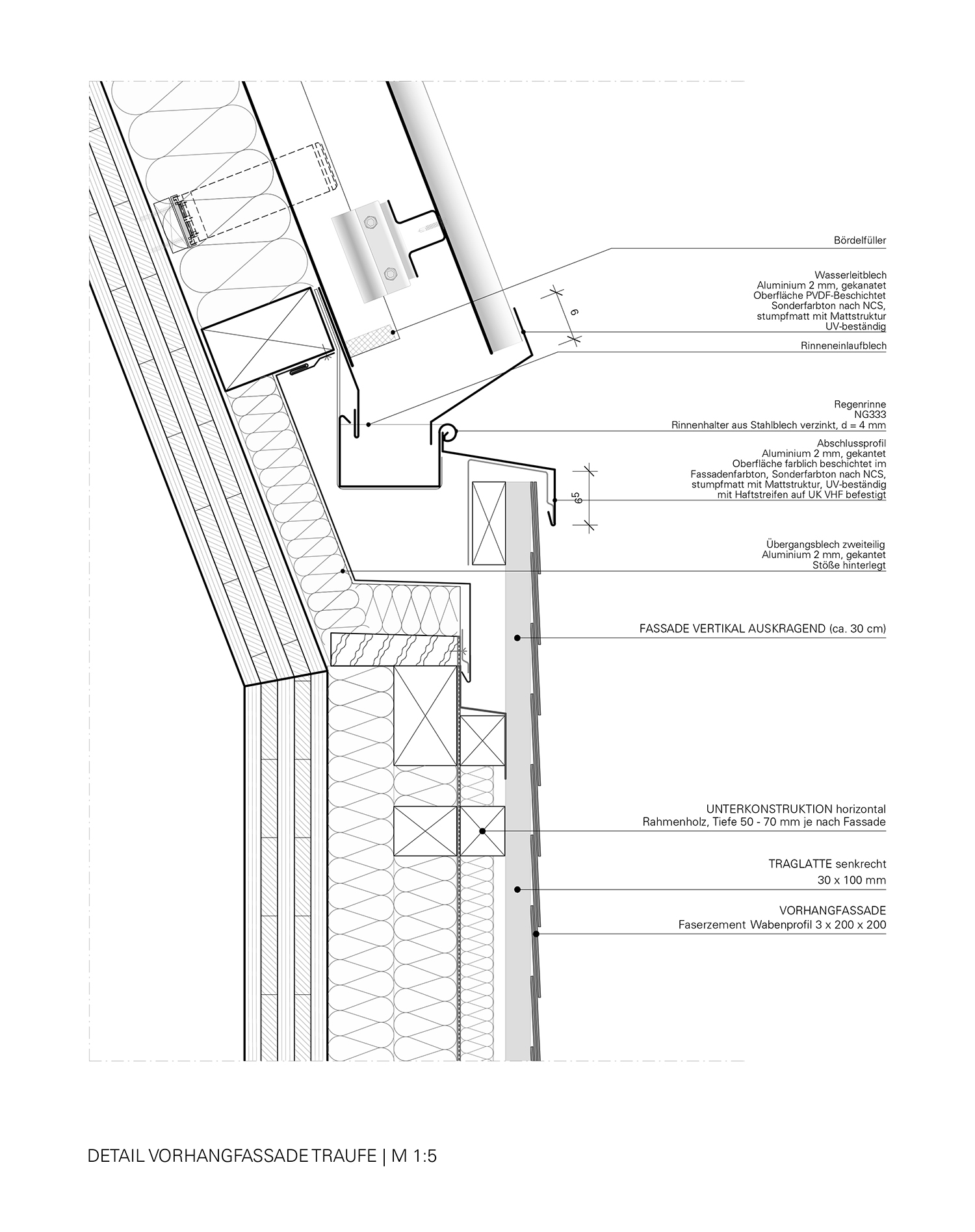
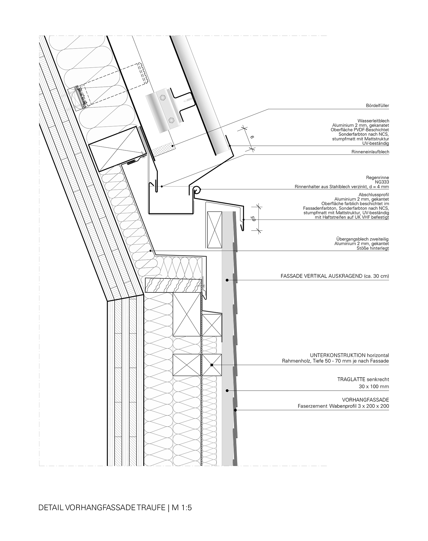
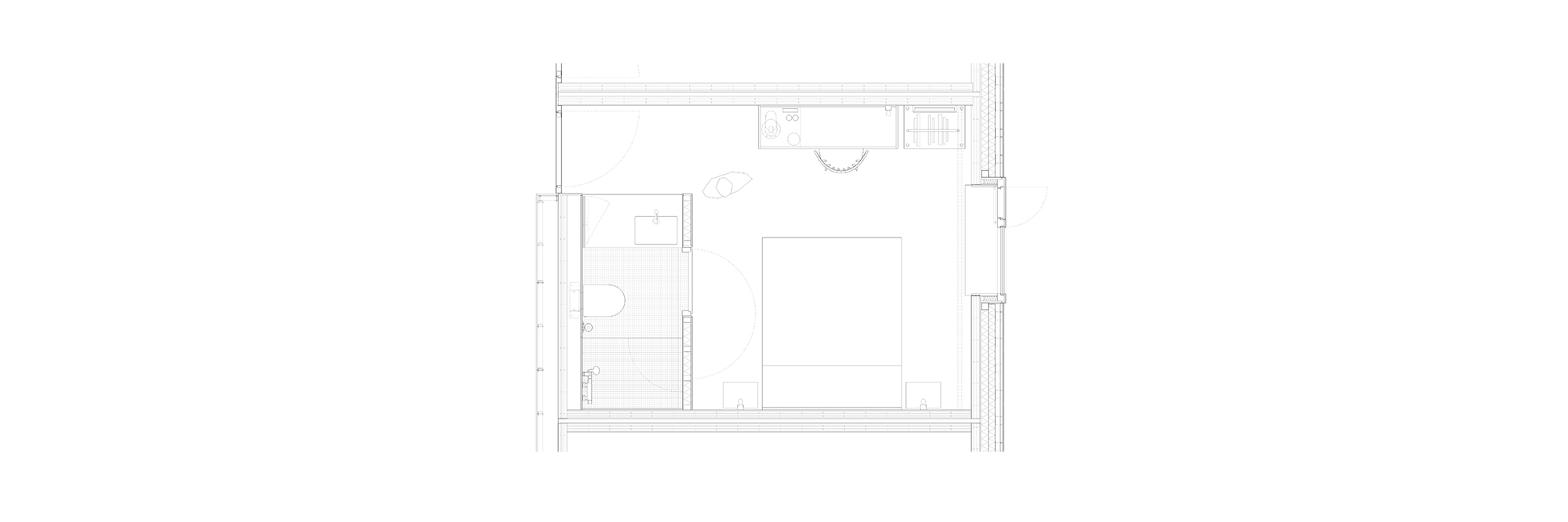
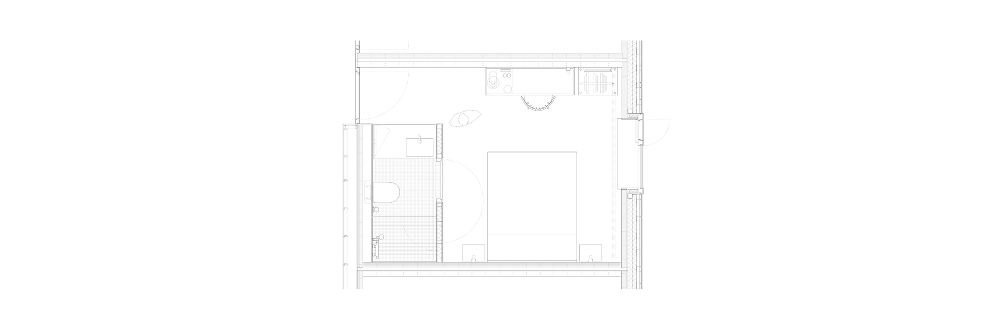
Trapezoidal aluminium cladding and fibre cement shingles make up the unsullied white skin that conceals an interior structure built solely of wood with the exception of the ground floor. The room modules have been executed in glued laminated timber, prefabricated by a carpentry firm from Vorarlberg in Austria and requiring only five days for on-site assembly. In the 55 guest rooms, the material is clear to see, and in the public areas on the ground floor, ashwood parquet flooring and solid ash furniture designed by the architects attest to the building’s ecological aspirations.
The simple and mostly symmetrical volume of the hotel belies the difficulties the topography presented the architects, with the ground sloping slightly to the east and falling away in a more pronounced manner to the north. The basement level was accordingly dug halfway into the slope. The hotel is entered from a newly-created forecourt set somewhat lower to the east, and is also accessible at street level on its northern side.
Further information:
Team: Daniel Seiberts, Marcia Nunes
Construction management: Jo Carle Architekten
Building physics: Kurz + Fischer
TGA-planning: Ingenieurbüro Staudacher

























