// Check if the article Layout ?>
Wooden insert: Single-family home in Slovenia
Photo: Janez Marolt
The exterior of the »Compact Karst House« gives a nod to the austere, windowless houses of the region, which were originally meant to provide shelter from the strong wind. The interior holds a surprise: the single-family dwelling is a house within a house, featuring a clever distribution of space and finely balanced materiality.
Architect: dekleva gregoric arhitekti, Ljubljana
Location: Vrhovlje, Slovenia
Architect: dekleva gregoric arhitekti, Ljubljana
Location: Vrhovlje, Slovenia
The grounds, once widely strewn with oak trees, were long ago cleared in order to provide piles for buildings along the waters of Venice. The resulting unobstructed winds necessitated a massive house design as a response to the new conditions. This led to the creation of the nearly windowless »Karst House«, which often had only one room. Dekleva Gregori? Arhitekti have rediscovered and redefined this typology.
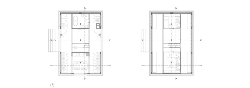
Using two inset wooden bodies, the architects have not only made the otherwise empty space of the original typology usable, but have also zoned it as contemporary functional units. Semipublic communal spaces such as the kitchen, bathroom and living room on the ground floor and the private bedrooms on the upper floor are connected via a gallery and create a clear distribution of space.
Using two inset wooden bodies, the architects have not only made the otherwise empty space of the original typology usable, but have also zoned it as contemporary functional units. Semipublic communal spaces such as the kitchen, bathroom and living room on the ground floor and the private bedrooms on the upper floor are connected via a gallery and create a clear distribution of space.
A significant component of the design was the integration of storage areas and the best possible use of the spatial units. Four built-in closets along the long edge of the room enable a tidy, well-arranged living room. The sculptural stairway also offers storage and its additional use as a bookcase makes it a tangible element of the whole ensemble.
While the clear lines of sight from the ground floor are oriented towards the landscape, those on the upper floor face the sky. Open spaces are linked with consciously placed elements, enabling the clear structuring of functional units without relying on massive walls. The result is spatial situations such as the working area under the stairs, which also serves as the TV wall of the living room. The least possible amount of space is exploited without feeling crowded or asking too much of the residents.
The wall and roof surfaces blend into each other in a way that recalls a monolith. The combination of the materials stone and concrete instead of pure stone as in the old days, and the deliberate contrast with wood in the interior spaces, translate the historical functionality of this building type into a modern house with a liveable character.
With great respect for tradition and a fine feeling for the chosen materials, the architects have created a timeless structure that carries old building customs into contemporary times. This house has a modern look, but is not unfamiliar. With the extensive use of glass as compared to the earlier houses, and by playing with lines of sight into the surrounding landscape, this design responds both to its residents’ needs and to contemporary requirements. The principle of the wooden house within the stone house has enabled a variable spatial impression with harmonic details. Elements such as the stairway, which also functions as a bookcase and room divider, connect not only the two levels, but seem to hold the entire structure together as a main component of the house.
Project data
Project team: Aljoša Dekleva, Tina Gregoric, Lea Kovic, Vid Zabel
Site area: 336 m²
Building area: 82,5 m²
Usable space: 65 + 28 m²
Completion: 2014
Project team: Aljoša Dekleva, Tina Gregoric, Lea Kovic, Vid Zabel
Site area: 336 m²
Building area: 82,5 m²
Usable space: 65 + 28 m²
Completion: 2014











