// Check if the article Layout ?>
Zaans Medical Center by Mecanoo
Photo: Mecanoo architecten
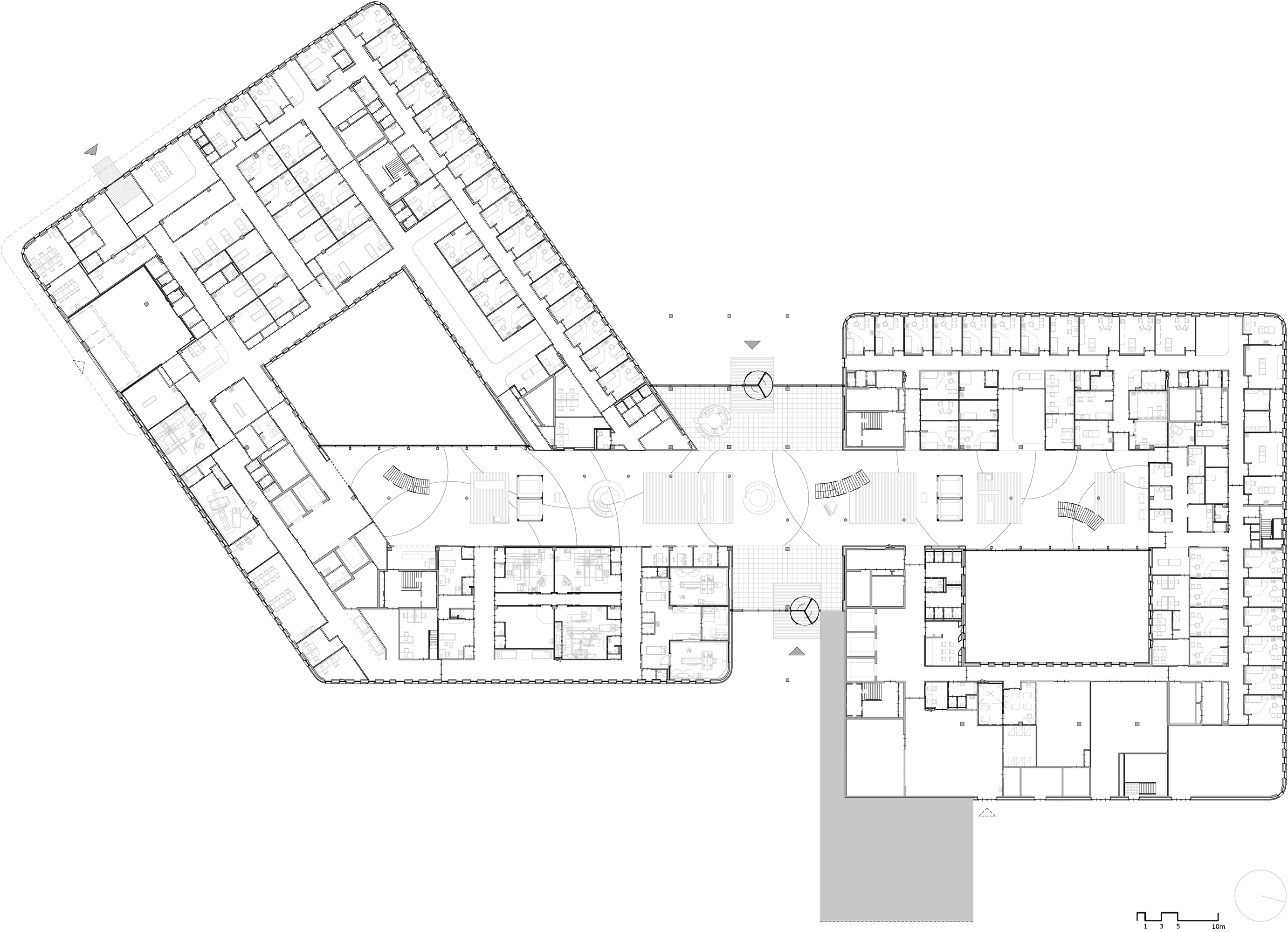
Zaans Medical Center has been planned as a compact building, whereby the architects attached importance to clear routing, as much natural lighting as possible and provision of so-called "positive distractions". The facades with their rows of identical windows give the hospital a relatively closed-off look on the outside, but indoors it opens up to an unusual sequence of spaces.
Two lower storeys are reserved for outpatient treatment, while clinical departments occupy the upper ones. Since consideration of patient anxiety played an important role in the design process, the two-storey foyer with its several semi-circular voids and skylights differs considerably from conventional hospital rooms. As a result, a pleasant atmosphere with a distracting effect prevails in this area of the building, lessening fears of pending treatment. A broad passageway with several spaciously proportioned waiting zones forms a connection between all the hospital departments. Hand-drawn illustrations developed in collaboration with the graphics office Silo Agency make a further contribution to the soothing atmosphere.
Two lower storeys are reserved for outpatient treatment, while clinical departments occupy the upper ones. Since consideration of patient anxiety played an important role in the design process, the two-storey foyer with its several semi-circular voids and skylights differs considerably from conventional hospital rooms. As a result, a pleasant atmosphere with a distracting effect prevails in this area of the building, lessening fears of pending treatment. A broad passageway with several spaciously proportioned waiting zones forms a connection between all the hospital departments. Hand-drawn illustrations developed in collaboration with the graphics office Silo Agency make a further contribution to the soothing atmosphere.














