The store will not work correctly in the case when cookies are disabled.
// Check if the article Layout ?>
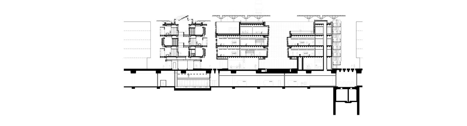
Zollverein Coal Mine, Pit XII in Essen - Conversion and Extension of an Industrial Monument Dating from 1928-32
Gallery
// Additional Check for the jQuery functions?>
Scrollup
Copyright © 2024 DETAIL. All rights reserved.