// Check if the article Layout ?>
School as Settlement: Revius Lyceum Completed in the Netherlands
Foto: Spring Architecten und MoederscheimMoonen Architecten
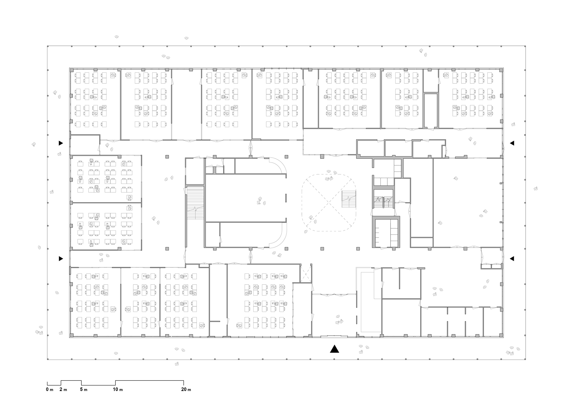
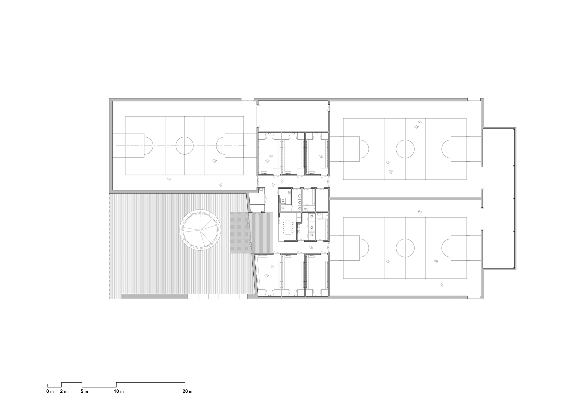
A bit like Charles and Ray Eames’ short film Powers of Ten, this project allows us to zoom from largest to smallest and back again. We start zoomed out, not quite into eternity, but into the town of Doorn, in the middle of the Netherlands. This is where Kaiser Wilhelm II spent his exile at the Huis Doorn estate. The stately home served as a reference for the school’s façade design. Away from the residential areas, the campus, located in the green, forms its own structures. The architects have placed the new school building at the heart of the plot, amid the green. To the east, there is the gymnasium and its three fields. Surrounded by the classrooms along the façade, the centre of the school remains free without becoming a mere traffic area. The open stairway stands in the middle; the two-storey study hall is just opposite. With its high windows of coloured glass and two free-standing spiral staircases, the latter has a touch of the sacred space about it. The children are studying at the tables, engrossed in their books. We have reached our destination.
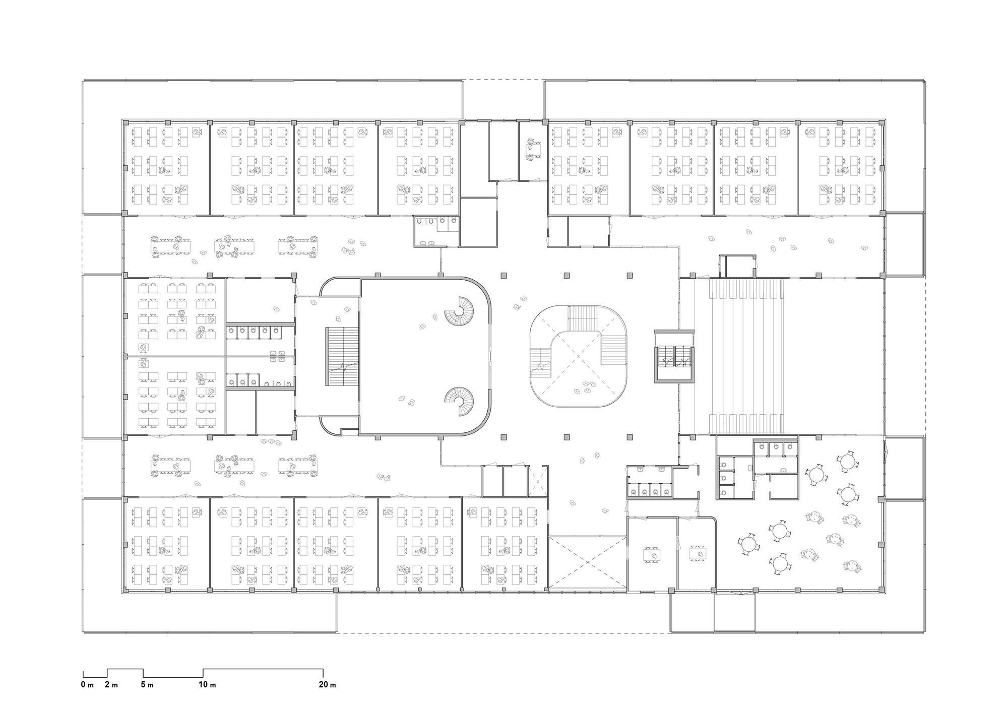
In order to create as many effective learning places as possible, MoederscheimMoonen architects and Spring architecten attempted to make the building as compact as it could be. It does without corridors, for all the access areas are also learning places, known as plazas, for group work or free, individual study. An auditorium oriented in the direction of the gymnasium fits between the stairway and the east façade.
Around the school building, a second façade of coloured steel strips creates a unified appearance and a gradual transition from inside to the outdoors. As with Huis Doorn, the three entrances are each placed centrally on each side of the building and are on the rear façade level. The steel strips have been omitted here. This creates gates which act as the face of the building.
The building phase for the Revius Lyceum was organized in such a way that the school could operate without interruption. Because it is divided into two buildings, the gymnasium could first be erected in its new location on the grounds before the school was constructed on the site of the old gym. Thanks to a heat pump that uses the exterior air as an energy source, and the use of photovoltaic modules, the school requires no gas connection.
In order to create as many effective learning places as possible, MoederscheimMoonen architects and Spring architecten attempted to make the building as compact as it could be. It does without corridors, for all the access areas are also learning places, known as plazas, for group work or free, individual study. An auditorium oriented in the direction of the gymnasium fits between the stairway and the east façade.
Around the school building, a second façade of coloured steel strips creates a unified appearance and a gradual transition from inside to the outdoors. As with Huis Doorn, the three entrances are each placed centrally on each side of the building and are on the rear façade level. The steel strips have been omitted here. This creates gates which act as the face of the building.
The building phase for the Revius Lyceum was organized in such a way that the school could operate without interruption. Because it is divided into two buildings, the gymnasium could first be erected in its new location on the grounds before the school was constructed on the site of the old gym. Thanks to a heat pump that uses the exterior air as an energy source, and the use of photovoltaic modules, the school requires no gas connection.






















