Technik mit Charme: Feuerwache in Saragossa von Idom
Foto: Inaki Bergera
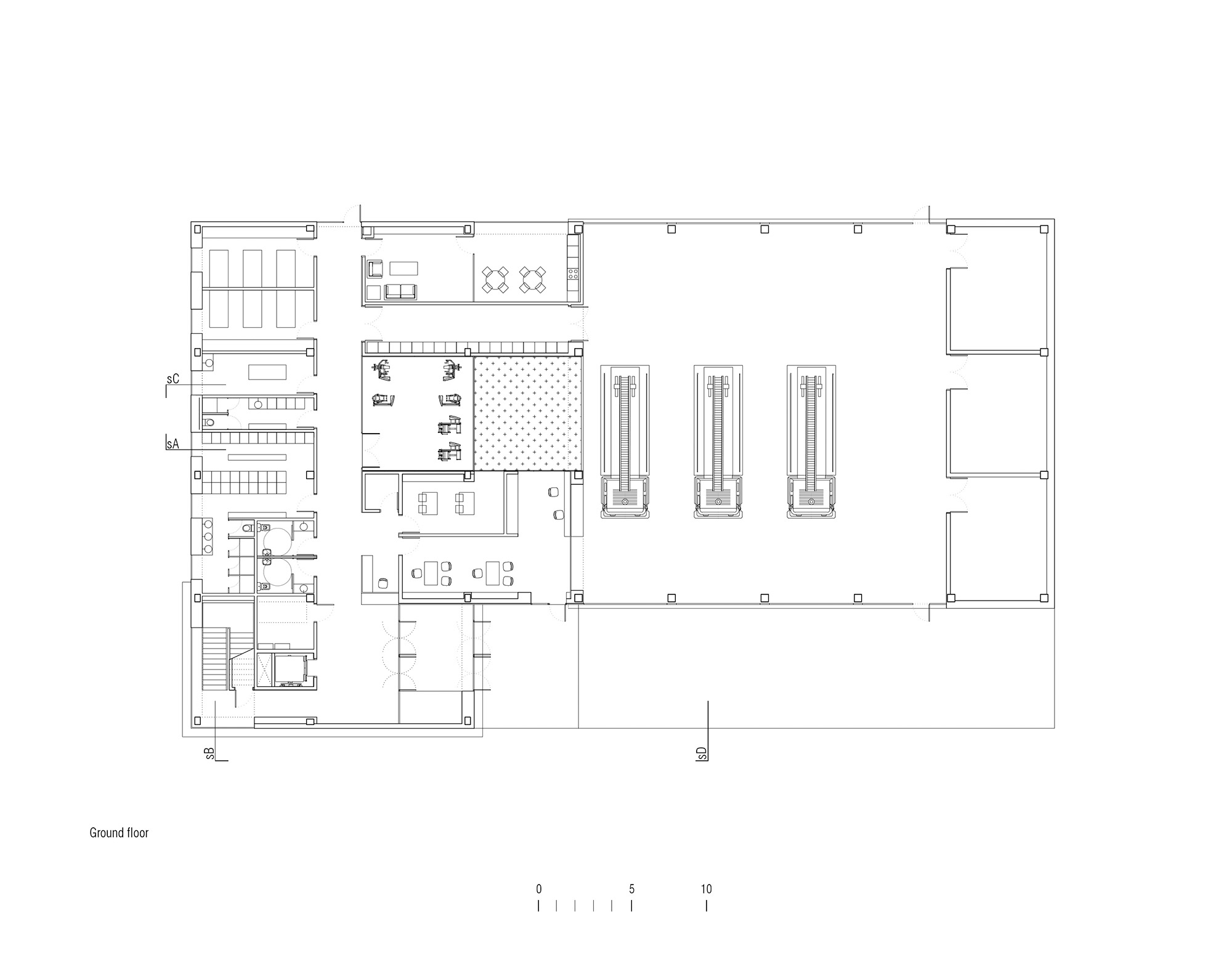
Nach außen präsentiert sich das L-förmiges Gebäude der Feuerwache auf dem 8.000 m2 großen Grundstück als geradliniges Ensemble aus drei, unterschiedlich hohen Volumen. Sie verfügen über jeweils unabhängige Zugänge und sind rund um einen flachen Sockel angeordnet. Dieser bildet den Haupttrakt, in dem sich die Erschließungsflächen und alle versorgenden Funktionen befinden. Neben einem großen Fitnessraum und Gemeinschafts- bzw. Essbereich gibt es auch Umkleiden, Sanitär- und Schlafräume. Sie bieten den Feuerwehrleuten alles, was sie für längere Dienste brauchen. Ein kleiner Patio bringt viel Licht in die Innenräume. Große Fensterflächen sorgen für Blickbeziehungen zwischen den einzelnen Bereichen.
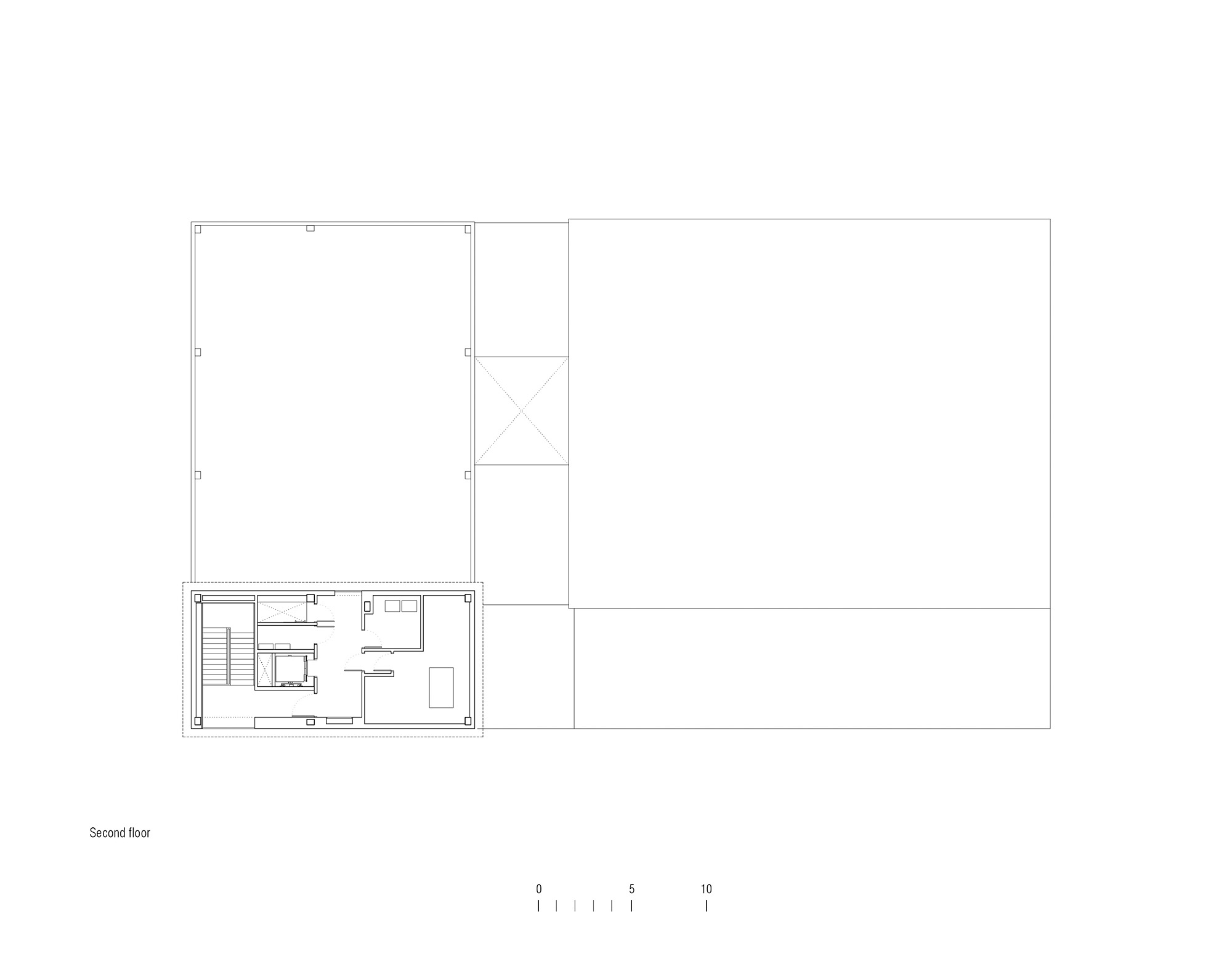
Im Bereich der Wagenhalle, in der die Feuerwehrautos untergebracht sind, ist das Erdgeschoss höher und öffnet sich mit großen Toren nach draußen. Der anschließende Vorplatz bietet nicht nur ausreichend Fläche zum Parken und Manövrieren der Einsatzfahrzeuge, sondern auch für die Autos der Diensthabenden. Dank der guten Verkehrsanbindung ist man bei Einsätzen schnell vor Ort. Auf dem niedrigeren Teil des Sockelvolumens ruht ein zweigeschossiger Turm. Hier sind, wie die Antenne auf dem Dach vermuten lässt, sämtliche Installationen und auch Lagerbestände untergebracht. Sie komplettieren das Raumprogramm der 1.200 m2 großen Feuerwache.
Über einheitliche, vertikal geriffelte Metallfassaden fassen die Planer von Idom die einzelnen Baukörper zusammen und verstärken den technischen Charakter der Wache Nummer 4. Im Bereich des Turms legen sich die Paneele wie ein transluzenter Vorhang vor die Ansichten. Die dahinterliegenden Fenster lassen sich erst bei Dämmerung und künstlicher Beleuchtung in den Räumen von außen ablesen.
Weitere Informationen:
Projektarchitekten: Antonio Lorén Collado, Raimundo Bambó Naya, José Angel Ruiz Gonzalez
Weitere Planer: Nuria Montero García, Alejandro López Pèrez
Statik: Alberto Ayensa, Javier Bentué






















