Vom Abstellgleis geholt
Kulturbahnhof in Aalen
Foto: Brigida Gonzalez
Das Aalener Stadtoval ist eine jener zahlreichen Bahnbetriebsflächen in Deutschland, die in den letzten Jahrzehnten zur neuen Heimat für Anwohner, Unternehmen und Kultureinrichtungen geworden sind. Seinen Namen hat das 6,5 Hektar große Areal schräg gegenüber dem Hauptbahnhof wegen seiner elliptischen Form, die im Westen von Bahngleisen und im Osten von einer Straße begrenzt wird.
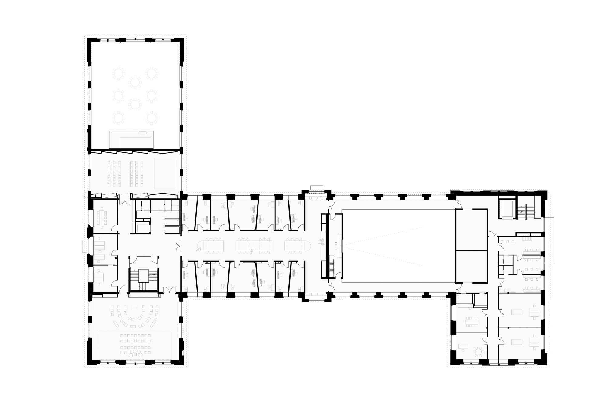
Den größten Bestandsbau auf dem Stadtoval, ein ehemaliges Bahnausbesserungswerk samt Verwaltungsgebäude, hat das Stuttgarter Büro a+r Architekten nun zum Kulturbahnhof umgebaut. Seit seiner Einweihung im Herbst 2020 haben hier das Theater und die Musikschule der Stadt sowie das genossenschaftlich betriebene „Kino am Kocher“ ihren Sitz. Außerdem werden die Säle und das Foyer für Veranstaltungen vermietet.
Einen leichten Start hatte das Projekt nicht. Von den ehemaligen Bahngebäuden war nicht mehr viel übrig als die efeubewachsenen Außenmauern. 2014, ein Jahr bevor a+r Architekten den nicht offenen Realisierungswettbewerb für den Kulturbahnhof gewannen, fielen Teile davon überdies einem Brand zum Opfer. Nur der nördliche Quertrakt hatte noch ein Dach. Es musste jedoch abgerissen werden, weil der Dachstuhl mit Chlor belastet und mit asbesthaltigem Welleternit eingedeckt war.
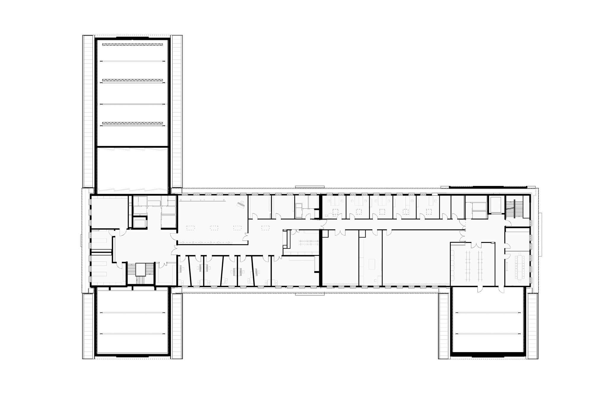
a+r Architekten stellten die Satteldächer der beiden Querbauten in der ursprünglichen Form wieder her. Das Giebeldach des Längstrakts ersetzten sie hingegen durch eine zweigeschossige Aufstockung mit gefalteter Lochblechverkleidung, die die drei Gebäudeflügel wie eine Klammer optisch zusammenhält.
Am unteren Teil der Fassaden ergänzt Sichtbeton im gleichen Farbton das noch erhaltene Mauerwerk. Notwendig war diese Art der Reparatur vor allem am Südflügel, wo die Südfassade und der Ostgiebel komplett neu sind. Aber auch die Mittelstützen der bodentiefen Doppelbogenfenster bestehen aus Betonfertigteilen.
Im Zuge der Umnutzung wurde der Altbau dort, wo überhaupt noch Innenwände und Decken vorhanden waren, vollständig entkernt. Neue, eingestellte Boxen steifen nun das Tragwerk aus. Zwischen den historischen Mauern auf den beiden unteren Etagen sind heute die großen Säle und öffentlichen Nutzungen untergebracht. Dagegen birgt der aufgesattelte Blechquader die kleinteiligeren Räume der Musikschule und der Theaterwerkstätten.
Mehr dazu in Detail 9.2022 und in unserer Datenbank Detail Inspiration.
Weitere Informationen:
Architektur: Ackermann + RaffBauherr: Stadt Aalen
Standort: Georg-Elser-Platz 1, 73430 Aalen (DE)
Tragwerksplanung: Weischede, Herrmann und Partner
HKLS-Planung: Keppler + Kähn
Projektsteuerung: Drees & Sommer




















