Ein Zeichen gegen Flächenfraß
WorkStack in London von dRMM
Seine nach oben auskragende Silhouette macht den WorkStack in seinem industriellen Umfeld einzigartig. © Fred Howarth
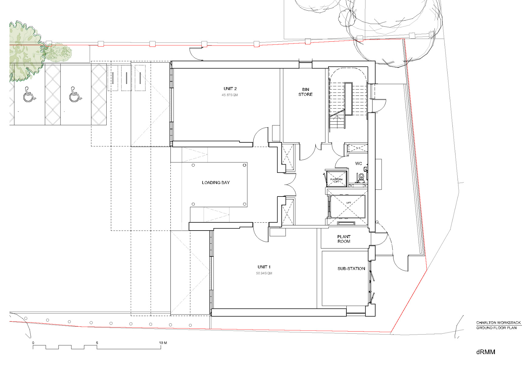
London teilt das Schicksal vieler hochpreisiger Städte in Europa: Für das produzierende Gewerbe wird es zunehmend unmöglich, sich in Zentrumsnähe anzusiedeln. Insbesondere Kleinbetriebe sind davon hart getroffen – es sei denn, sie finden einen Vermieter wie das Greenwich Enterprise Board (GEB). Das Sozialunternehmen hat sich zum Ziel gesetzt, Unternehmen Arbeitsräume zu erschwinglichen Preisen im Londoner Stadtteil Greenwich zur Verfügung zu stellen. Das jüngste Projekt des GEB ist der „WorkStack“: ein fünfgeschossiger Gewerbebau von dRMM an der Ausfallstraße A206. Auf der gegenüberliegenden Straßenseite liegt ein Wohngebiet, im Norden jedoch schließt sich ein Gewerbegebiet an mit den typischen großen Gewerbehallen, gegen deren Flächenfraß der WorkStack ein Zeichen setzen soll.


Auf der Eingangsseite öffnen sich die Industrieeinheiten mit Polycarbonat- und Glasfassaden nach außen. © Fred Howarth
14 Mieteinheiten unterschiedlicher Größe
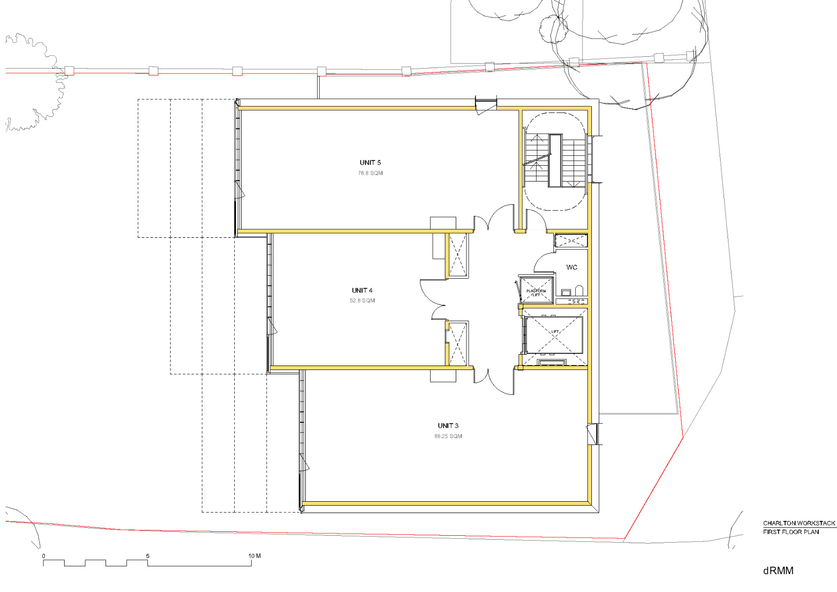
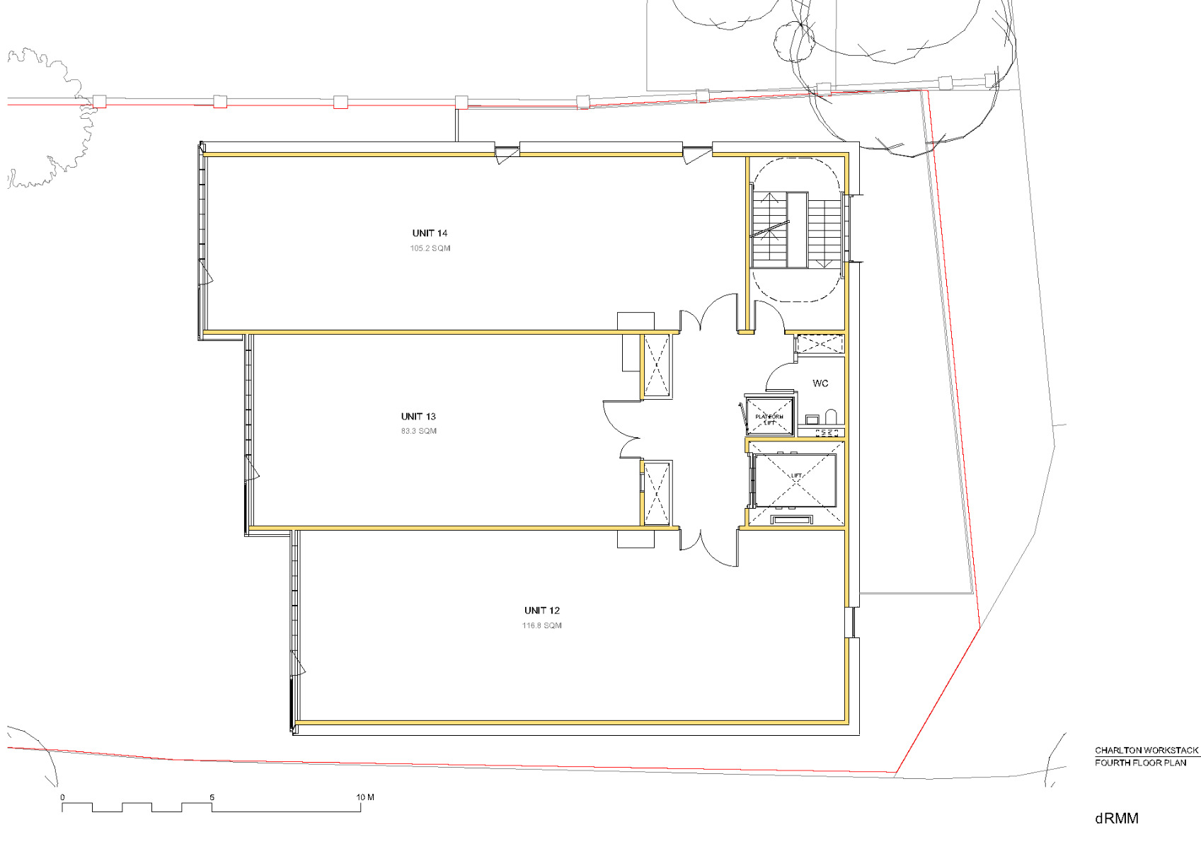
Der 1800 m² große Neubau beherbergt 14 Miteinheiten mit Größen von 55–110 m². Genutzt werden sie unter anderem von Möbeldesignern, Herstellern von Strickmoden und Arbeitsbekleidung sowie einer Fahrrad- und Motorradwerkstatt. Insgesamt, so rechnen die Architekten vor, sind im Gebäude rund 60 Arbeitsplätze untergebracht. Das entspricht einer Dichte von knapp 430 Arbeitnehmern pro Hektar – der Londoner Durchschnitt für Industriebauten beträgt gerade einmal 69 Personen pro Hektar. Die Baukosten betrugen rund 4 Millionen britische Pfund.


Viel Holz prägt die Innenräume. Die Decken und Wände der Obergeschosse bestehen aus Brettsperrholz. © Fred Howarth
Markante Silhouette mit praktischem Nutzen
Die nach oben sukzessiv auskragenden Einheiten bieten manche Vorteile: Mit ihren unterschiedlichen Größen können sie ganz unterschiedliche Raumbedürfnisse befriedigen. Außerdem verschatten sie die darunter befindlichen Ebenen und lassen eine wettergeschützte Anlieferzone vor dem Haus entstehen. Mit Ausnahme des Erdgeschosses, einer Stahlrahmenkonstruktion, besteht der WorkStack fast komplett aus Brettsperrholz. Auch im Inneren dominieren Holzoberflächen. Alex de Rijke von dRMM beschreibt das Entwurfskonzept so: „Warum sollten Industriebauten hässliche, kalte Metallschuppen mit schlechtem Licht und ohne Aussicht nach draußen sein? Der WorkStack ist ein Beispiel für eine neue Art von robustem Arbeitsplatz aus Holz, der warm, hell und praktisch ist. Er zeigt uns, dass Industrie sozial und ökologisch inspirierend sein kann.“
Architektur: dRMM
Bauherr: Greenwich Enterprise Board
Standort: 599 Woolwich Rd, London SE7 7GS (GB)
Tragwerksplanung: Arup, changebuilding
TGA-Planung: Webb Yates
Bauunternehmen: F. Parkinson















