// Check if the article Layout ?>
Bürgerplattform am Meeresstrand: Hastings Pier von dRMM
Foto: Alex de Rijke
Wie die meisten Bauten dieses Typs in Großbritannien ist auch der Pier von Hastings ein Kind des viktorianischen Zeitalters. 1872 wurde er errichtet und erlebte in den 1930er-Jahren seine Blütezeit als populäres Vergnügungszentrum. In den 60er-Jahren baute man ihn zu einer Konzertarena um, in der unter anderem die Rolling Stones, Jimi Hendrix, The Who und Pink Floyd auftraten.
Nach heftigen Sturmschäden im Jahr 1990 ging der einstige Vergnügungskomplex unsicheren Zeiten entgegen. 1999 wurde er geschlossen, 2002 wiedereröffnet, 2004 an eine in Panama ansässige Investorenfirma verkauft und 2006 wegen statischer Mängel erneut geschlossen. Am frühen Morgen des 5. Oktober 2010 brannte das Bauwerk schließlich bis auf sein stählernes Traggerüst nieder.
Angesichts dieser Vorgeschichte ist es erstaunlich, dass der Pier heute, sieben Jahre später, wieder in seiner ursprünglichen Größe wiederhergestellt wurde. Ohne die zahlreichen Vergnügungspavillons zwar, die einst seine Plattform bevölkerten, aber für jedermann öffentlich zugänglich. Schon bald nach dem Feuer machte sich eine neu gegründete Stiftung daran, Geld für den Wiederaufbau zu sammeln. Auch die zuvor lange zögerliche Stadtverwaltung schritt zur Tat. Sie enteignete den Privatinvestor und Eigentümer der Ruine gegen die symbolische Entschädigung von einem britischen Pfund.
Insgesamt hat der Wiederaufbau der Seebrücke 15 Millionen Pfund gekostet. Fast drei Viertel davon finanzierte der britische Heritage Lottery Fund. Aber auch die Bürger von Hastings steuerten rund 600.000 Pfund bei. Im Gegenzug sind sie nun offiziell Anteilseigner an dem neuen Bauwerk.
Die Londoner Architekten deRijke Marsh Morgan (dRMM) hatten schon 2011 einen Wettbewerb um den Wiederaufbau gewonnen. Das Konzept für den neuen Pier entwickelten sie anschließend in zahlreichen Diskussionsveranstaltungen und Workshops mit der örtlichen Bevölkerung. Im Gegensatz zu der vorherigen kommerziellen Nutzung wünschten sich die Bürger vor allem einen öffentlichen, flexibel nutzbaren Ort, an dem Zirkusaufführungen ebenso stattfinden können wie Konzerte und Märkte.
War der Pier zuvor mit Pavillons aller Art vollgestellt, so erheben sich nun lediglich zwei Gebäude auf der 280 Meter langen und bis zu 58 Meter breiten Holzplattform. Einen der beiden langgestreckten Pavillons am Zugang zum Pier haben die Architekten in der ursprünglichen Größe, aber mit weitaus transparenteren Fassaden hergestellt und um zwei holzverkleidete Anbauten ergänzt. Er beherbergt heute ein Restaurant.
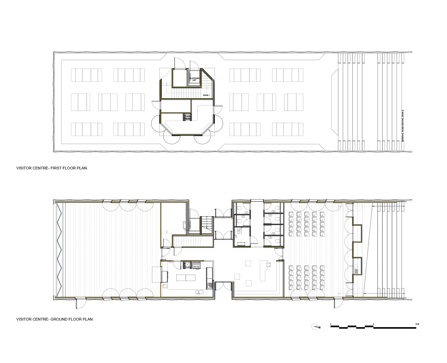
Mitten auf der Seebrücke steht außerdem ein neu gestaltetes Besucherzentrum, auf dessen Dach die Besucher über eine Freitreppe gelangen können. Das Gebäude wurde aus Brettsperrholzelementen erstellt, die im Inneren sichtbar blieben. Die Fassaden sind außen mit übrig gebliebenen Holzdielen des abgebrannten Piers in einer etwas eigenwilligen Fischgrät-Anordnung beplankt. Als neuen Bodenbelag für die immerhin knapp 1,2 Hektar große Seebrücke wählten dRMM tropisches Bongossiholz mit Nachhaltigkeitszertifikat. Eine etwas exotische Wahl – doch die Architekten beteuern, dass kein anderes Material in puncto Langlebigkeit und ökologischen Eigenschaften damit konkurrenzfähig gewesen sei.
Das derzeit noch etwas leere Erscheinungsbild des Piers deuten die Architekten ebenfalls positiv. In Anlehnung an die Ideen von Cedric Price und Archigram aus den 60er-Jahren schreiben sie: »Different users can bring their own architecture to plug in.« Künftig soll das Bauwerk noch um eine bewegliche Überdachung mit Holztragwerk ergänzt werden, die sich komplett über das Besucherzentrum fahren lässt. Dann würde dessen Freitreppe zur Zuschauertribüne für Konzerte und andere Aufführungen, die unter dem großen Schutzdach auf der Holzplattform stattfinden.
Nach heftigen Sturmschäden im Jahr 1990 ging der einstige Vergnügungskomplex unsicheren Zeiten entgegen. 1999 wurde er geschlossen, 2002 wiedereröffnet, 2004 an eine in Panama ansässige Investorenfirma verkauft und 2006 wegen statischer Mängel erneut geschlossen. Am frühen Morgen des 5. Oktober 2010 brannte das Bauwerk schließlich bis auf sein stählernes Traggerüst nieder.
Angesichts dieser Vorgeschichte ist es erstaunlich, dass der Pier heute, sieben Jahre später, wieder in seiner ursprünglichen Größe wiederhergestellt wurde. Ohne die zahlreichen Vergnügungspavillons zwar, die einst seine Plattform bevölkerten, aber für jedermann öffentlich zugänglich. Schon bald nach dem Feuer machte sich eine neu gegründete Stiftung daran, Geld für den Wiederaufbau zu sammeln. Auch die zuvor lange zögerliche Stadtverwaltung schritt zur Tat. Sie enteignete den Privatinvestor und Eigentümer der Ruine gegen die symbolische Entschädigung von einem britischen Pfund.
Insgesamt hat der Wiederaufbau der Seebrücke 15 Millionen Pfund gekostet. Fast drei Viertel davon finanzierte der britische Heritage Lottery Fund. Aber auch die Bürger von Hastings steuerten rund 600.000 Pfund bei. Im Gegenzug sind sie nun offiziell Anteilseigner an dem neuen Bauwerk.
Die Londoner Architekten deRijke Marsh Morgan (dRMM) hatten schon 2011 einen Wettbewerb um den Wiederaufbau gewonnen. Das Konzept für den neuen Pier entwickelten sie anschließend in zahlreichen Diskussionsveranstaltungen und Workshops mit der örtlichen Bevölkerung. Im Gegensatz zu der vorherigen kommerziellen Nutzung wünschten sich die Bürger vor allem einen öffentlichen, flexibel nutzbaren Ort, an dem Zirkusaufführungen ebenso stattfinden können wie Konzerte und Märkte.
War der Pier zuvor mit Pavillons aller Art vollgestellt, so erheben sich nun lediglich zwei Gebäude auf der 280 Meter langen und bis zu 58 Meter breiten Holzplattform. Einen der beiden langgestreckten Pavillons am Zugang zum Pier haben die Architekten in der ursprünglichen Größe, aber mit weitaus transparenteren Fassaden hergestellt und um zwei holzverkleidete Anbauten ergänzt. Er beherbergt heute ein Restaurant.
Mitten auf der Seebrücke steht außerdem ein neu gestaltetes Besucherzentrum, auf dessen Dach die Besucher über eine Freitreppe gelangen können. Das Gebäude wurde aus Brettsperrholzelementen erstellt, die im Inneren sichtbar blieben. Die Fassaden sind außen mit übrig gebliebenen Holzdielen des abgebrannten Piers in einer etwas eigenwilligen Fischgrät-Anordnung beplankt. Als neuen Bodenbelag für die immerhin knapp 1,2 Hektar große Seebrücke wählten dRMM tropisches Bongossiholz mit Nachhaltigkeitszertifikat. Eine etwas exotische Wahl – doch die Architekten beteuern, dass kein anderes Material in puncto Langlebigkeit und ökologischen Eigenschaften damit konkurrenzfähig gewesen sei.
Das derzeit noch etwas leere Erscheinungsbild des Piers deuten die Architekten ebenfalls positiv. In Anlehnung an die Ideen von Cedric Price und Archigram aus den 60er-Jahren schreiben sie: »Different users can bring their own architecture to plug in.« Künftig soll das Bauwerk noch um eine bewegliche Überdachung mit Holztragwerk ergänzt werden, die sich komplett über das Besucherzentrum fahren lässt. Dann würde dessen Freitreppe zur Zuschauertribüne für Konzerte und andere Aufführungen, die unter dem großen Schutzdach auf der Holzplattform stattfinden.
Weitere Informationen:
Kostenplanung: PT Projects
Tragwerksplanung, TGA-Planung, Denkmalschutz: Ramboll
Holzbau: Timber Craft UK
Herstellung Brettsperrholz: KLH
Mobiliar: dRMM mit Hastings & Bexhill Wood Recycling
Kostenplanung: PT Projects
Tragwerksplanung, TGA-Planung, Denkmalschutz: Ramboll
Holzbau: Timber Craft UK
Herstellung Brettsperrholz: KLH
Mobiliar: dRMM mit Hastings & Bexhill Wood Recycling
Weitere Informationen:
Kostenplanung: PT Projects
Tragwerksplanung, TGA-Planung, Denkmalschutz: Ramboll
Holzbau: Timber Craft UK
Herstellung Brettsperrholz: KLH
Mobiliar: dRMM mit Hastings & Bexhill Wood Recycling
Kostenplanung: PT Projects
Tragwerksplanung, TGA-Planung, Denkmalschutz: Ramboll
Holzbau: Timber Craft UK
Herstellung Brettsperrholz: KLH
Mobiliar: dRMM mit Hastings & Bexhill Wood Recycling

























