// Check if the article Layout ?>
Der Sonne entgegen: Architekturfakultät in Clermont-Ferrand
So baute man früher Sanatorien: isoliert inmitten der Natur, konsequent nach Süden ausgerichtet, mit äußerst flachen Gebäudetiefen und nicht selten weit über die umliegende Bebauung hinausragend. Mit dem Sanatorium in Paimio schuf Alvar Aalto 1932 einen modernen Archetyp dieser Gebäudefunktion. Doch er war damit nicht allein: Fast zeitgleich entstand am nördlichen Stadtrand von Clermont-Ferrand in Zentralfrankreich die Lungenheilklinik Sabourin nach Entwürfen von Albéric Aubert.
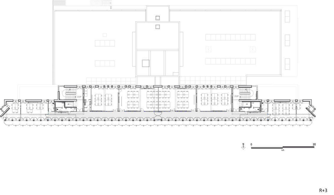
Vier bis sechs Geschosse ragt ihr Hauptflügel mit den Patientenzimmern über den Ostabhang des Puy de Chanturgue empor. Seine Hauptfassade ist fast exakt nach Süden ausgerichtet und bietet einen weiten Ausblick über die Stadt. Bis heute steht das Gebäude isoliert am Rande eines Einfamilienhausgebiets und ist im Westen und Süden von Grün umgeben.
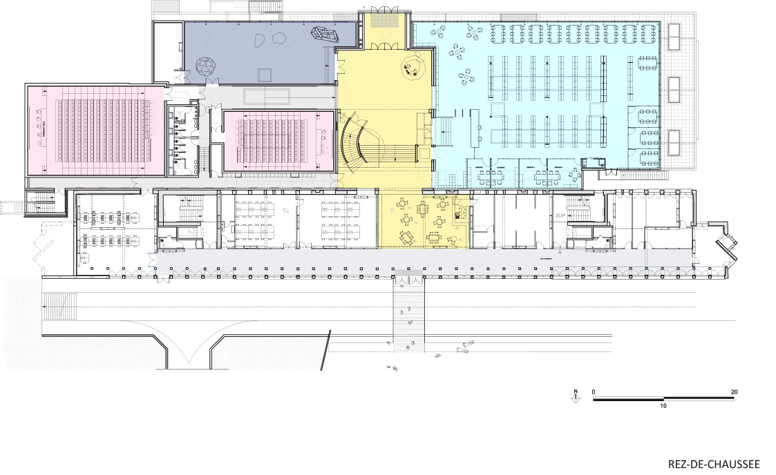
Bis 1996 diente das Gebäude medizinischen Zwecken; danach stand es jahrelang leer und verfiel zusehends, bis 2006 sein Umbau zum Sitz der örtlichen Architekturfakultät begann. Die größten Änderungen nahmen die Architekten du Besset-Lyon an der Straßenseite im Norden vor. Hier hatten zuvor zwei geschwungene Freitreppen – eine für Frauen und eine für Männer - hinauf ins erste Obergeschoss geführt, das als Eingangsetage der Klinik fungierte. Diese beiden Treppen rissen die Architekten nunmehr ab und verlegten den Eingang auf ebenerdiges Niveau. Die schräg vor dem Gebäude gelegene Heizzentrale musste ebenfalls weichen.
Erhalten blieb hingegen der dreigeschossige Mittelbau, der früher die Behandlungszimmer der Klinik enthielt und nun die Eingangshalle sowie einen Hörsaal und Seminarräume aufnimmt. An seiner Stirnseite, über dem Haupteingang, ließen die Architekten große Spiegelflächen anbringen, die den Himmel über Clermont-Ferrand auf den Eingangsvorplatz reflektieren und das massive Bauvolumen leichter wirken lassen.
Flankiert wird der Mittelrisalit auf beiden Seiten von einem verglasten Flachbau, in dem die Architekten die größten Raumvolumina – allen voran zwei Hörsäle und die Bibliothek – unterbrachten.
Der zur Sonne hin orientierte Südflügel beherbergt Büros, Arbeits- und Seminarräume. Hier stellte sich den Architekten die Herausforderung, den Charakter des Hauses als „Sonnenanbeter“ zwar zu erhalten, das Sonnenlicht aber nicht ungefiltert an die Arbeitsplätze dringen zu lassen. Daher sind die Arbeitsräume weitgehend nach Norden ausgerichtet. Die ehemaligen Liegeräume und Balkone an der Südseite, auf denen sich die Lungenkranken früher der Sonnen- und Frischlufttherapie unterzogen, dienen stattdessen als Flure, Begegnungs- und informelle Arbeitsflächen.
Das Sanatorium war in den 30er-Jahren als Stahlbeton-Skelettbau mit Mauerwerkswänden errichtet worden. Diese Tragstruktur entsprach keinen heutigen Anforderungen an Tragfähigkeit und Erdbebensicherheit mehr. Die erforderliche Ertüchtigung nutzten die Architekten, um ein reizvolles Wechselspiel aus alter und neuer Konstruktion zu etablieren. Allenthalben in den Räumen sind nun Unterzüge und V-förmige Pendelstützen aus Stahl zu sehen, die das Tragskelett zusätzlich verstärken und das Gebäude aussteifen.
weitere Informationen:
Geschossfläche: 11500 m2
Kosten: 21,5 Mio. € netto
TGA-Planung: Espace Temps
Kostenplanung: JC Drauart
Akustik: JP Lamoureux
Infrastrukturplanung: ATPI Infra
Brandschutz: Casso & Associés
Kosten: 21,5 Mio. € netto
TGA-Planung: Espace Temps
Kostenplanung: JC Drauart
Akustik: JP Lamoureux
Infrastrukturplanung: ATPI Infra
Brandschutz: Casso & Associés




























