// Check if the article Layout ?>
Historische Hülle: Wohnhaus von Arrokabe Arquitectos
Foto: Luis Díaz Díaz
Lange Zeit war das historische Gebäude von einem Priester bewohnt, bevor es dann für über 30 Jahre leer stand und schließlich zur Behausung für ein Paar mit ihren drei Söhnen werden sollte. Für die junge Familie entwarfen Arrokabe Arquitectos helle Wohn- und Schlafräume auf vier Geschossen. Für die Neugestaltung des alten Hauses blieb die historische Fassade auf der Straßenseite unverändert. Auch alle tragenden Wände blieben bestehen und wurden im Inneren subtil durch eine leichte Holzrahmenbauweise ergänzt.
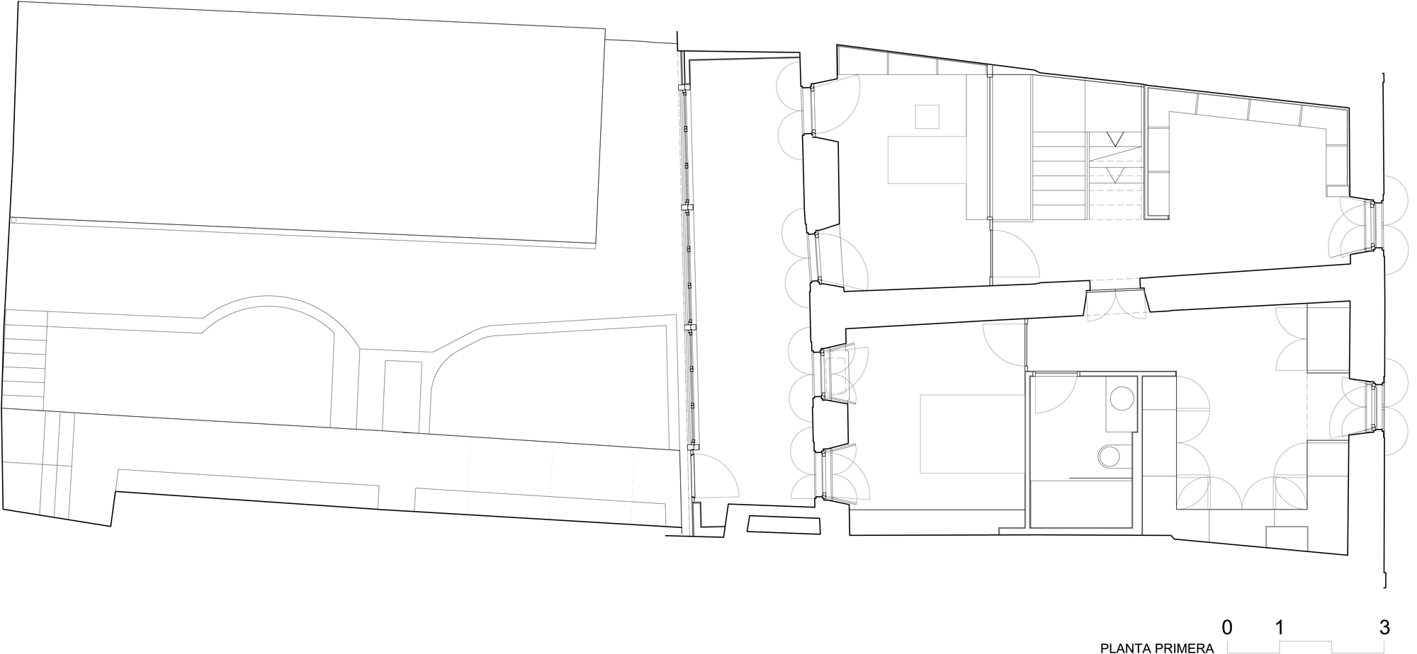
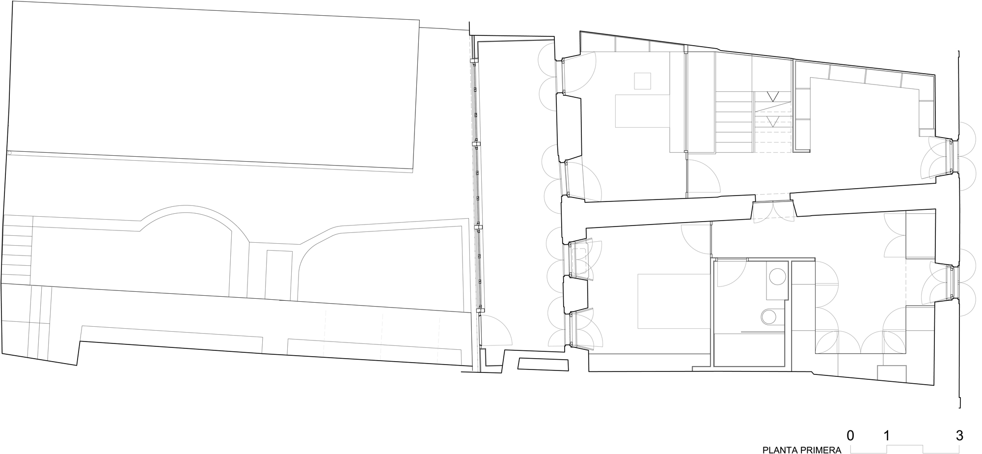
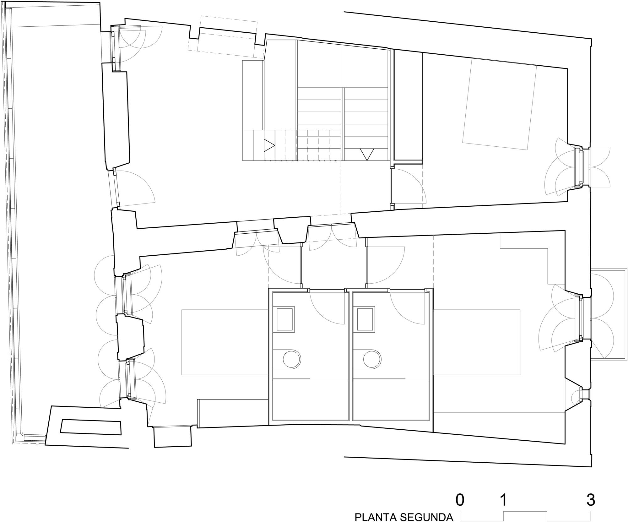
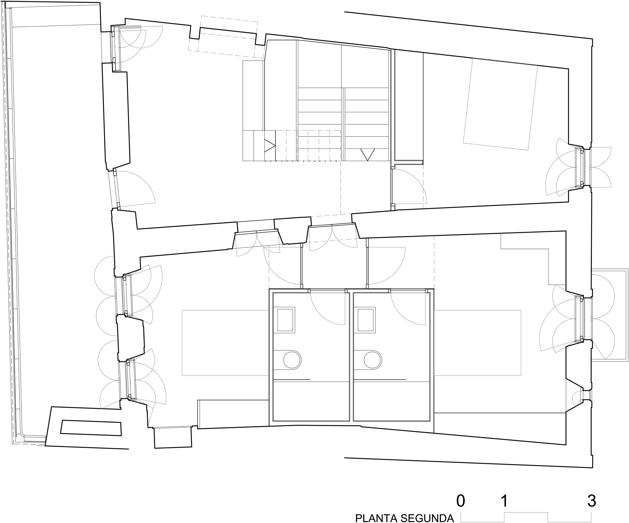
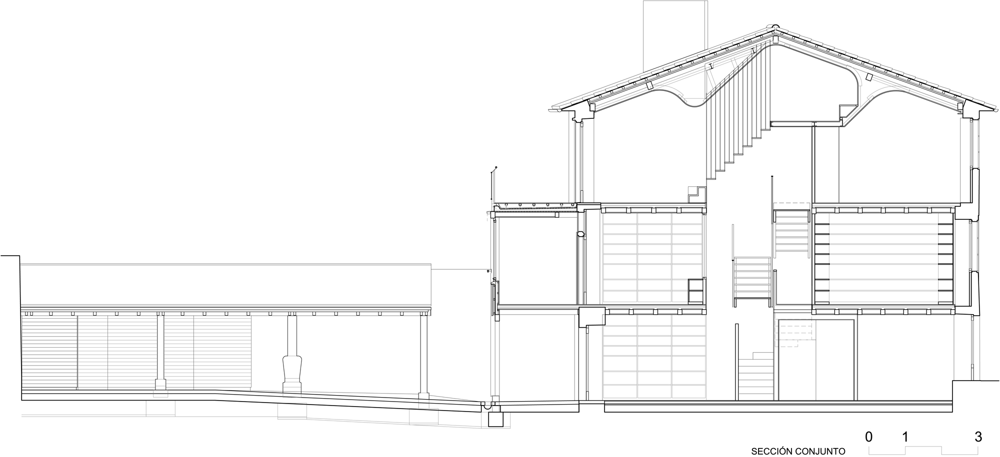
Ein zentrales Element des Hauses bildet die neue Treppe, die auch nach der Sanierung an der ursprünglichen Stelle platziert wurde. Sie verbindet alle vier Etagen und verändert sich in ihrem Aussehen von Geschoss zu Geschoss: Während sie im Erdgeschoss aus massiven Holzstufen und opaker Brüstung besteht, wurde in den folgenden Etagen auf die Setzstufen verzichtet und die Brüstung durch ein goldenes Metallgeländer ersetzt. Ganz oben besteht die Treppe lediglich aus wangenlosen Trittstufen, die von filigranen, weißen Metallstäben begleitet werden. Sie lassen das Licht aus dem Dachraum bis in die unteren Geschosse fallen.
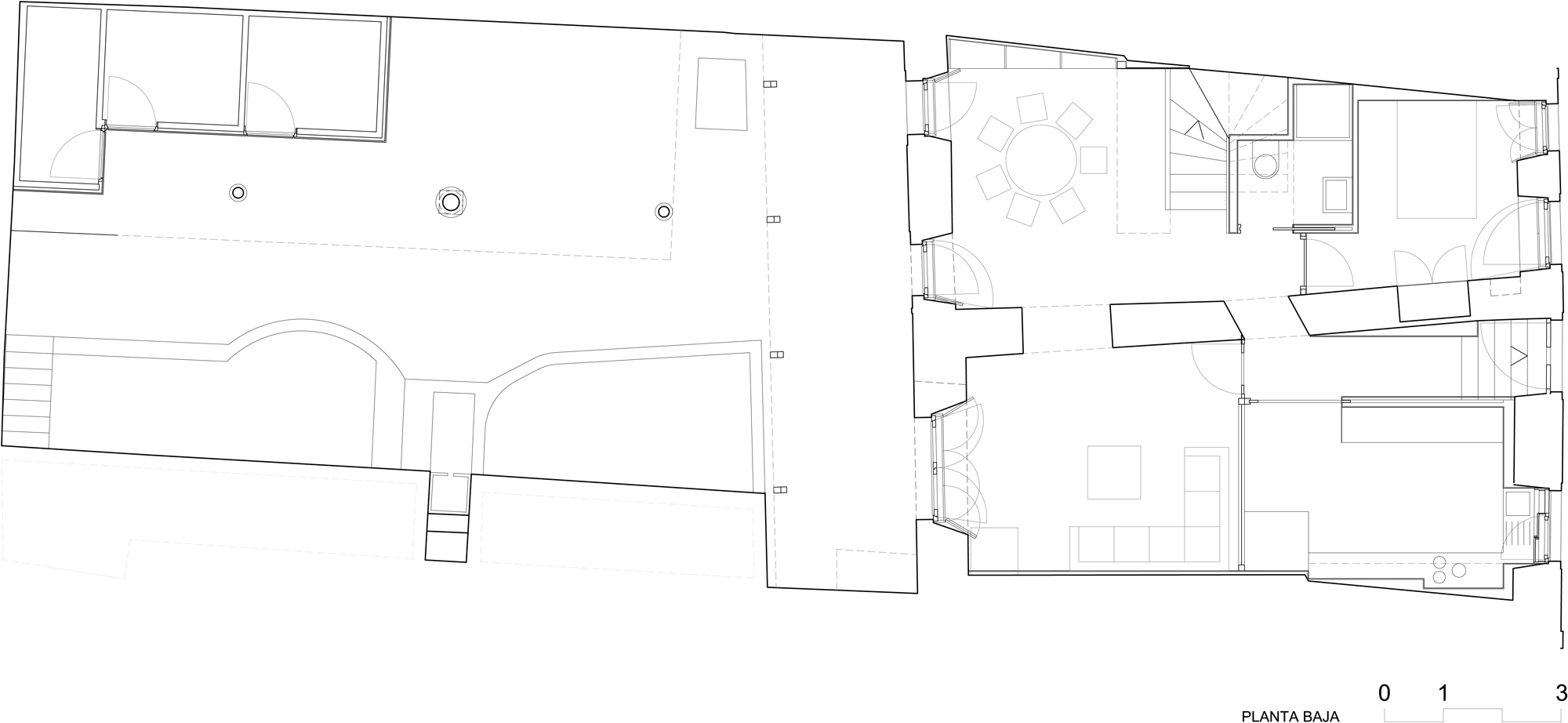
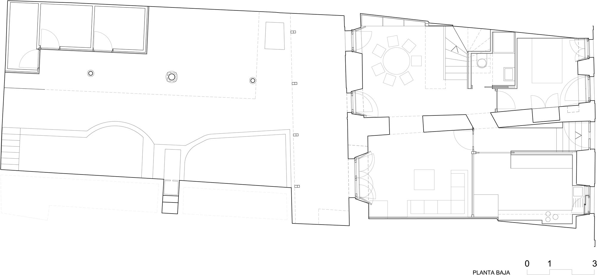
Im obersten Geschoss wurde das bestehende Dach durch eine mit Holz verkleidete, gekurvte Deckenuntersicht verhüllt. Die skulpturale Decke soll einen Kontrast zu den kantigen Linien des Bestandsgebäudes bilden und verleiht dem kleinen Dachraum eine dynamische Note. Hier gibt es einen Arbeitsplatz und einen Raum zum Musizieren. Der Dachraum steht in visuellem Bezug zum zweiten Obergeschoss, in dem sich das Wohnzimmer sowie drei Schlafzimmer befinden. Ein Gästezimmer im ersten Obergeschoss sowie Esszimmer, Lounge und Küche im Erdgeschoss vervollständigen das Raumprogramm.
Während die straßenseitige Fassade des Hauses unangetastet blieb, wurde die Fassade der Hofseite durch einen kleinen Anbau ergänzt, welcher mit einer vertikalen Holzverschalung verkleidet wurde. Er dient als heller Wintergarten und bietet im zweiten Obergeschoss eine großzügige Terrasse. Von hier hat man einen Blick auf den alten, gepflasterten Innenhof, der an warmen Tagen einen schattigen Aufenthaltsort unterhalb eines hölzernen Pultdachs bietet.
Für die junge Familie entstand ein zeitgemäßes und lichtdurchflutetes Heim, welches adäquate Rücksicht auf die historische Hülle des alten Bestandsgebäudes nimmt und gleichzeitig alle Annehmlichkeiten eines modernen Wohnhauses bietet. Hier überrascht das Innere mit hellen, großzügigen Räumen, wobei der historische Kern auf allen Etagen spür- und sichtbar bleibt.
Ein zentrales Element des Hauses bildet die neue Treppe, die auch nach der Sanierung an der ursprünglichen Stelle platziert wurde. Sie verbindet alle vier Etagen und verändert sich in ihrem Aussehen von Geschoss zu Geschoss: Während sie im Erdgeschoss aus massiven Holzstufen und opaker Brüstung besteht, wurde in den folgenden Etagen auf die Setzstufen verzichtet und die Brüstung durch ein goldenes Metallgeländer ersetzt. Ganz oben besteht die Treppe lediglich aus wangenlosen Trittstufen, die von filigranen, weißen Metallstäben begleitet werden. Sie lassen das Licht aus dem Dachraum bis in die unteren Geschosse fallen.
Im obersten Geschoss wurde das bestehende Dach durch eine mit Holz verkleidete, gekurvte Deckenuntersicht verhüllt. Die skulpturale Decke soll einen Kontrast zu den kantigen Linien des Bestandsgebäudes bilden und verleiht dem kleinen Dachraum eine dynamische Note. Hier gibt es einen Arbeitsplatz und einen Raum zum Musizieren. Der Dachraum steht in visuellem Bezug zum zweiten Obergeschoss, in dem sich das Wohnzimmer sowie drei Schlafzimmer befinden. Ein Gästezimmer im ersten Obergeschoss sowie Esszimmer, Lounge und Küche im Erdgeschoss vervollständigen das Raumprogramm.
Während die straßenseitige Fassade des Hauses unangetastet blieb, wurde die Fassade der Hofseite durch einen kleinen Anbau ergänzt, welcher mit einer vertikalen Holzverschalung verkleidet wurde. Er dient als heller Wintergarten und bietet im zweiten Obergeschoss eine großzügige Terrasse. Von hier hat man einen Blick auf den alten, gepflasterten Innenhof, der an warmen Tagen einen schattigen Aufenthaltsort unterhalb eines hölzernen Pultdachs bietet.
Für die junge Familie entstand ein zeitgemäßes und lichtdurchflutetes Heim, welches adäquate Rücksicht auf die historische Hülle des alten Bestandsgebäudes nimmt und gleichzeitig alle Annehmlichkeiten eines modernen Wohnhauses bietet. Hier überrascht das Innere mit hellen, großzügigen Räumen, wobei der historische Kern auf allen Etagen spür- und sichtbar bleibt.






























