Holz, Glas und viel Licht: Dachgeschossausbau mit klarem Statement
Foto: Velux / he und du / David Schreyer
Das noch junge Architekturbüro he und du rund um Elias Walch und Christian Hammerl aus Innsbruck realisierten den Dachgeschossaufbau eines bestehenden Wohngebäudes. Hierbei sollte vor allem eine clevere Tageslichtplanung mit Dachfenstern von Velux entscheidend zur Wohnqualität beitragen. Walch agierte nicht nur als Architekt, sondern gleichzeitig als Bauherr. Dabei plante und baute er sogar den Wohnraum eigenhändig für seine junge Familie aus.
Komplexer Planungs- und Bauprozess
Bevor mit dem Innenausbau begonnen werden konnte, bewältigten die Architekten einen langen Planungs- und Bauprozess. Der Umbau war zunächst mit vielen rechtlichen Einschränkungen und Hindernissen verbunden, da das Haus in einer Schutzzone steht und seine Mauern die Grenzen des Grundstücks definieren. Das bestehende Dach zu entfernen, erforderte eine Sondergenehmigung. Das neue Dach mit der Form eines Satteldachs erfüllt nun alle gesetzlichen Anforderungen. Dennoch fällt die Form aus dem gewohnten Rahmen. Die markante, auskragende Loggia reicht in einer Neuinterpretation der ortstypischen Dachüberstände so weit wie das alte Dach über die Straße. Ein altes, dekoratives Holzstützelement wurde dabei bewahrt. Das Dachgeschoss realisierten die Architekten mit einer großen Gaube und mit einem Zugang zu einer kleinen Dachterrasse sowie einer großen Anzahl an Velux-Fenstern. Außerdem wurden Lüftungs-, Heizungs- und Abwasserrohre gesetzt. Das Projekt beweist insgesamt, dass eine traditionelle Form auch einen zeitgenössischen Charakter haben kann.
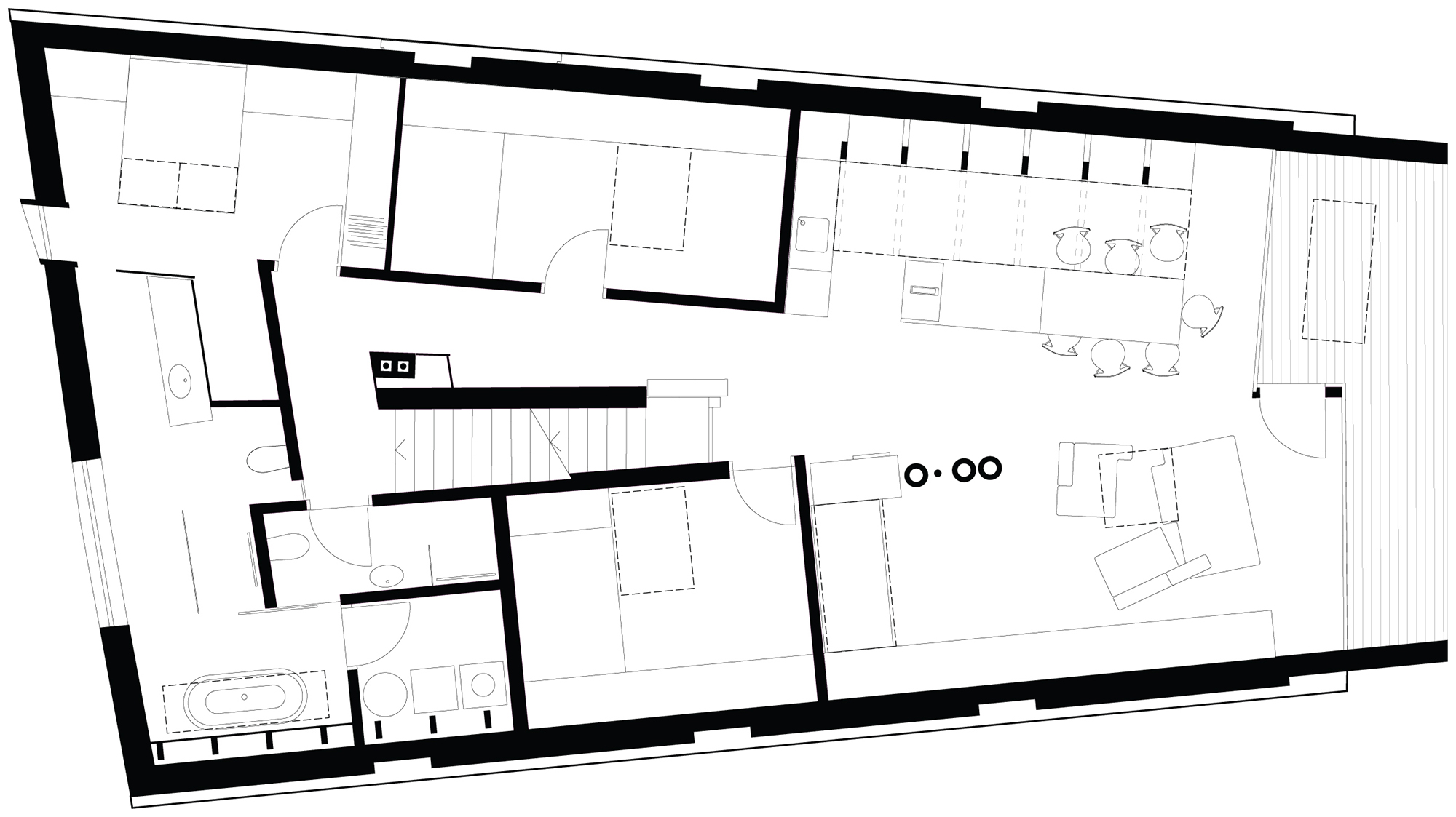
Offen gestaltete Räume mit viel Licht
Die Wohnung wird über das oberste Vollgeschoss erschlossen. Über eine Treppe gelangt man in die Dachwohnung, die sich in einen Tages- und einen Nachtbereich aufteilt. Die Lage der darunterliegenden Wände beeinflusste dabei die Grundrissgestaltung. Der Tagesbereich umfasst einen offenen Raum, der den Blick zu beiden Seiten des Gebäudes erlaubt. Strukturiert wird er durch drei raumdurchdringende Rohre und einen Kamin. Zur Loggia hin ist die Giebelwand durch einen Rücksprung sowie eine durchgängige Verglasung gekennzeichnet. Dies schafft ein Maximum an Licht und Transparenz sowie eine kluge Verzahnung von Innen- und Außenraum. Im Bereich der Schlafräume galt es, ebenfalls viel Tageslicht einzufangen. Jedes Schlafzimmer erhielt ein großes Dachfenster. Die Öffnungen befinden sich, wo immer möglich, in den Ecken der Räume. Eine solche Position erhöht dank der Reflexion auf weißen Wandflächen die Qualität des Tageslichts. An anderen Stellen im Dachgeschoss wurde diese Position gewählt, um den darunterliegenden Raum zu vergrößern sowie Ausblicke in den Himmel zu ermöglichen. Und selbst das Bad ist kein geschlossener dunkler Raum, sondern lichtdurchflutet.
Smarte Technik, bewährte Materialwahl
Das Raumerlebnis ist von der Tageslichtplanung und von der speziellen Dachfensterkonstruktion geprägt. Dabei griffen die Architekten auf eine Kombination aus manuell zu öffnenden und automatischen Dachfenstern zurück. Diejenigen Fenster, die niedrig platziert sind, lassen sich manuell öffnen. Die anderen in der Nähe des Firstes, öffnen automatisch. Dabei spielen auch smarte Komponenten eine Rolle. Die Automatisierung erlaubt eine Steuerung über das Smartphone, etwa vom Büro aus, sodass die Wohnung beim Betreten bereits gelüftet ist.
Die Vorliebe für den auch im Innsbrucker Umbauprojekt verwendeten Werkstoff Holz geht im Fall der beiden Architekten auf ihr Studium an der Fakultät für Architektur in Innsbruck zurück. „Holz ist ein ökologisch nachhaltiges Material, das sich auch dank seiner thermischen Eigenschaften leicht im Detail entwickeln lässt. Gerade Baustellen im Bestand profitieren enorm von Holzkonstruktionen, vor allem aus zwei Gründen: dem geringen Gewicht des Materials und den Vorfertigungsmöglichkeiten, die es erlauben, innerhalb weniger Tage eine komplette Etage zu montieren", erklärt Walch seine bevorzugte Materialwahl.
Weitere Informationen unter:
www.velux.de













