Holzbau im Hochzeitskleid: Hotel Bergamo in Ludwigsburg
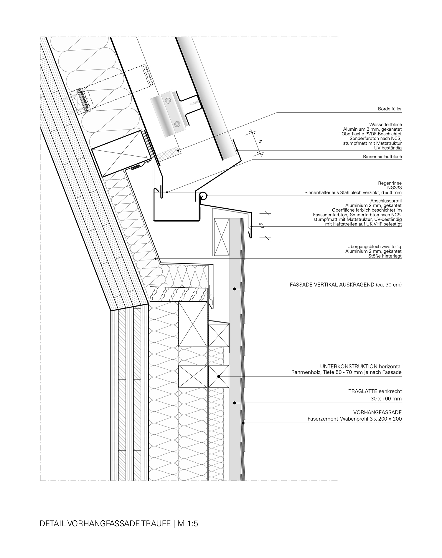
An einem solchen Standort bleibt für Architekten wohl nur demonstrative Zurückhaltung: Die Nachbarschaft des Ludwigsburger Hotels Bergamo ist ein etwas wirres Abbild der Baugeschichte der Stadt – von Wohnhäusern aus dem 18. Jahrhundert bis zum Marstall-Center, einem Großkomplex der 70er-Jahren mit Shoppingcenter und Wohnhochhäusern, der direkt auf der gegenüberliegenden Straßenseite emporragt. Der in jungfräuliches Weiß gehüllte Neubau der Stuttgarter Architekten wurde von der Stadt Ludwigsburg als ein Stück Stadtreparatur initiiert und sollte auch einen Impuls für eine klimaneutrale Zukunft setzen. Aluminium-Trapezbleche und Faserzementschindeln bilden die jungfräulich-weiße Hülle, in der bis auf das Erdgeschoss ein reiner Holzbau steckt. Eine Vorarlberger Zimmerei fertigte die Raummodule aus Brettschichtholz vor, ihre Montage vor Ort dauerte dann nur noch fünf Tage. Der Werkstoff ist in den 55 Zimmern unverkleidet sichtbar. In den Gemeinschaftsbereichen im Erdgeschoss erinnert immerhin noch das von den Architekten entworfene, aus massiver Esche gefertigte Mobiliar sowie das Eschenholzparkett an den ökologischen Anspruch des Hauses. Die schlichte, weitgehend symmetrische Kubatur des Neubaus kaschiert die Tatsache, dass die Architekten mit einer schwierigen Topografie konfrontiert waren: Nach Osten fällt das Terrain leicht und nach Norden stark ab. Ins Haus gelangt man von einem neu angelegten, etwas tiefer liegenden Vorplatz im Osten, das Untergeschoss ist halb in den Hang eingegraben und von der Nordseite aus ebenerdig zugänglich.

























