// Check if the article Layout ?>
Holzfenster zum Hof: Sanierung eines Bürogebäudes in Paris
Thomas Lang
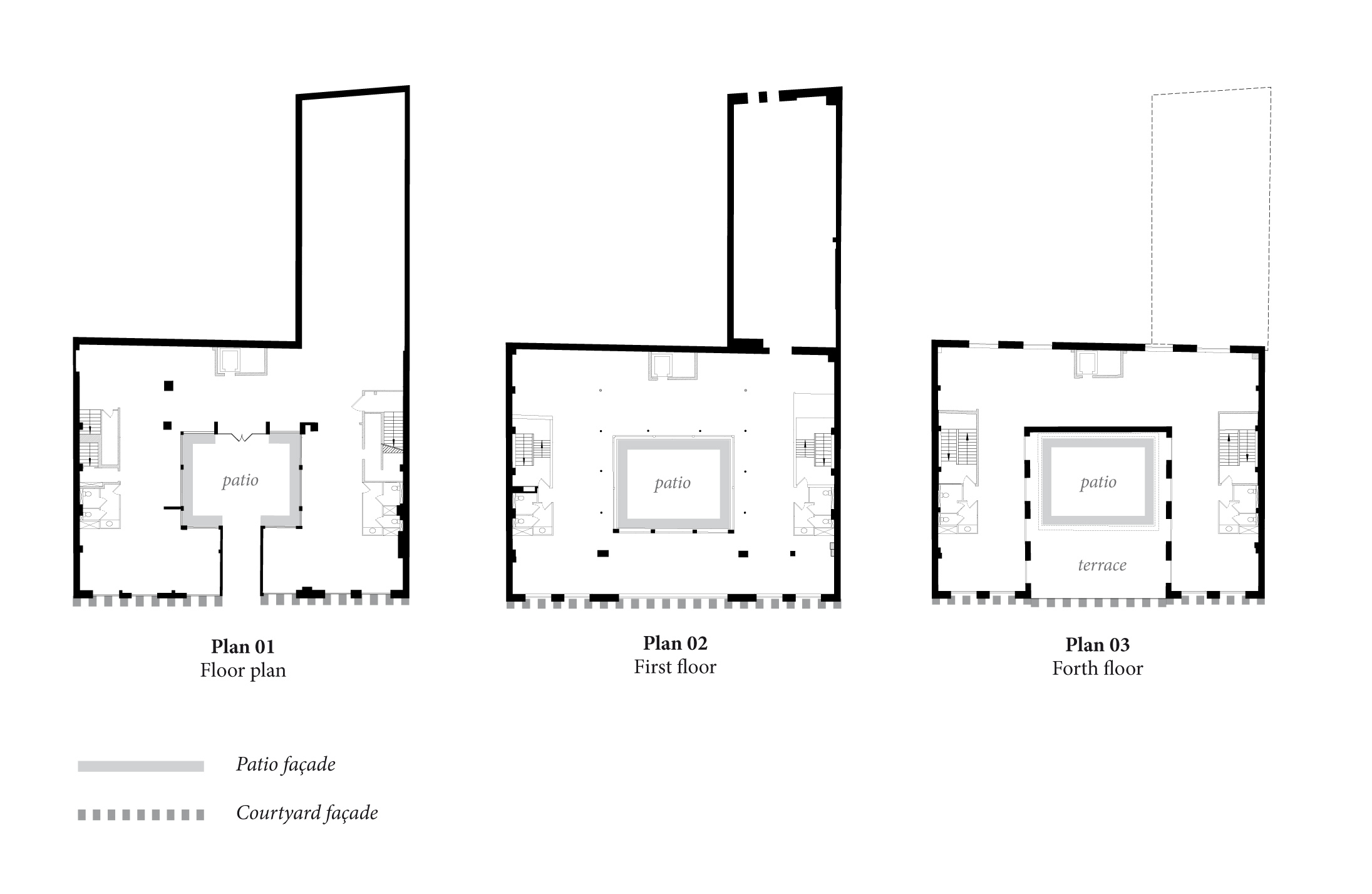
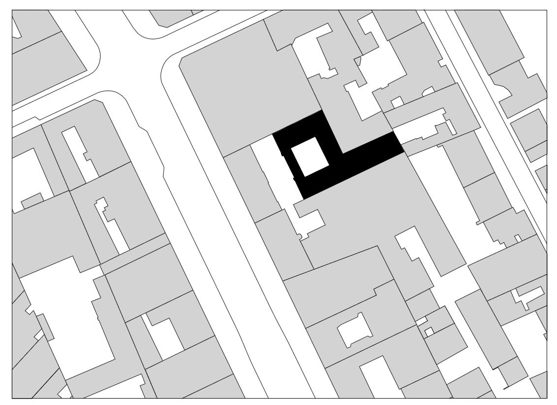
Das umgebaute Bürohaus steht an der Avenue Parmentier unweit des Pariser Friedhofs Père Lachaise. Von der Straße aus ist es indessen nicht zu sehen, sondern verbirgt sich komplett im Inneren des Haussmann’schen Straßenblocks. Seine Hauptfassade geht auf einen Innenhof hinaus, und die vier Gebäudeflügel umschließen ihrerseits einen weiteren, kleineren Patio. Ursprünglich geht das Gebäude auf das Ende des 19. Jahrhunderts zurück. Seine heutige Größe erhielt es jedoch erst durch eine Erweiterung in den 70er-Jahren.
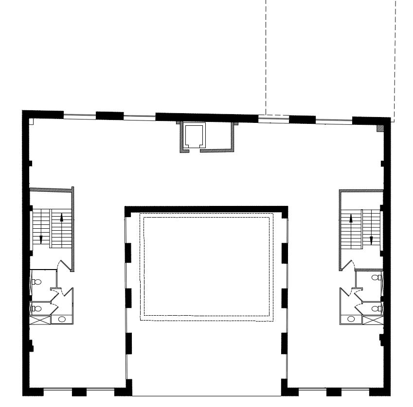
Damals entstanden auch die glatten, mit Aluminiumblech verkleideten Bandfassaden zum Innenhof und zum Patio, die mit den historischen Bauten ringsum so gar nicht harmonisieren wollten. Ihnen galt das Hauptaugenmerk der Architekten bei der Umgestaltung: Die Fenster wurden spürbar vergrößert und die Brüstungsfelder der Eingangsfassade mit Holzlamellen verkleidet, die durch dazwischen angebrachte, schwarz lackierte Stahlringe stabilisiert werden. Die Lamellenverkleidung greift auf subtile Weise auch auf die Altbaufassaden zur Linken und Rechten über und verzahnt so historische und neuere Bauteile.
Rund um den Patio sind die Fassaden hingegen schlichter gestaltet; hier wechseln sich hell verputzte Brüstungsbänder und manuell zu öffnende Holzfenster ab. Mit vorspringenden Gesimsen und Fassadenpfosten griffen die Architekten die Gliederung und Dreidimensionalität der historischen Architektur ringsum auf und machten so die kalte Glätte des ehemaligen 70er-Jahre Bürobaus vergessen.














