Holzskelett XXL: Bürogebäude T3 in Minneapolis
Foto: Ema Peter
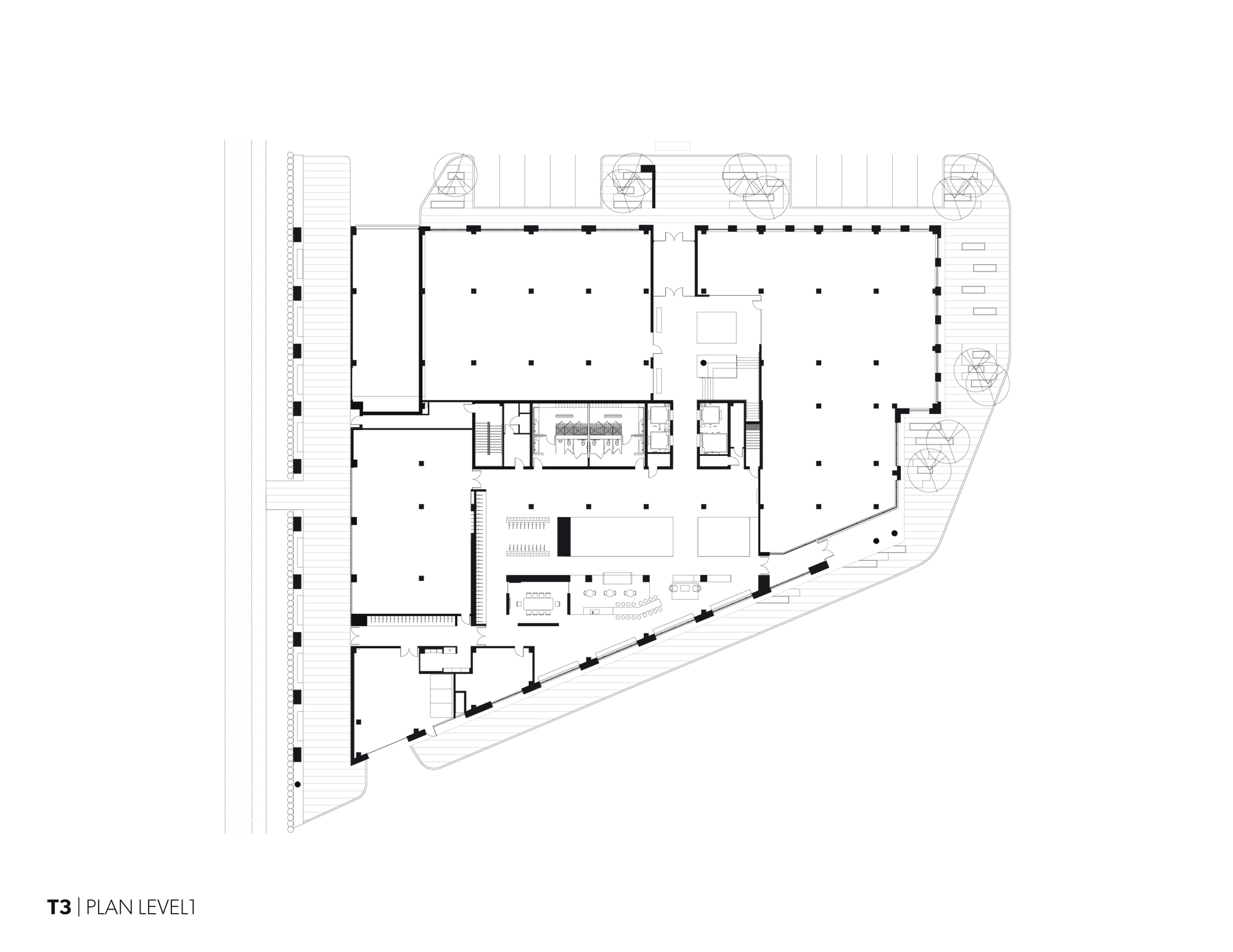
Früher prägten Lagerhäuser, mehrgeschossige Industriebauten und riesige Asphaltparkplätze das North-Loop-Viertel nördlich der Innenstadt von Minneapolis. Vor einigen Jahren wurde hier ein neues Baseballstadion errichtet und das Gebiet von mehreren Tramlinien erschlossen. Seither hat sich der North Loop mehr und mehr zu einem beliebten Wohn- und Bürogebiet gewandelt. Das siebengeschossige Bürohaus T3 wird von seinen Architekten und dem Investor als größter zeitgenössischer Holzbau in Nordamerika vermarktet. Er beherbergt insgesamt 22 000 m2 Fläche auf sieben Geschossen, von denen die oberen sechs in Holzskelettbauweise errichtet wurden. Nur das Erdgeschoss und der zentrale Erschließungskern bestehen aus Stahlbeton. Mit 85 Fuß (knapp 26 Meter) Gesamthöhe reizt der Neubau die im US-Bundesstaat Minnesota erlaubte Maximalhöhe für Holzbauten voll aus. Eine Sondergenehmigung war damit nicht erforderlich, wohl aber eine Sprinkleranlage, zumal die Holzoberflächen im Inneren sichtbar belassen wurden.
Für die Stützen und Träger wählten die Architekten Brettschichtholzelemente, wobei die Stützenquerschnitte je nach Geschoss (und damit je nach Belastung) zwischen 25 x 30 cm und 25 x 48 cm variieren. Die Deckenelemente bestehen ähnlich wie bei der Brettstapelbauweise aus zahlreichen hochkant angeordneten Holzquerschnitten, die jedoch nicht durch Holzdübel, sondern durch Nägel miteinander verbunden werden. Diese Bauweise (englisch nail laminated timber) hat in Nordamerika bereits eine lange Tradition, wobei die Plattenelemente üblicherweise erst auf der Baustelle hergestellt werden. In diesem Fall entstanden sie hingegen in einer Fabrik im kanadischen Winnipeg und wurden über mehrere 100 Kilometer auf die Baustelle transportiert. Das Holz für die Decken stammt von Nadelbäumen, die von einer nordamerikanischen Art des Borkenkäfers befallen waren und daran zugrunde gegangen sind.
Die meisten der 1100 Deckenelemente haben ein Format von 6 x 2,4 m und liegen an den Schmalseiten auf Holzunterzügen auf. Innerhalb der Deckenebene wurden die Elemente mit langen Bewehrungsschrauben zu einer statisch wirksamen Platte verbunden. Für die Erstellung des Rohbaus benötigte das Holzbauunternehmen lediglich neun Tage pro Geschoss. Eine Trittschalldämmung und eine Estrichschicht komplettieren den Deckenaufbau und sorgen für den nötigen Schallschutz. Doppelböden oder abgehängte Decken gibt es nicht – das Konzept der Architekten sieht vor, dass alle Leitungen sichtbar unter den Decken geführt werden. Diese blieben holzsichtig und werden nachts durch Deckenstrahler in Szene gesetzt, sodass die Holzkonstruktion durch die großflächigen (bis 228 x 457 cm) Fenster von der Straße aus sichtbar wird.
Für die Fassaden griffen die Architekten auf eine vorgehängte Cortenstahlverkleidung zurück, die farblich an die umliegenden Ziegelbauten angepasst ist, aber deutlich weniger Gewicht auf die Waage bringt und auch eine bessere CO2-Bilanz in der Herstellung besitzt als eine Ziegelschale. Die Grundrisse von T3 sind vom regelmäßigen Stützraster des Holzskeletts geprägt und flexibel teilbar. Ein definiertes Maximum an Mietern pro Geschoss gibt es laut Architekten nicht. Allein drei der sieben Ebenen hat derzeit der Versandriese Amazon angemietet; die übrigen Geschosse teilen sich teils mehrere Firmen miteinander. Im Erdgeschoss hat der Investor unter anderem Läden, ein Restaurant, ein Gemeinschaftsbüro und die zentrale Lobby des Bürohauses untergebracht.
Energieplanung: DLR Group
Tragwerksplaner: Magnusson Klemencic Associates, Chicago
Landschaftsarchitekten: Damon Farber, Minneapolis
Bauunternehmen: Kraus-Anderson, Minneapolis
Holzbau: StructureCraft, Delta

















