// Check if the article Layout ?>
Ideen spinnen statt Baumwolle: Gründerzentrum in Dünkirchen
Viel weiter nördlich geht es in Frankreich nicht mehr: Der Fährhafen Dünkirchen liegt am Ärmelkanal unweit der belgischen Grenze und ist seit jeher als Marinestützpunkt und Industriestandort bekannt. Auf einem ehemaligen Industrieareal direkt am Bahnhof ist nun einer der jüngsten und charaktervollsten »Co-working Spaces« des Landes entstanden. Das viergeschossige Backsteinbauwerk im Art-Deco-Stil und die benachbarte Maschinenhalle waren 1928 als Baumwollspinnerei errichtet worden und hatten jahrelang leer gestanden, bevor sie nun als Gründerzentrum zu neuem Leben erweckt wurde.
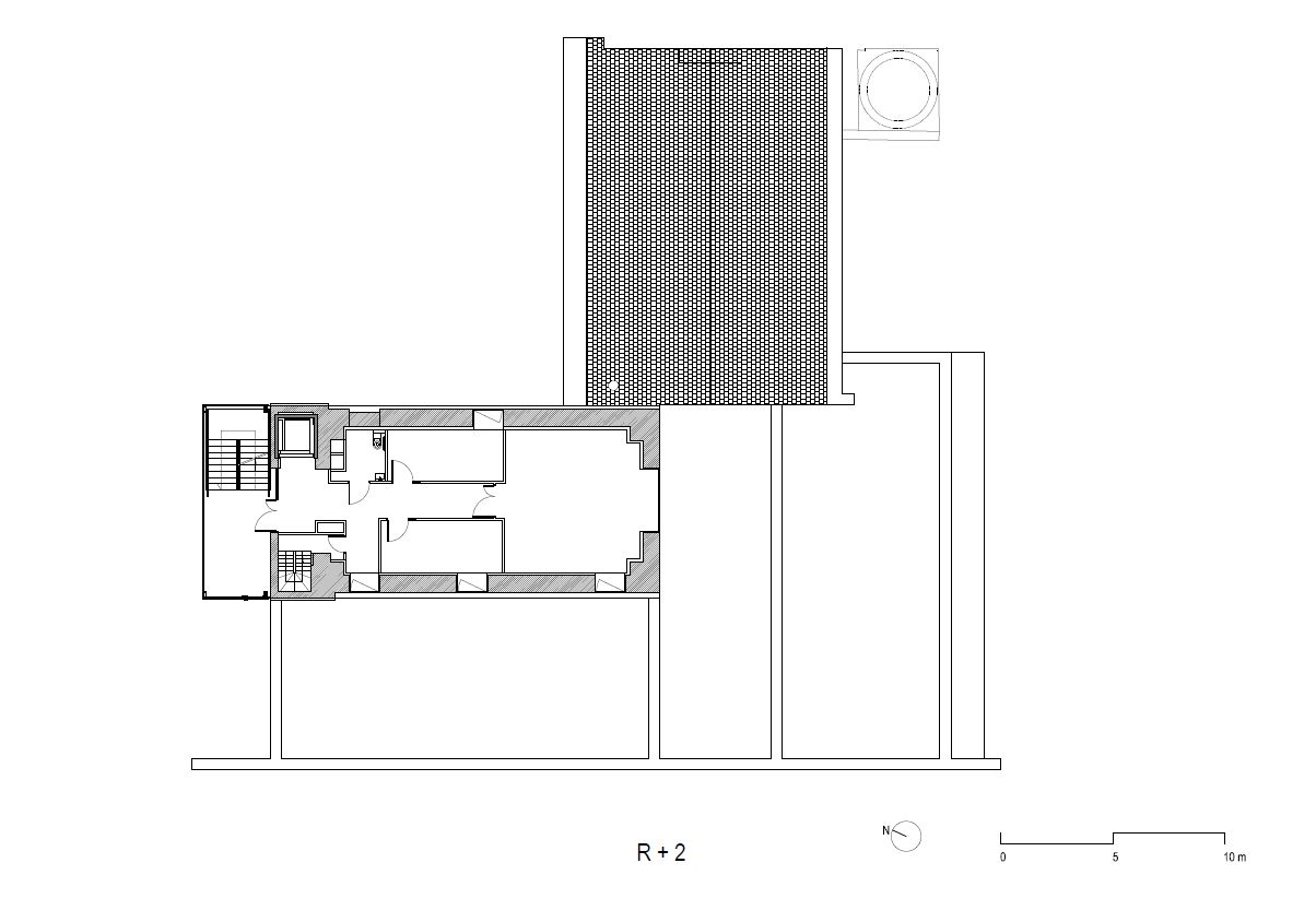
Initiator des Umbaus ist das Dünkirchener Sozialunternehmen Work & Co; der Entwurf stammt von dem Architekturbüro Coldefy & Associés aus Lille. Sie stellten dem zweiteiligen Gebäudekomplex zwei eingeschossige Baukörper zur Seite. Einer davon dient als Cafeteria, der andere, zum geräumigen Vorplatz hin orientierte beherbergt eine Kinderkrippe. Die alte Maschinenhalle wird als Konferenz- und Seminarraum genutzt.
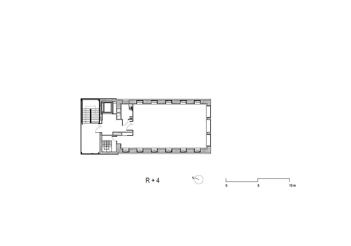
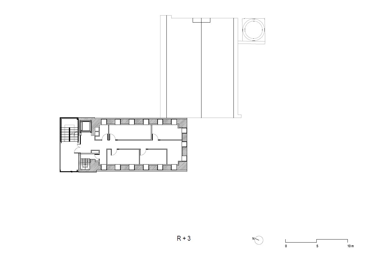
Nach wie vor beherrscht jedoch das hoch aufragende Spinnereigebäude den Gesamtkomplex. Um darin knapp 500 Quadratmeter Büroflächen unterbringen zu können, fügten die Architekten dem Altbau zwei zusätzliche Geschossdecken als erstes und drittes Obergeschoss ein. Der alte Industrieaufzug wurde durch einen Personenaufzug ersetzt; die bestehende Treppe blieb erhalten.
Büromobiliar mit Werkstattcharakter
Je nach Lage der Räume im Gebäude unterscheidet sich ihr Charakter deutlich: Manche Bereiche sind recht niedrig und besitzen relativ kleine Bogen- oder Bullaugenfenster; im obersten Geschoss hingegen ist unter den hölzernen Dachbindern ein weitläufiges Großraumbüro entstanden. Die alten Fensteröffnungen blieben erhalten und wurden lediglich mit neuen Fenstern versehen. Zusätzlich ließen die Architekten vor allem im 1. und 3. Obergeschoss neue Öffnungen in die Außenwände brechen. Diese sind zwar teils deutlich größer als die Bestandsfenster, folgen in ihrer Anordnung jedoch der Fassadengliederung des alten Spinnereigebäudes.
Die werkbankartigen Arbeitstische mit Stahlgestell sowie die mit alten Jutesäcken bezogenen Bürostühle sind Sonderanfertigungen nach Entwürfen von Coldefy & Associés. Erstere bestehen zu großen Teilen aus Materialien, die die Architekten in der alten Spinnerei vorfanden und wiederverwenden ließen.














