Kleine Perle in Hamburg: Technikgebäude von Spine Architects

Foto: Martin Kunze

Die Helmut-Schmidt-Universität in Hamburg-Jenfeld ist eine von zwei Universitäten der Bundeswehr in Deutschland. Das um 1972 errichtete Gebäudeensemle steht mittlerweile unter Denkmalschutz.
Das Rechenzentrum von Spine Architects ist das erste von mehreren neu entstehenden Technikgebäuden auf dem Campus. Es liegt locker eingefügt zwischen den im großzügigen Park verstreuten Gebäuden.
Seine horizontale Gliederung und die Materialität der Fassade sind eine formale Hommage an die Bestandsgebäude. Die Gestaltung des etwa 245 m² großen, eingeschossigen Gebäudes ist sehr zurückgenommen. Weiß glänzende, pulverbeschichtete Aluminiumpaneele verkleiden die Fassade. Im nach oben offenen Technikbereich sind Löcher in die Paneele gestanzt, sodass er luftiger und durchlässiger erscheint. Dieser Wechsel in der Fassade sowie eine leichte Verjüngung der Kubatur gliedern den Baukörper. Mit den flächenbündigen Türen und verdeckt geführten Fallrohren halten die Architekten die geforderten Gestaltungsvorgaben ein und schaffen einen schlichten, aber nicht schmucklosen neuen Mitspieler auf dem Uni-Campus.

Foto: Martin Kunze

Foto: Martin Kunze

Foto: Martin Kunze

Foto: Martin Kunze

Foto: Martin Kunze

Foto: Martin Kunze

Foto: Martin Kunze

Foto: Martin Kunze

Foto: Martin Kunze

Foto: Martin Kunze

Foto: Martin Kunze

Visualisierung: Spine Architects

Visualisierung: Spine Architects

Lageplan - Grafik: Spine Architects

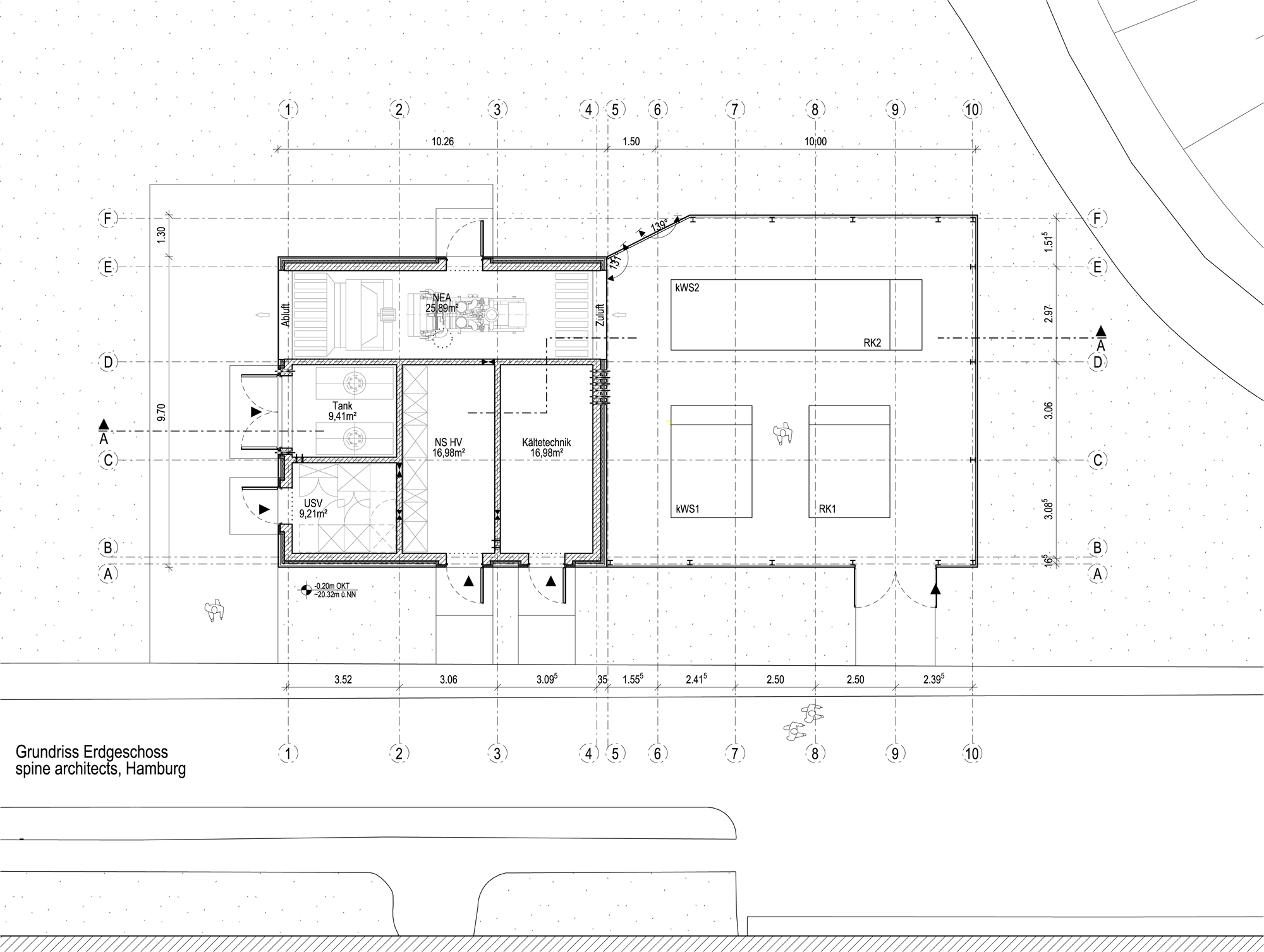
Grundriss - Grafik: Spine Architects

Schnitt - Grafik: Spine Architects

Schnitt - Grafik: Spine Architects

Ansicht - Grafik: Spine Architects

Ansicht - Grafik: Spine Architects

https://detail-cdn.s3.eu-central-1.amazonaws.com/media/catalog/product/S/p/Spine-architects-Rechenzentrum-Hamburg-T735_1.jpg?width=437&height=582&store=de_de&image-type=image https://detail-cdn.s3.eu-central-1.amazonaws.com/media/catalog/product/S/p/Spine-architects-Rechenzentrum-Hamburg-T1500_1.jpg?width=437&height=582&store=de_de&image-type=image https://detail-cdn.s3.eu-central-1.amazonaws.com/media/catalog/product/S/p/Spine-architects-Rechenzentrum-Hamburg-1_1.jpg?width=437&height=582&store=de_de&image-type=image https://detail-cdn.s3.eu-central-1.amazonaws.com/media/catalog/product/S/p/Spine-architects-Rechenzentrum-Hamburg-2_1.jpg?width=437&height=582&store=de_de&image-type=image https://detail-cdn.s3.eu-central-1.amazonaws.com/media/catalog/product/S/p/Spine-architects-Rechenzentrum-Hamburg-3_1.jpg?width=437&height=582&store=de_de&image-type=image https://detail-cdn.s3.eu-central-1.amazonaws.com/media/catalog/product/S/p/Spine-architects-Rechenzentrum-Hamburg-4_1.jpg?width=437&height=582&store=de_de&image-type=image https://detail-cdn.s3.eu-central-1.amazonaws.com/media/catalog/product/S/p/Spine-architects-Rechenzentrum-Hamburg-5_1.jpg?width=437&height=582&store=de_de&image-type=image https://detail-cdn.s3.eu-central-1.amazonaws.com/media/catalog/product/S/p/Spine-architects-Rechenzentrum-Hamburg-6_1.jpg?width=437&height=582&store=de_de&image-type=image https://detail-cdn.s3.eu-central-1.amazonaws.com/media/catalog/product/S/p/Spine-architects-Rechenzentrum-Hamburg-7_1.jpg?width=437&height=582&store=de_de&image-type=image https://detail-cdn.s3.eu-central-1.amazonaws.com/media/catalog/product/S/p/Spine-architects-Rechenzentrum-Hamburg-8_1.jpg?width=437&height=582&store=de_de&image-type=image https://detail-cdn.s3.eu-central-1.amazonaws.com/media/catalog/product/S/p/Spine-architects-Rechenzentrum-Hamburg-9_1.jpg?width=437&height=582&store=de_de&image-type=image https://detail-cdn.s3.eu-central-1.amazonaws.com/media/catalog/product/S/p/Spine-architects-Rechenzentrum-Hamburg-10_1.jpg?width=437&height=582&store=de_de&image-type=image https://detail-cdn.s3.eu-central-1.amazonaws.com/media/catalog/product/S/p/Spine-architects-Rechenzentrum-Hamburg-11_1.jpg?width=437&height=582&store=de_de&image-type=image https://detail-cdn.s3.eu-central-1.amazonaws.com/media/catalog/product/S/p/Spine-architects-Rechenzentrum-Hamburg-12_1.jpg?width=437&height=582&store=de_de&image-type=image https://detail-cdn.s3.eu-central-1.amazonaws.com/media/catalog/product/S/p/Spine-architects-Rechenzentrum-Hamburg-13_1.jpg?width=437&height=582&store=de_de&image-type=image https://detail-cdn.s3.eu-central-1.amazonaws.com/media/catalog/product/S/p/Spine-architects-Rechenzentrum-Hamburg-14.jpg?width=437&height=582&store=de_de&image-type=image https://detail-cdn.s3.eu-central-1.amazonaws.com/media/catalog/product/S/p/Spine-architects-Rechenzentrum-Hamburg-15.jpg?width=437&height=582&store=de_de&image-type=image https://detail-cdn.s3.eu-central-1.amazonaws.com/media/catalog/product/S/p/Spine-architects-Rechenzentrum-Hamburg-16.jpg?width=437&height=582&store=de_de&image-type=image https://detail-cdn.s3.eu-central-1.amazonaws.com/media/catalog/product/S/p/Spine-architects-Rechenzentrum-Hamburg-17.jpg?width=437&height=582&store=de_de&image-type=image https://detail-cdn.s3.eu-central-1.amazonaws.com/media/catalog/product/S/p/Spine-architects-Rechenzentrum-Hamburg-18.jpg?width=437&height=582&store=de_de&image-type=image https://detail-cdn.s3.eu-central-1.amazonaws.com/media/catalog/product/S/p/Spine-architects-Rechenzentrum-Hamburg-19.jpg?width=437&height=582&store=de_de&image-type=image
Copyright © 2024 DETAIL. Alle Rechte vorbehalten.