Konsequent einfach, niemals simpel: Kita Parkstraße in Stuttgart
Foto: Zooey Braun
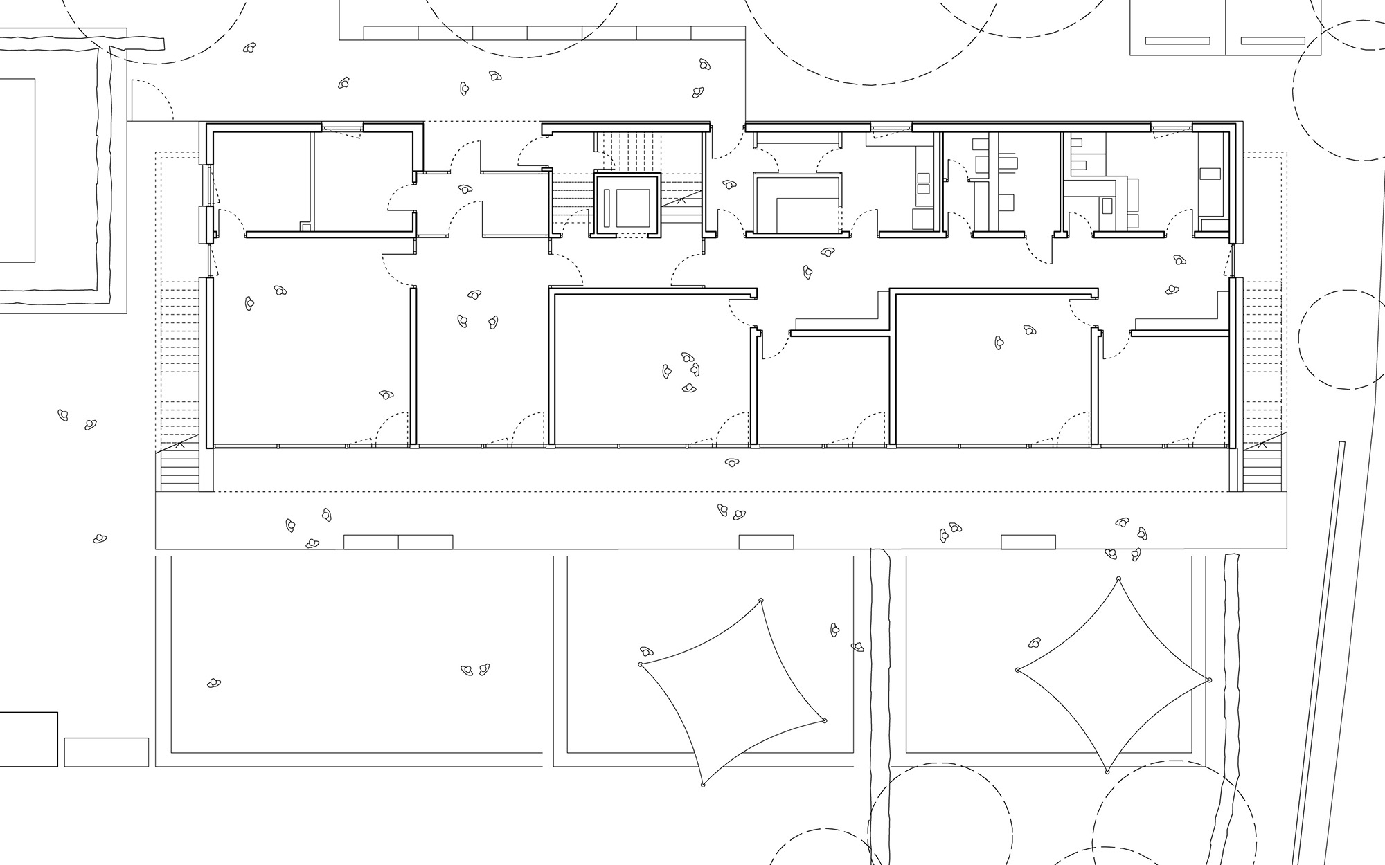
Die viergruppige Kindertageseinrichtung im Stuttgarter Stadtteil Raitelsberg ist in einen Grünzug mit historischem Baumbestand gebettet. Um ein möglichst geringes Gewicht zu erreichen – das Gebäude gründet auf einem bestehenden Luftschutzbunker – gestalten die Architekten den Baukörper als Leichtbau in Holz. Seine Rubinrot gestrichene Fassade verleiht ihm, kontrastierend zum Grün seiner Umgebung, Präsenz.
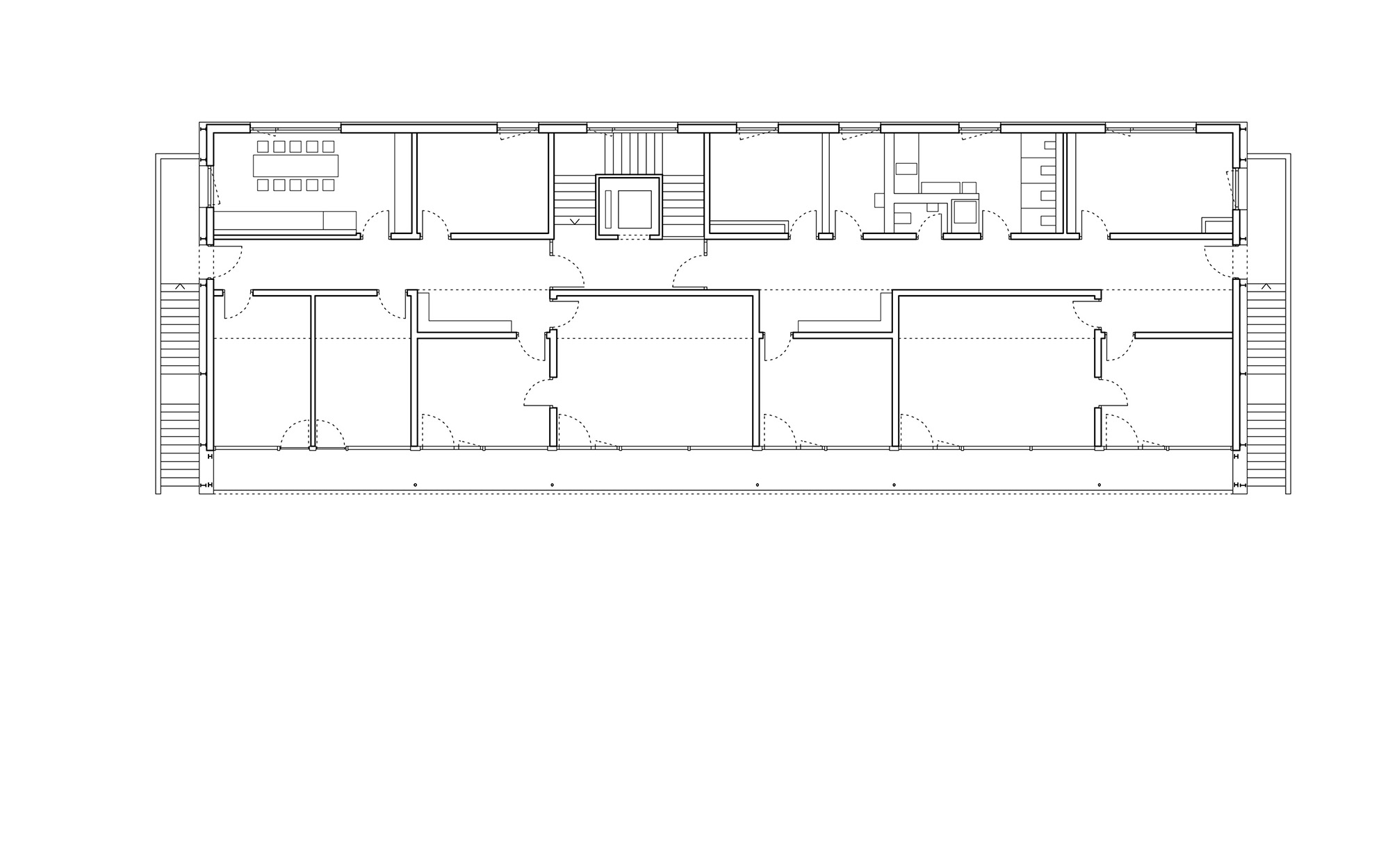
Der zweigeschossige Riegel ist konsequent Nord-Süd gerichtet. Alle Aufenthaltsräume liegen im Süden und öffnen sich in den Garten. Die großzügig bemessenen, nahezu quadratischen Fassadenfelder sind abwechselnd mit einer raumhohen Verglasung oder mit Eingangselementen aus Holz gefüllt. Gegenüber der Traufkante ist die Außenwand zurückversetzt. So entsteht ein etwa 1,20 m breiter, geschützter Übergang ins Freie. Im Obergeschoss ist den Aufenthaltsräumen eine ebenso breite Loggia vorgelagert. Über zwei Außentreppen im Westen und Osten gelangen die Kinder aus den oberen Gruppenräumen direkt auf den Spielplatz im Garten. Die Nebenräume und das Treppenhaus liegen auf der Nordseite. Dort zeigt sich die Holzrahmenkonstruktion als verschalte Lochfassade. Hier befindet sich auch der Haupteingang von dem man in das Foyer gelangt. Es erstreckt sich über die ganze Gebäudetiefe von 12 m und dient den Eltern als Treffpunkt beim Bringen und Abholen ihrer Kinder. Durch die konsequente innere Gliederung konnte die Sanitär- und Lüftungsinstallation auf die Nebenraumzone beschränkt werden. Deckenabhängungen wurden eingespart, den Gruppenzimmern kam das in Form von größeren Raumhöhen zugute. Flure und Treppenhaus sind in einem kräftigen Grün gestrichen, das die Farbe der Blätter vor den Fenstern wiederspiegelt.
Kurz nach Fertigstellung erhielt das Projekt eine Hugo-Häring-Auszeichnung 2020 vom Bund Deutscher Architekten und Architektinnen. Die Einfachheit, die Reduktion auf wenige Materialien und die Verwendung zweier prägnanter Farben begeisterte die Jury die das Projekt als „(…) Konsequent einfach, aber niemals simpel!“ lobt.
Weitere Informationen:
Landschaftsarchitekten: Prof. Jörg Stötzer, Stuttgart
TGA-Planung: Paul + Gampe + Partner Beratende Ingenieure, Esslingen
Holzbau: Holzbau Schaible GmbH, Stuttgart
Rohbau: Bauunternehmung Karl-Heinz Rahm, Wilberg-Schönbronn


















