// Check if the article Layout ?>
Konsequente Reduktion: Wohnhaus am Bodensee
Foto: Tom Munz Architekt
Inmitten eines Quartiers mit 60er-Jahre Bebauung hatte die Bauherrenfamilie ein Grundstück mit bestehendem Wohnhaus erworben. Nach einer intensiven Planungsphase mit den Architekten konnte auf Grundlage der begrenzten finanziellen Möglichkeiten ein alternatives Gebäudekonzept erarbeitet werden. Es folgte ein Teilabbruch des Bestandsgebäudes. Auf dem verbleibenden Fundament wurden zwei Geschosse in Leichtbauweise errichtet.
Als Inspirationsquelle diente das raue Klima und die Schroffheit der Westküste Frankreichs - ein beliebtes Ferienziel der Bauherrenfamilie. Die Rohheit und Schlichtheit dieses Landstrichs wurde auf die regionale Bautradition und den städtebaulichen Kontext übertragen. Es entstand ein zweistöckiges Wohnhaus in Holzelementbauweise. Die Innenwände wurden mit Sperrholzplatten aus französischer Seekiefer ausgekleidet, dessen Holz aus der Nähe des Urlaubsortes der Familie stammt.
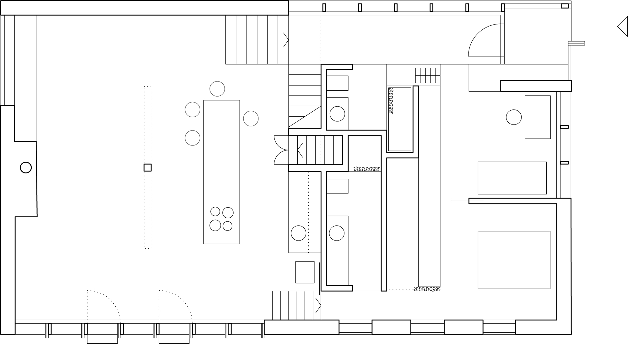
Was sich von außen als ein klar ablesbarer, kantiger Baukörper präsentiert, überrascht im Inneren mit spielerisch angelegten Splitleveln und vielfältigen Blickbezügen. Die Grundrissorganisation bietet eine Trennung zwischen halböffentlich zugänglichen Bereichen und privaten Räumen. Während die Rückzugsorte mit Büro und Schlafzimmer auf der Querachse liegen, führt die Längsachse den Besucher in das sechs Meter hohe Wohn- und Esszimmer. Dieser großzügige Aufenthaltsraum bietet weitläufige Ausblicke sowie einen Zugang auf die südlich gelegene Terrasse. Eine Küchenzeile aus wassergebeiztem Seekiefernholz ist Bestandteil des Wohnraums und schließt rückseitig an einen zentral angeordneten Funktionskern an. Oberhalb der Küchenzeile führt eine Treppe zum galerieartigen Dachgeschoss.
Im Innenraum wird der konzeptuelle Bezug zur Westküste Frankreichs unmittelbar erlebbar. Ehrliche Materialität und natürliche Oberflächen rufen eine behagliche Atmosphäre hervor. Eine intelligente Grundrissorganisation mit offenen Räumen und minimaler Verkehrsfläche erzeugt trotz des geringen Budgets großzügige Räumlichkeiten, die gerade durch die konsequente Reduktion der Austattung ihren besonderen Reiz erhalten.
Als Inspirationsquelle diente das raue Klima und die Schroffheit der Westküste Frankreichs - ein beliebtes Ferienziel der Bauherrenfamilie. Die Rohheit und Schlichtheit dieses Landstrichs wurde auf die regionale Bautradition und den städtebaulichen Kontext übertragen. Es entstand ein zweistöckiges Wohnhaus in Holzelementbauweise. Die Innenwände wurden mit Sperrholzplatten aus französischer Seekiefer ausgekleidet, dessen Holz aus der Nähe des Urlaubsortes der Familie stammt.
Was sich von außen als ein klar ablesbarer, kantiger Baukörper präsentiert, überrascht im Inneren mit spielerisch angelegten Splitleveln und vielfältigen Blickbezügen. Die Grundrissorganisation bietet eine Trennung zwischen halböffentlich zugänglichen Bereichen und privaten Räumen. Während die Rückzugsorte mit Büro und Schlafzimmer auf der Querachse liegen, führt die Längsachse den Besucher in das sechs Meter hohe Wohn- und Esszimmer. Dieser großzügige Aufenthaltsraum bietet weitläufige Ausblicke sowie einen Zugang auf die südlich gelegene Terrasse. Eine Küchenzeile aus wassergebeiztem Seekiefernholz ist Bestandteil des Wohnraums und schließt rückseitig an einen zentral angeordneten Funktionskern an. Oberhalb der Küchenzeile führt eine Treppe zum galerieartigen Dachgeschoss.
Im Innenraum wird der konzeptuelle Bezug zur Westküste Frankreichs unmittelbar erlebbar. Ehrliche Materialität und natürliche Oberflächen rufen eine behagliche Atmosphäre hervor. Eine intelligente Grundrissorganisation mit offenen Räumen und minimaler Verkehrsfläche erzeugt trotz des geringen Budgets großzügige Räumlichkeiten, die gerade durch die konsequente Reduktion der Austattung ihren besonderen Reiz erhalten.











