19.09.2017 Sulafa Isa

Leuchtender Sportpavillon: Campuserweiterung in Madrid

Foto: Javier Callejas

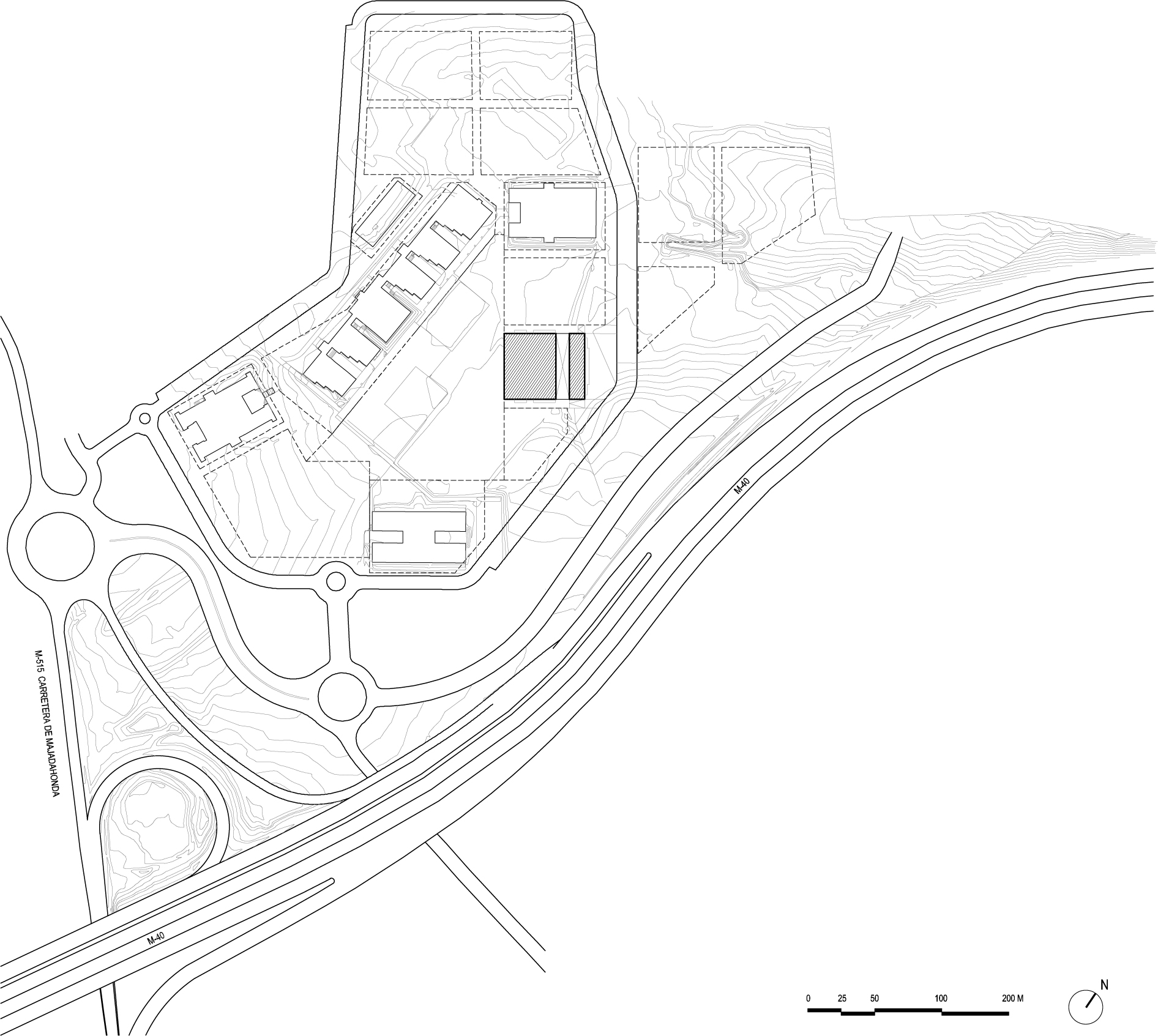
Für die Francisco de Vitoria-Universität in Pozuelo geplant, beinhaltet der neue Sport- und Lernkomplex eine Sporthalle, Multifunktionsräume, Physiotherapie-Einrichtungen, sowie ein Schwimmbecken im Untergeschoss. Zum Hauptplatz des Campus ausgerichtet kann die Sporthalle für unterschiedliche universitäre Veranstaltungen umgenutzt werden und bildet einen qualitativen Aufenthaltsraum.

Der Neubau passt sich in Höhe, Volumen und Ausrichtung den umgebenden Bauten auf dem Campus an. Der Komplex besteht aus einem Sportpavillon und einem Körper für Klassen- und Multifunktionsräume. Die beiden klar definierten Kuben sind über einen eingeschossigen Gebäudeteil miteinander verbunden, dessen Dach als Patio im 1. OG fungiert.
Die beiden Bauten unterscheiden sich einerseits durch ihre Dimensionen, andererseits durch Fassadengestaltung und Materialität. Während der Lernkomplex und der eingeschossige Verbindungsbau eine introvertierte Anmutung durch eine geschlossene Fassade aus glasfaserverstärkten Betonfertigteilen aufweisen, zeigt sich der Sportpavillon als transluzenter, leuchtender Körper.

Je nach Ausrichtung hat das Sportzentrum eine unterschiedliche Geste. Die Südfassade besteht aufgrund der starken Sonneneinstrahlung aus vorgefertigten Glasfaserbetonteilen, in Nord-West- und Nord-Ost-Richtung präsentiert sich der Körper mit einer Pfosten-Riegel-Fassade aus transluzentem Glas. Die Süd-West-Fassade betont die Verbindung zum Hauptcampus mit einem bodentiefen Fensterband aus transparentem Glas.
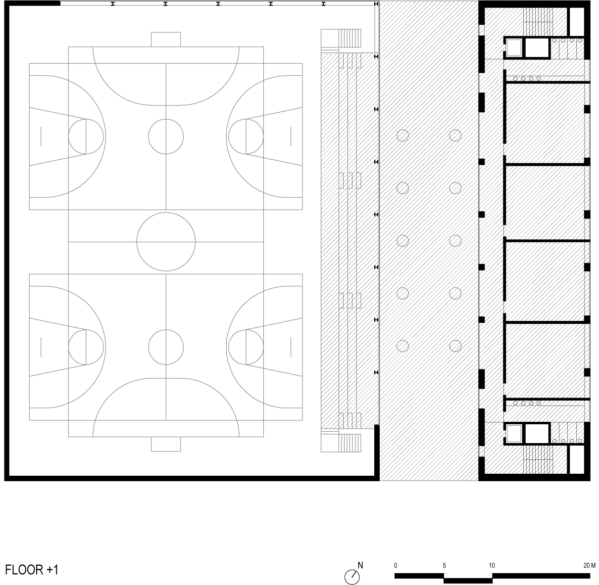
Die große Spannweite innerhalb der Sporthalle wird stützenfrei mit Fachwerkträgern überbrückt. Im Keller über dem Schwimmbecken werden Unterzüge als konstruktives Element verwendet. Sämtliche Bestandteile des Gebäudes sind in weißer Farbe gehalten, wodurch die Kubatur insgesamt sehr zurückhaltend und schlicht wirkt.

Foto: Javier Callejas

Foto: Javier Callejas

Foto: Javier Callejas

Foto: Javier Callejas

Foto: Javier Callejas

Foto: Javier Callejas

Foto: Javier Callejas

Foto: Javier Callejas

Foto: Javier Callejas

Foto: Javier Callejas

Foto: Javier Callejas

Foto: Javier Callejas

Foto: Javier Callejas

Foto: Javier Callejas

Foto: Javier Callejas

Lageplan, Grafik: Alberto Campo Baeza

Grundriss, Grafik: Alberto Campo Baeza

Grundriss, Grafik: Alberto Campo Baeza

Grundriss, Grafik: Alberto Campo Baeza

Schnitt, Grafik: Alberto Campo Baeza

https://detail-cdn.s3.eu-central-1.amazonaws.com/media/catalog/product/A/l/Alberto-Campo-Baeza-UFV-Multi-Sport-Pavilion-Teaser1500.jpg?width=437&height=582&store=de_de&image-type=image https://detail-cdn.s3.eu-central-1.amazonaws.com/media/catalog/product/A/l/Alberto-Campo-Baeza-UFV-Multi-Sport-Pavilion-Teaser735.jpg?width=437&height=582&store=de_de&image-type=image https://detail-cdn.s3.eu-central-1.amazonaws.com/media/catalog/product/A/l/Alberto-Campo-Baeza-UFV-Multi-Sport-Pavilion-01_1.jpg?width=437&height=582&store=de_de&image-type=image https://detail-cdn.s3.eu-central-1.amazonaws.com/media/catalog/product/A/l/Alberto-Campo-Baeza-UFV-Multi-Sport-Pavilion-02_1.jpg?width=437&height=582&store=de_de&image-type=image https://detail-cdn.s3.eu-central-1.amazonaws.com/media/catalog/product/A/l/Alberto-Campo-Baeza-UFV-Multi-Sport-Pavilion-03_1.jpg?width=437&height=582&store=de_de&image-type=image https://detail-cdn.s3.eu-central-1.amazonaws.com/media/catalog/product/A/l/Alberto-Campo-Baeza-UFV-Multi-Sport-Pavilion-04_1.jpg?width=437&height=582&store=de_de&image-type=image https://detail-cdn.s3.eu-central-1.amazonaws.com/media/catalog/product/A/l/Alberto-Campo-Baeza-UFV-Multi-Sport-Pavilion-05_1.jpg?width=437&height=582&store=de_de&image-type=image https://detail-cdn.s3.eu-central-1.amazonaws.com/media/catalog/product/A/l/Alberto-Campo-Baeza-UFV-Multi-Sport-Pavilion-06_1.jpg?width=437&height=582&store=de_de&image-type=image https://detail-cdn.s3.eu-central-1.amazonaws.com/media/catalog/product/A/l/Alberto-Campo-Baeza-UFV-Multi-Sport-Pavilion-07_1.jpg?width=437&height=582&store=de_de&image-type=image https://detail-cdn.s3.eu-central-1.amazonaws.com/media/catalog/product/A/l/Alberto-Campo-Baeza-UFV-Multi-Sport-Pavilion-08_1.jpg?width=437&height=582&store=de_de&image-type=image https://detail-cdn.s3.eu-central-1.amazonaws.com/media/catalog/product/A/l/Alberto-Campo-Baeza-UFV-Multi-Sport-Pavilion-09_1.jpg?width=437&height=582&store=de_de&image-type=image https://detail-cdn.s3.eu-central-1.amazonaws.com/media/catalog/product/A/l/Alberto-Campo-Baeza-UFV-Multi-Sport-Pavilion-10_1.jpg?width=437&height=582&store=de_de&image-type=image https://detail-cdn.s3.eu-central-1.amazonaws.com/media/catalog/product/A/l/Alberto-Campo-Baeza-UFV-Multi-Sport-Pavilion-11_1.jpg?width=437&height=582&store=de_de&image-type=image https://detail-cdn.s3.eu-central-1.amazonaws.com/media/catalog/product/A/l/Alberto-Campo-Baeza-UFV-Multi-Sport-Pavilion-12_1.jpg?width=437&height=582&store=de_de&image-type=image https://detail-cdn.s3.eu-central-1.amazonaws.com/media/catalog/product/A/l/Alberto-Campo-Baeza-UFV-Multi-Sport-Pavilion-13_1.jpg?width=437&height=582&store=de_de&image-type=image https://detail-cdn.s3.eu-central-1.amazonaws.com/media/catalog/product/A/l/Alberto-Campo-Baeza-UFV-Multi-Sport-Pavilion-14_1.jpg?width=437&height=582&store=de_de&image-type=image https://detail-cdn.s3.eu-central-1.amazonaws.com/media/catalog/product/A/l/Alberto-Campo-Baeza-UFV-Multi-Sport-Pavilion-15_1.jpg?width=437&height=582&store=de_de&image-type=image https://detail-cdn.s3.eu-central-1.amazonaws.com/media/catalog/product/A/l/Alberto-Campo-Baeza-UFV-Multi-Sport-Pavilion-16_1.jpg?width=437&height=582&store=de_de&image-type=image https://detail-cdn.s3.eu-central-1.amazonaws.com/media/catalog/product/A/l/Alberto-Campo-Baeza-UFV-Multi-Sport-Pavilion-17_1.jpg?width=437&height=582&store=de_de&image-type=image https://detail-cdn.s3.eu-central-1.amazonaws.com/media/catalog/product/A/l/Alberto-Campo-Baeza-UFV-Multi-Sport-Pavilion-18_1.jpg?width=437&height=582&store=de_de&image-type=image https://detail-cdn.s3.eu-central-1.amazonaws.com/media/catalog/product/A/l/Alberto-Campo-Baeza-UFV-Multi-Sport-Pavilion-19_1.jpg?width=437&height=582&store=de_de&image-type=image https://detail-cdn.s3.eu-central-1.amazonaws.com/media/catalog/product/A/l/Alberto-Campo-Baeza-UFV-Multi-Sport-Pavilion-20_1.jpg?width=437&height=582&store=de_de&image-type=image
Copyright © 2024 DETAIL. Alle Rechte vorbehalten.