// Check if the article Layout ?>
Mit Glas unterfüttert: Mensa in Bozen
Foto: Oskar Da Riz
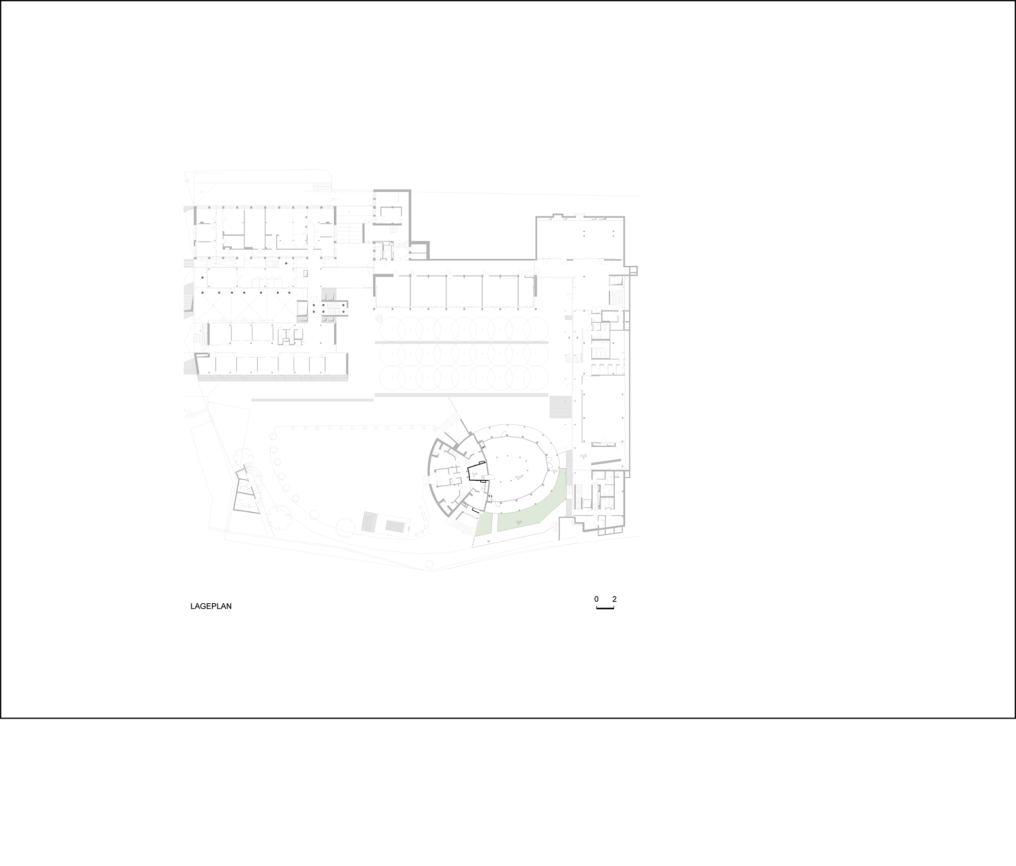
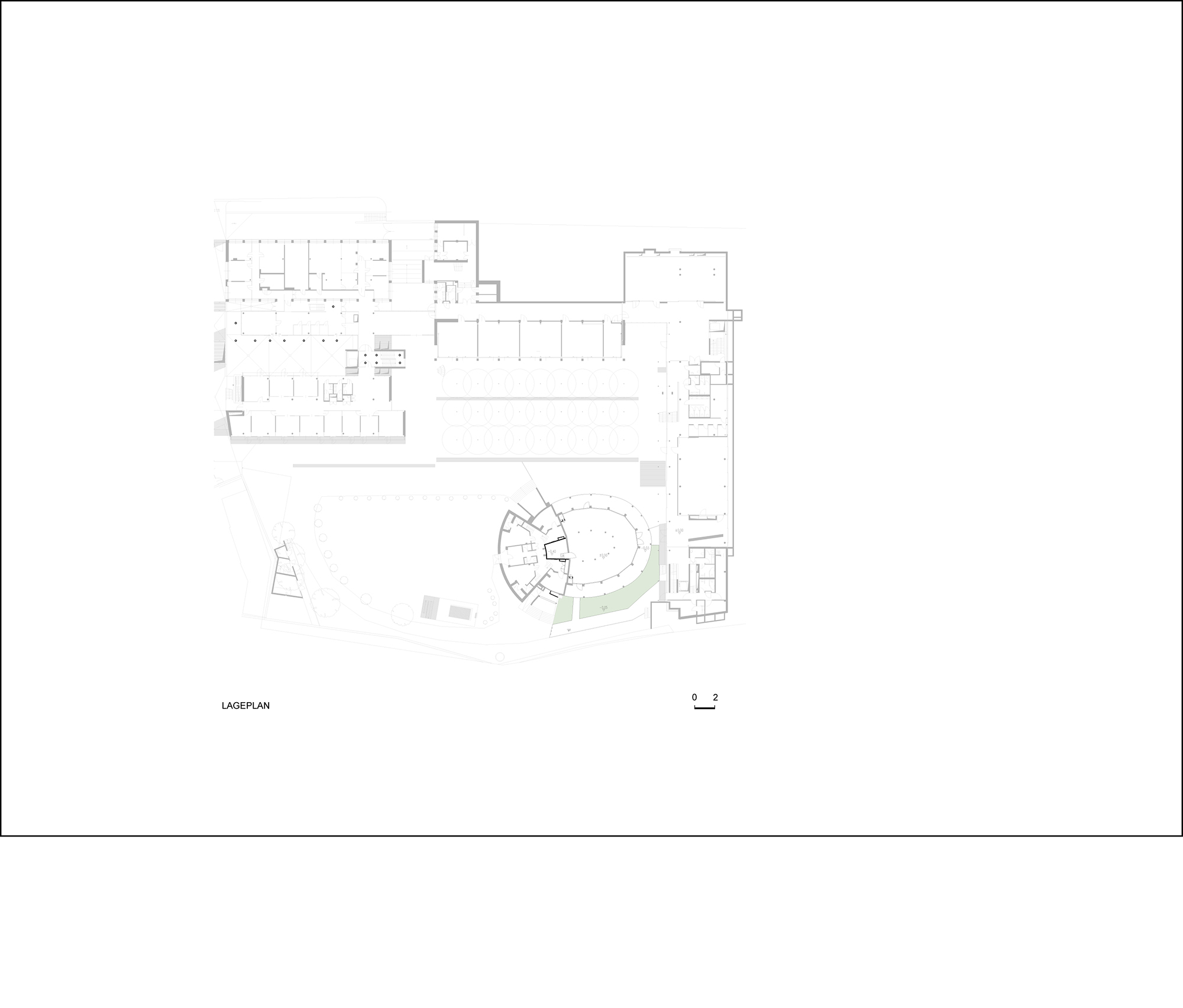
Das 1992 gegründete Forschungszentrum Eurac Research befasst sich mit einem heterogenen Aufgabenfeld, das vom Minderheitenrecht bis zur Biomedizin, vom Public Management bis zur Mumienforschung und von der Angewandten Sprachforschung bis zu den erneuerbaren Energien reicht. 1995 bezog das Institut einen Neubaukomplex von Klaus Kada westlich der Bozener Innenstadt, dessen Nukleus ein wesentlich älteres Gebäude bildet. Es war Mitte der 30er-Jahre von den Architekten Mansutti und Miozzo für die weiblichen Mitglieder der Faschistischen Jugend Italiens – kurz GIL (Gioventú Italiana del Littorio) errichtet. Die historischen Gebäudeteile, darunter das zentrale Auditorium von Eurac Research, sind auch heute noch an ihrem pompejanischroten Anstrich deutlich erkennbar.
Vor Gründung des Forschungszentrums hatte der charakteristische Rundbau bereits eine wechselhafte Geschichte durchlaufen, war als Supermarkt und Pornokino genutzt worden und stand schließlich leer, dem Verfall anheimgegeben. Verglichen mit dieser Historie gingen Roland Baldi Architects und Elena Casati bei der neuerlichen Erweiterung überaus behutsam vor.
Das Architektenteam hatte 2015 einen Wettbewerb für den Bau einer Mensa unterhalb des aufgeständerten Auditoriumsgebäudes gewonnen. Ihr Neubau hält sich komplett im Inneren des doppelten Stützenkranzes, der den Hörsaal trägt. Die neue Fassade wurde direkt hinter den Stützen eingefügt, und zwar so, dass von außen mit Ausnahme der Eingangstüren lediglich ungeteilte, rahmenlose Glasfächen zu sehen sind. Nach Absprache mit dem Amt für Denkmalpflege erhielt die Mensa keine direkte Verbindung zum Eurac-Gebäude, um die historische Identität des Auditoriums zu erhalten.
Auch im Inneren nahmen die Architekten nur minimale Eingriffe vor. Der Boden erhielt einen Estrich mit mittelfeinem Schliff ohne weiteren Gehbelag, die geneigte Decke einen Akustikputz in Pompejanischrot, der auf den ersten Blick nicht von dem Fassadenputz des Altbaus zu unterscheiden ist. Das feststehende Mobiliar besteht aus einer monolithischen Edelstahltheke und aus einem transparenten Glaselement, das als Abluftkanal für die mechanische Lüftung fungiert.
Vor Gründung des Forschungszentrums hatte der charakteristische Rundbau bereits eine wechselhafte Geschichte durchlaufen, war als Supermarkt und Pornokino genutzt worden und stand schließlich leer, dem Verfall anheimgegeben. Verglichen mit dieser Historie gingen Roland Baldi Architects und Elena Casati bei der neuerlichen Erweiterung überaus behutsam vor.
Das Architektenteam hatte 2015 einen Wettbewerb für den Bau einer Mensa unterhalb des aufgeständerten Auditoriumsgebäudes gewonnen. Ihr Neubau hält sich komplett im Inneren des doppelten Stützenkranzes, der den Hörsaal trägt. Die neue Fassade wurde direkt hinter den Stützen eingefügt, und zwar so, dass von außen mit Ausnahme der Eingangstüren lediglich ungeteilte, rahmenlose Glasfächen zu sehen sind. Nach Absprache mit dem Amt für Denkmalpflege erhielt die Mensa keine direkte Verbindung zum Eurac-Gebäude, um die historische Identität des Auditoriums zu erhalten.
Auch im Inneren nahmen die Architekten nur minimale Eingriffe vor. Der Boden erhielt einen Estrich mit mittelfeinem Schliff ohne weiteren Gehbelag, die geneigte Decke einen Akustikputz in Pompejanischrot, der auf den ersten Blick nicht von dem Fassadenputz des Altbaus zu unterscheiden ist. Das feststehende Mobiliar besteht aus einer monolithischen Edelstahltheke und aus einem transparenten Glaselement, das als Abluftkanal für die mechanische Lüftung fungiert.
Weitere Informationen:
Bauleitung: Roland Baldi Architects
Akustik: Arch. Christina Niederstätter
Statik: Ing. Andreas Erlacher
Elektroplanung: Ing. Reinhard Thaler
HLS-Planung: Ing. Michele Carlini
Sicherheitskoordination: Ing. Giovanni Carlini
Bauleitung: Roland Baldi Architects
Akustik: Arch. Christina Niederstätter
Statik: Ing. Andreas Erlacher
Elektroplanung: Ing. Reinhard Thaler
HLS-Planung: Ing. Michele Carlini
Sicherheitskoordination: Ing. Giovanni Carlini






















