// Check if the article Layout ?>
Moderne Tradition: Neubau Mehrfamilienhaus Baselstraße
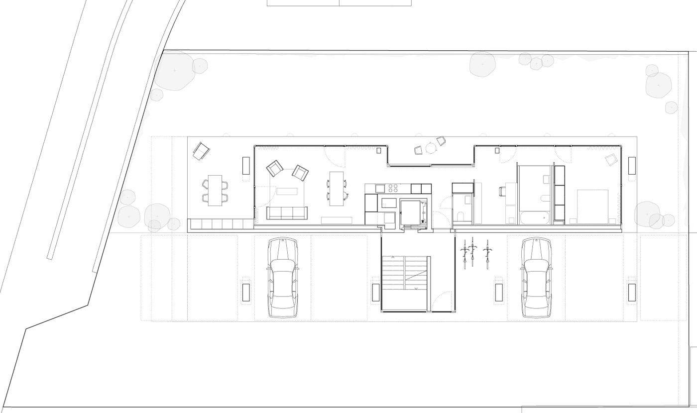
Mit seiner Front- und Eingangsseite an die Straße angrenzend, besetzt das Mehrfamilienhaus eine tiefe Parzelle, die straßenseitig Raum für Parkmöglichkeiten und rückseitig für eine Gartenfläche schafft. Eine massive, überkragende Sichtbetondecke bildet dabei nicht nur die Eingangssituation, sie generiert gleichzeitig Unterstellmöglichkeiten für Fahrzeuge. Während die oberen Geschosse durch die Aufständerung des Gebäudes an Privatsphäre gewinnen, entschieden die Architekten die Erdgeschosswohnung von der Straße ab- und zur Grünfläche hinter dem Gebäude hinzuwenden. So entstehen in allen Geschossen unterschiedliche Wohnsituationen und -bereiche trotz kontinuierlicher, struktureller Gliederung.
Die Inspiration für den Bau bildete ein traditionelles, indonesisches »Dayak Haus«. Mit Satteldach und aufgeständertem Erdgeschoss gelingt den Architekten eine gelungene Kombination aus formaler Annäherung an die Umgebungsbebauung und konzeptuellem Bezug zum Referenzprojekt. Die Wahl der Betonkonstruktion überträgt so die traditionelle Typologie in den städtischen Kontext. Gleichzeitig bilden bewusst gesetzte Holzelemente das warme Pendant zum Kunststein und besänftigen durch Rahmungen und Beläge dessen harte Kanten. Hölzerne Loggien brechen die Fassade und die Gebäudekubatur ein Stück weit auf ohne dabei die strukturelle Teilung zu durchbrechen. Indirekt entsteht dadurch ein Tiefenspiel aus Rücksprüngen und Innen- und Außenräumen, wobei feine Versätze in der Fassade stets die Dreiteiligkeit des Gebäudes ablesen lassen. Angelehnt an die traditionelle Ausformulierung des indonesischen Satteldaches, schützen allseitige Dachüberstände des Welleternit-Daches die Fassade. Sichtbare Sparren und Rinnen scheinen dieses zum Hauptelement des Gebäudes zu machen und treiben die Thematik des materiellen Wechselspiels und des »Aufeinandertreffens« von Beton und Holz wortwörtlich auf die Spitze.
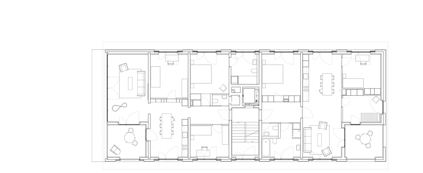
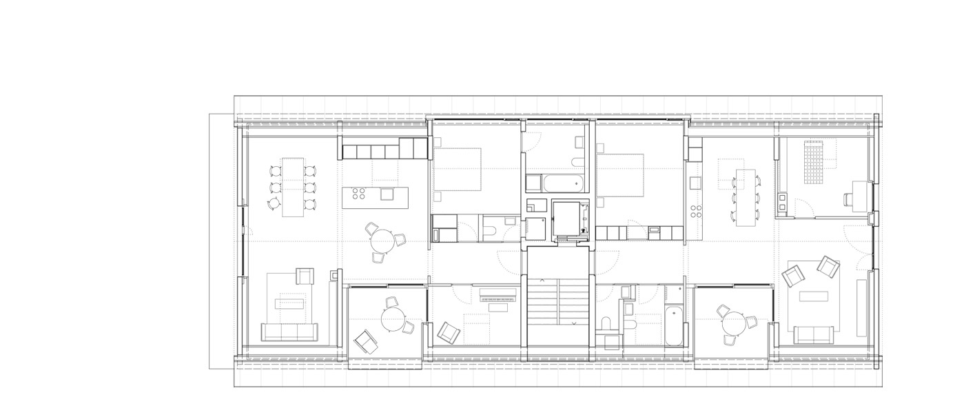
Durch die Betonrahmen und –schotten klar strukturiert, gelingt es den Architekten jeder der fünf Wohnungen einen individuellen Grundriss und Charakter zu geben. Während sich zwar Schlafbereiche funktional immer zur ruhigeren Gartenseite orientieren, machen verschiedenste Wohnraumsituationen straßenseitig jede Wohnung durch kleine Details einzigartig. Die weiß verputzte Innendämmung bildet einen Kontrast zur immer wieder gewollt hervorblitzenden Betonstruktur. Von außen wie von innen entsteht so ein harmonisches Wechselspiel aus Konstruktion, Tradition und Moderne.
Die Inspiration für den Bau bildete ein traditionelles, indonesisches »Dayak Haus«. Mit Satteldach und aufgeständertem Erdgeschoss gelingt den Architekten eine gelungene Kombination aus formaler Annäherung an die Umgebungsbebauung und konzeptuellem Bezug zum Referenzprojekt. Die Wahl der Betonkonstruktion überträgt so die traditionelle Typologie in den städtischen Kontext. Gleichzeitig bilden bewusst gesetzte Holzelemente das warme Pendant zum Kunststein und besänftigen durch Rahmungen und Beläge dessen harte Kanten. Hölzerne Loggien brechen die Fassade und die Gebäudekubatur ein Stück weit auf ohne dabei die strukturelle Teilung zu durchbrechen. Indirekt entsteht dadurch ein Tiefenspiel aus Rücksprüngen und Innen- und Außenräumen, wobei feine Versätze in der Fassade stets die Dreiteiligkeit des Gebäudes ablesen lassen. Angelehnt an die traditionelle Ausformulierung des indonesischen Satteldaches, schützen allseitige Dachüberstände des Welleternit-Daches die Fassade. Sichtbare Sparren und Rinnen scheinen dieses zum Hauptelement des Gebäudes zu machen und treiben die Thematik des materiellen Wechselspiels und des »Aufeinandertreffens« von Beton und Holz wortwörtlich auf die Spitze.
Durch die Betonrahmen und –schotten klar strukturiert, gelingt es den Architekten jeder der fünf Wohnungen einen individuellen Grundriss und Charakter zu geben. Während sich zwar Schlafbereiche funktional immer zur ruhigeren Gartenseite orientieren, machen verschiedenste Wohnraumsituationen straßenseitig jede Wohnung durch kleine Details einzigartig. Die weiß verputzte Innendämmung bildet einen Kontrast zur immer wieder gewollt hervorblitzenden Betonstruktur. Von außen wie von innen entsteht so ein harmonisches Wechselspiel aus Konstruktion, Tradition und Moderne.
Weitere Informationen:
Ingenieur: Jürg Merz Maisprach
Größe: ca. 900 m²
Wohnungen: 5 (3 x 3.5 Zi. / 2 x 4.5 Zi.)
Kosten: 3.2 Mio CHF
Fotos: Mark Niedermann
Ingenieur: Jürg Merz Maisprach
Größe: ca. 900 m²
Wohnungen: 5 (3 x 3.5 Zi. / 2 x 4.5 Zi.)
Kosten: 3.2 Mio CHF
Fotos: Mark Niedermann























