// Check if the article Layout ?>
Modernes Trio: Faena District in Miami Beach
Foto: Iwan Baan
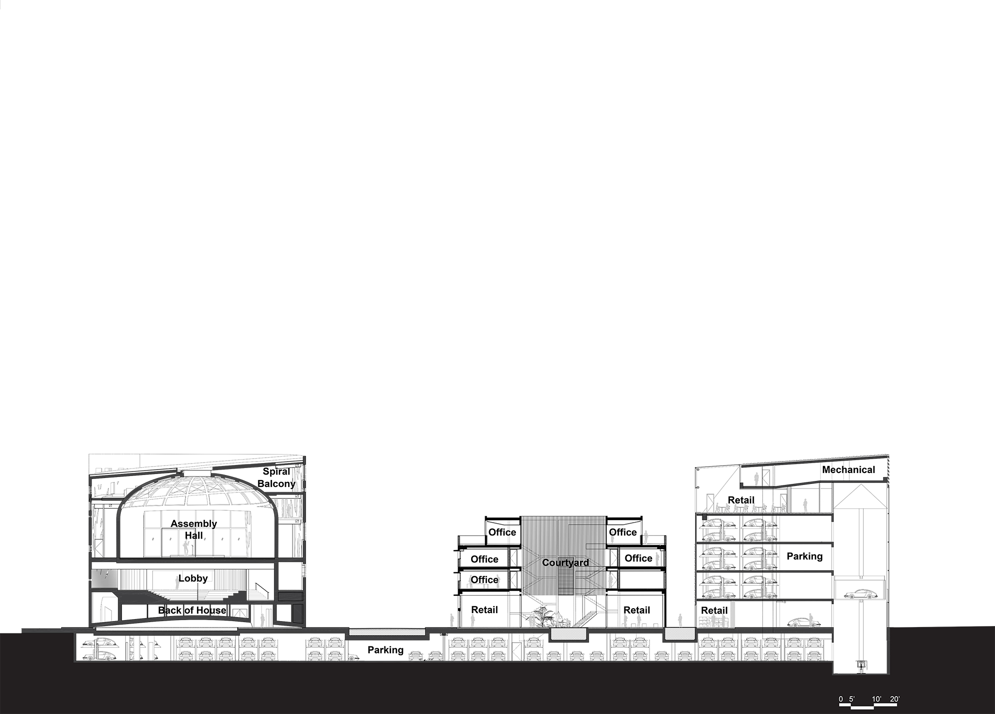
Zwischen gleich zwei Uferpromenaden scheint die Lage prädestiniert für eine dramatische Architektur. Begrenzt von der belebten Collins Avenue im Osten und dem ruhigeren Indian Creek, der an westlicher Seite vorbeiführt, befindet sich der Bauplatz. Das neue Gebäudetrio, bestehend aus dem zentralen Forum, dem Bazar und einem Parkhaus, bildet gemeinsam mit dem bereits bestehenden Faena Hotel einen ganzen Bezirk – den Faena District.
Der Bazar, der erst 2017 eröffnet wird, steht zwischen Forum und Parkhaus. Bei ihm handelt es sich um die Erneuerung eines historischen Bestandsgebäudes. Mit seiner nahezu kubischen Form ist er der kleinste des Trios und tritt, im Vergleich zu seinen extravaganten Nachbarn, eher zurückhaltend in Erscheinung. Er besitzt eine schlichte, weiße Lochfassade. Ein zentrales Atrium ist in vertikale, lamellenartige Elemente gekleidet, die wie ein zarter Vorhang wirken.
Das im Norden anschließende Parkhaus ist ein nach außen kompakter Baukörper. Durch eine wechselnde Fassadengestaltung aus regelmäßig, kreisrund perforierten Elementen in Weiß und großflächigen Verglasungen gewährt es spannende Ein- und Ausblicke.
Das Herzstück der Anlage bildet das südlich positionierte Forum. Dieses setzt sich mit einem Zylinder und einem Quader aus zwei schlichten, geometrischen Körpern zusammen. Ebenfalls komplett in Weiß gehüllt, überzieht die Betonfassade des Baus ein Netz aus unregelmäßigen Kurven und Linien, das einen spannenden Wechsel an Fenster und Wandflächen ergibt.
Auf den ersten Blick scheint es, als hätte man dem zylinderförmigen Gebäudeteil im unteren Bereich einen Keil ausgeschnitten. Bei näherer Betrachtung erweist sich die daraus resultierende Auskragung als Hauptzugang, die eine geschützte Eingangssituation schafft. Über eine außenliegende Treppe gelangt man in das Entree. Die Innenräume sind hell und lichtdurchflutet.
Programmatisch ergänzen sich die beiden Baukörper zu einem funktionellen Ganzen. Neben einem hohen kuppelförmigen Raum gibt es außerdem ein Theater und verschiedene Versammlungsräume. Flexible Grundrissgestaltungen ermöglichen eine große Bandbreite an Veranstaltungen. Egal ob private Ausstellung oder Konzert, das Forum kann auf jegliche Anforderungen reagieren und wird somit zur facettenreichen Neuinterpretation eines Kulturraums.
Auf den ersten Blick scheint es, als hätte man dem zylinderförmigen Gebäudeteil im unteren Bereich einen Keil ausgeschnitten. Bei näherer Betrachtung erweist sich die daraus resultierende Auskragung als Hauptzugang, die eine geschützte Eingangssituation schafft. Über eine außenliegende Treppe gelangt man in das Entree. Die Innenräume sind hell und lichtdurchflutet.
Programmatisch ergänzen sich die beiden Baukörper zu einem funktionellen Ganzen. Neben einem hohen kuppelförmigen Raum gibt es außerdem ein Theater und verschiedene Versammlungsräume. Flexible Grundrissgestaltungen ermöglichen eine große Bandbreite an Veranstaltungen. Egal ob private Ausstellung oder Konzert, das Forum kann auf jegliche Anforderungen reagieren und wird somit zur facettenreichen Neuinterpretation eines Kulturraums.




















