// Check if the article Layout ?>
Scheune mit Pool: Wohnhaus an der Seine
Foto: Antonin Ziegler
Im Naturpark Boucles de la Seine ist ein neuer Bewohner eingetroffen. Noch glänzt seine Hülle silbern im Sonnelicht und erweckt den Anschein einer großen Maschine. Bald wird sich aber die Patina auf das Zinkblech gelegt haben. Dann wird das monolithisch wirkende Haus mit wenigen Öffnungen und Walmdach vor allem Assoziationen zu landwirtschaftlichen Gebäuden wecken, wie sie früher in der Landschaft zu finden waren.
Für The Barn wurde das Fachwerk der ehemaligen Futterscheune bereinigt. Die tragenden Holzständer wurden am Fuß mit Beton stabilisiert. Im Dachbereich und an großen Teilen der Wände wurde eine neue Holzlattung aufgebracht. Von außen wurde das Wohnhaus um Wärmedämmung und eine Zinkblechfassade ergänzt, die sich über das Dach und große Teile der Außenwände legt.
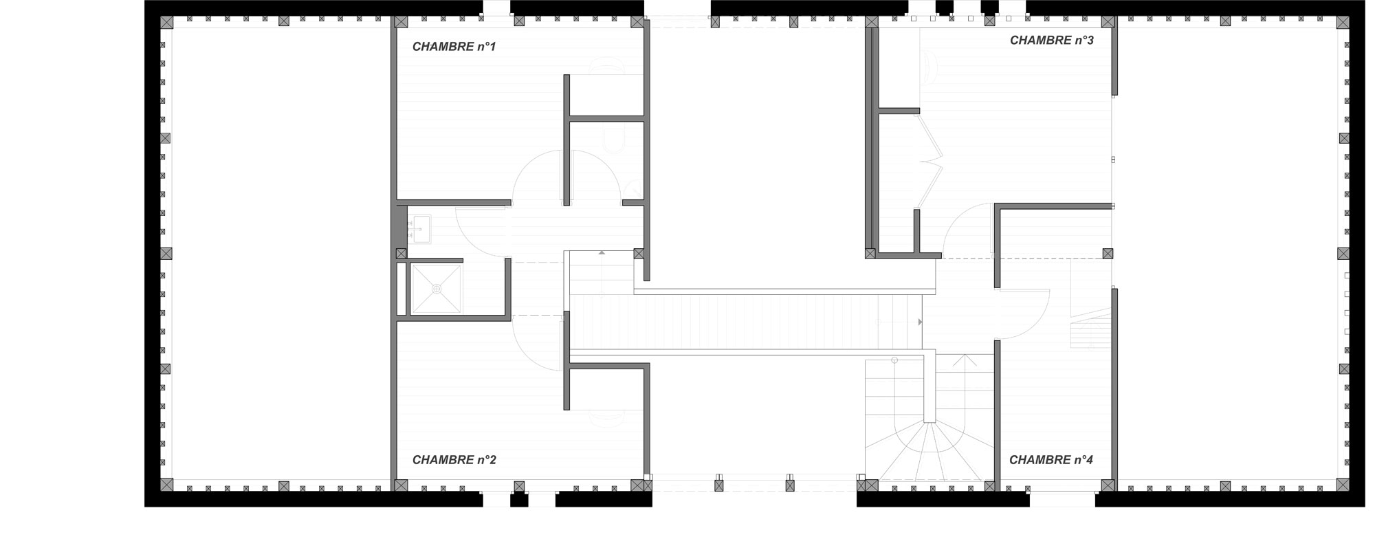
Im Innenraum prägt die Ansicht der Balken alle Räume und strukturiert deren Abfolge. Vier Schlafzimmer schmiegen sich im Obergeschoss an das Dachtragwerk. So bleibt im Erdgeschoss viel Platz für einen großzügigen Wohnraum mit anschließender, offener Küche. Am gegenüberliegenden Ende des länglichen Baukörpers liegt das Schwimmbad. Über ein paar Stufen gelangt man in den vom Fachwerk umgebenen, introvertierten Raum, der zum Entspannen einlädt.
Gezielt spielt Antonin Ziegler mit rustikalen Elementen wie offenliegenden Ofenrohren und unverputzten Wänden aus Porenbetonsteinen. Der Boden aus Gussestrich geht schwellenlos in den gefliesten Küchenboden über. Gigantische, nackte Glühbirnen beleuchten die Arbeitsfläche.
Auf der Fassade durchzieht ein Riss Dach und Wände und das Fachwerk kommt zum Vorschein. Mit diesen Mitteln möchte der Architekt dem Gebäude den Anschein des Unfertigen, den einer modernen Ruine verleihen.
Weitere Informationen:
Nettoraumfläche: 217 m²
Baukosten: 262000 €
Fertigstellung: 2016
Baukosten: 262000 €
Fertigstellung: 2016















