// Check if the article Layout ?>
Schützendes Geflecht
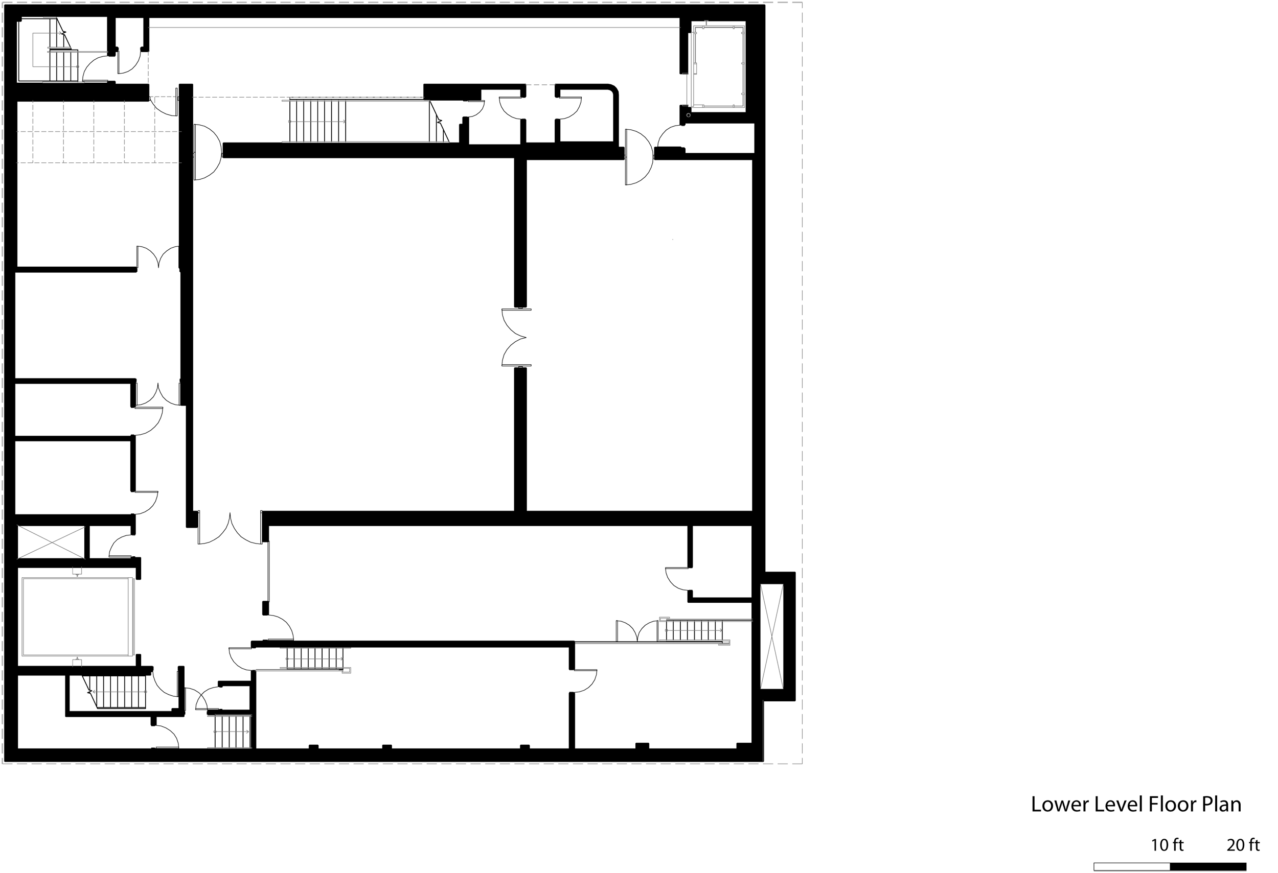
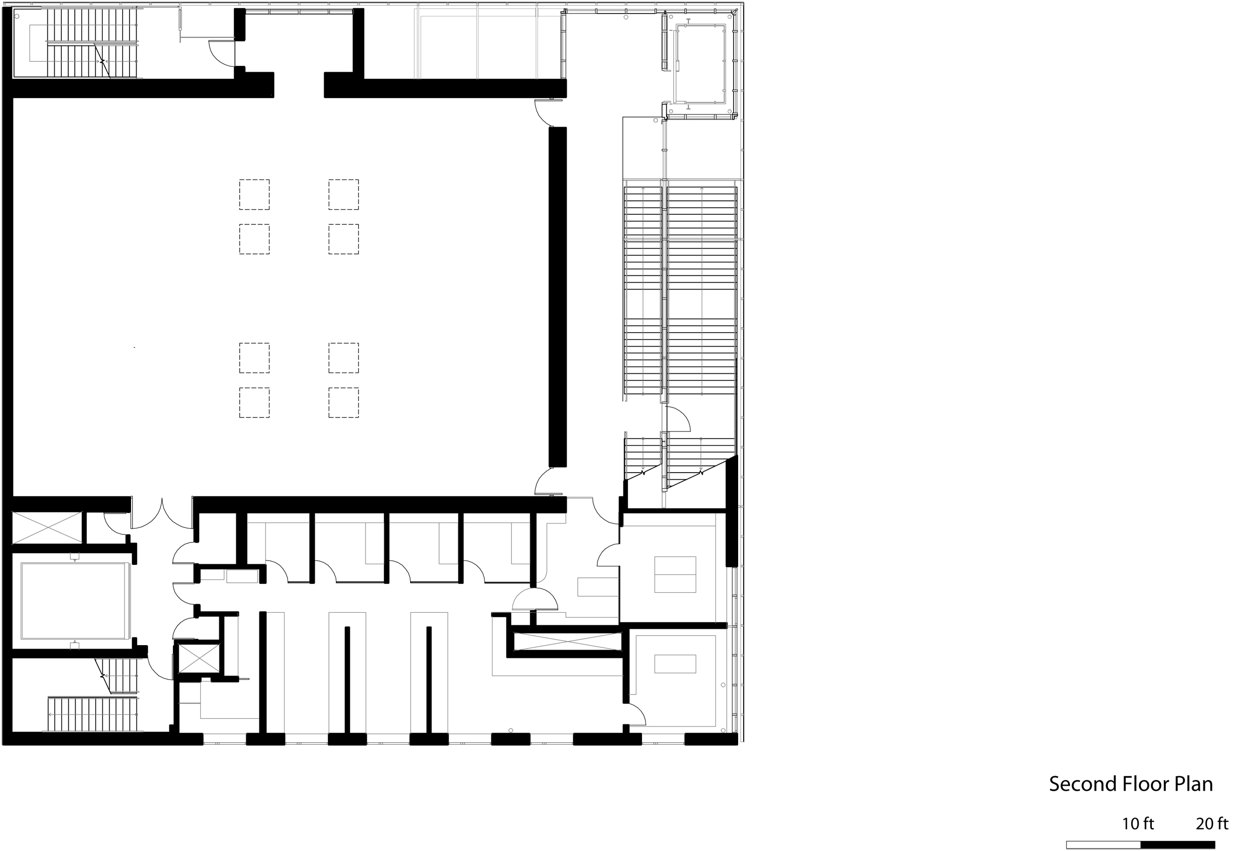
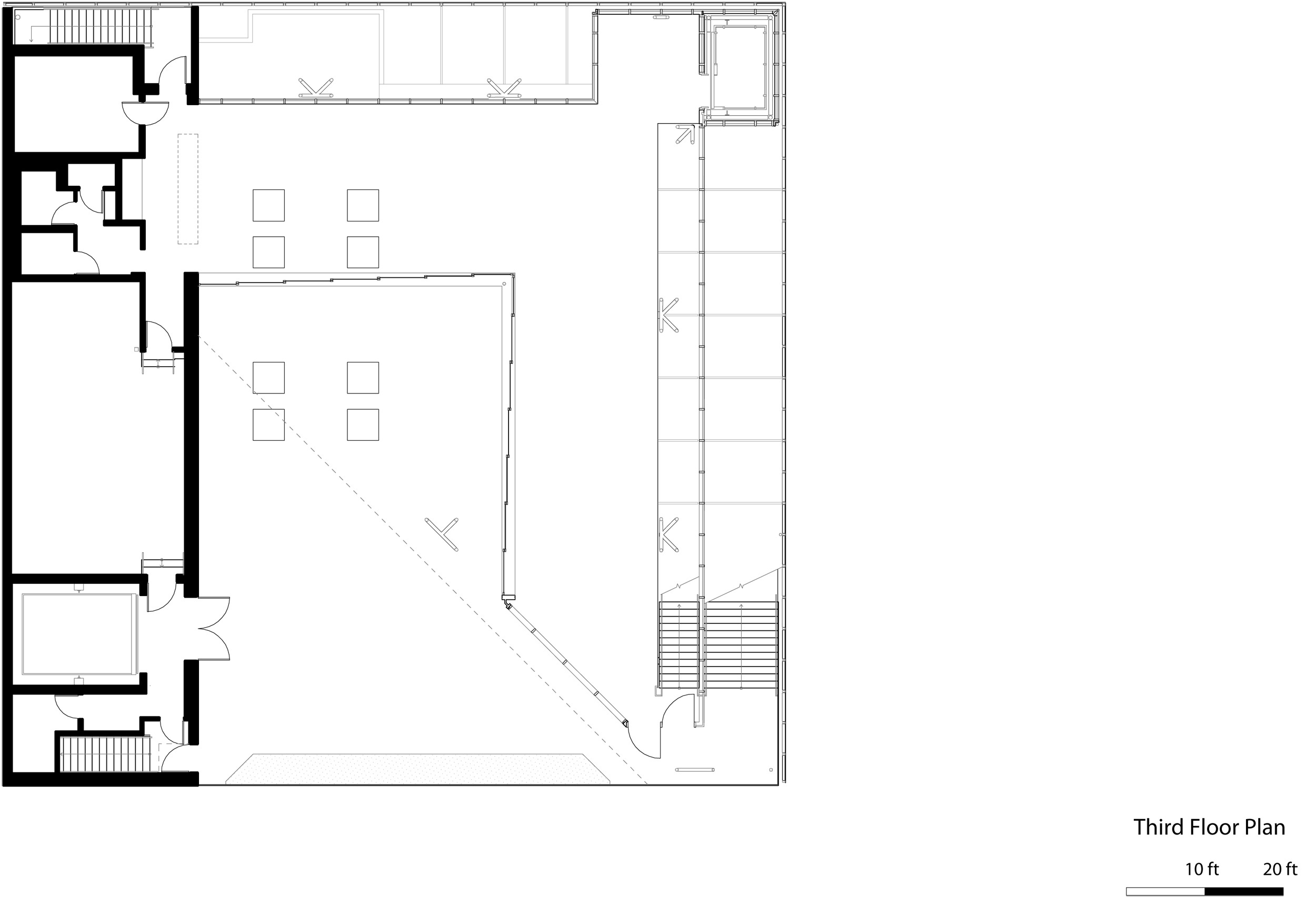
Aspen Art Museum in Colorado
Foto: Michael Moran
Der Architekt und Pritzker-Preisträger Shigeru Ban entwarf mit dem Aspen Art Museum in Colorado sein erstes permanentes Gebäude in den USA. Eine Hülle aus verwebten, rostfarbenen Holzpaneelen erstreckt sich gleichmäßig über dessen gesamte Höhe und Breite.
Transparenz als einladende Geste war die Intention bei der eindrucksvollen Gestaltung des Aspen Art Museum im bekannten Skiort Aspen/Colorado. An einer Straßenecke positioniert, präsentiert der Erweiterungsbau des Kunstmuseums zwei außergewöhnliche, markante Ansichtsflächen mit Wiedererkennungswert.
Eine Hülle aus verwebten, rostfarbenen Holzpaneelen erstreckt sich gleichmäßig über die gesamte Höhe und Breite des Baukörpers. Die Holzstruktur schafft ein ruhiges Gesamtbild und gewährt gleichzeitig einen Blick hinter die Fassade.
Die Möglichkeit, Sichtkontakt zwischen Innen und Außen herstellen zu können, war ein wichtiges Gestaltungskriterium für den japanischen Architekten. Ebenso spielte die von Bergen und Wiesen dominierte Umgebung Aspens eine große Rolle bei der Entwurfsfindung. Ein Skulpturengarten auf dem Dach des Museums bietet eindrucksvolle Ausblicke. Shigeru Bans Vorstellung nach beginnt der Besucher seinen Weg durch das Museum auf dem Dach. Wie ein Skifahrer soll er über eine mächtige Treppe auf das Dach gelangen, die Aussicht genießen und dann langsam „bergab“ durch das Museum wandeln.
weitere Informationen:
Architekt: Shigeru Ban, Tokio
Standort: 637 East Hyman Avenue, Aspen, Colorado, USA
Team: Shigeru Ban (Principal), Dean Maltz (Partner), Nina Freedman (Project Manager), Zachary Moreland (Project Architect)
AIA Team: Ji Young Kim, AIA, Mark Gausepohl, Jesse Levin, Christian Tschoeke, Grant Suzuki, Takayuki Ishikawa
Generalunternehmer: Turner Construction
Executive Architect: Cottle Carr Yaw Architects
Tragwerksplanung: KL&A, Inc In Association With Hermann Blumer (Création Holz GmbH)
Custom Timber Fabricator: Spearhead
KlimaEngineering: Transsolar Inc.
Landschaftsplanung: Bluegreen
Akustik: D.L. Adams Associates, Inc.
Licht: L'Observatoire International
Standort: 637 East Hyman Avenue, Aspen, Colorado, USA
Team: Shigeru Ban (Principal), Dean Maltz (Partner), Nina Freedman (Project Manager), Zachary Moreland (Project Architect)
AIA Team: Ji Young Kim, AIA, Mark Gausepohl, Jesse Levin, Christian Tschoeke, Grant Suzuki, Takayuki Ishikawa
Generalunternehmer: Turner Construction
Executive Architect: Cottle Carr Yaw Architects
Tragwerksplanung: KL&A, Inc In Association With Hermann Blumer (Création Holz GmbH)
Custom Timber Fabricator: Spearhead
KlimaEngineering: Transsolar Inc.
Landschaftsplanung: Bluegreen
Akustik: D.L. Adams Associates, Inc.
Licht: L'Observatoire International




















