// Check if the article Layout ?>
Spiegelndes Fliesenmuster: MAIIAM Contemporary Art Museum in Chiang Mai
Foto: Soopakorn Srisakul
In Chiang Mai, einer Stadt im Norden Thailands, transformierte das Architekturbüro all(zone) ein altes Lagerhaus in ein Museum für zeitgenössische Kunst. Durch den Umbau entstand ein Ausstellungsraum für eine bedeutende, private Kollektion thailändischer und regionaler Kunst sowie ein Kulturzentrum, das Aktivitäten für die Einwohner der Stadt sowie Besucher und Touristen anbietet. Besonders auffälliges Merkmal des Umbaus ist die neue Hauptfassade des Gebäudes, die aus vielen kleinen Spiegeln besteht.
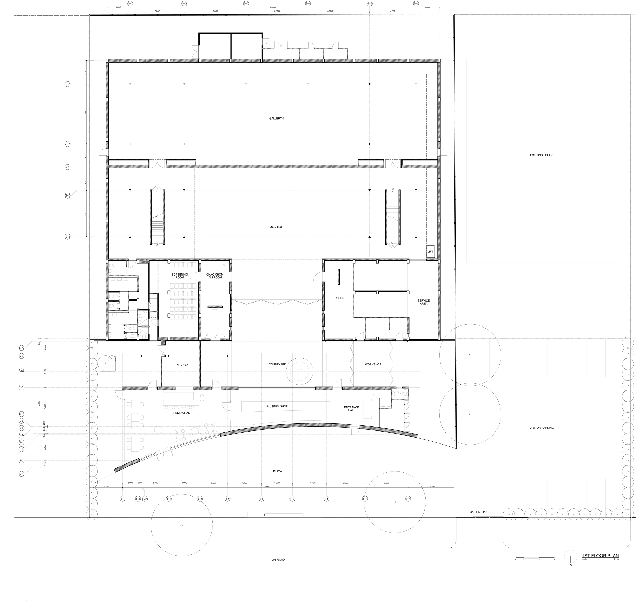
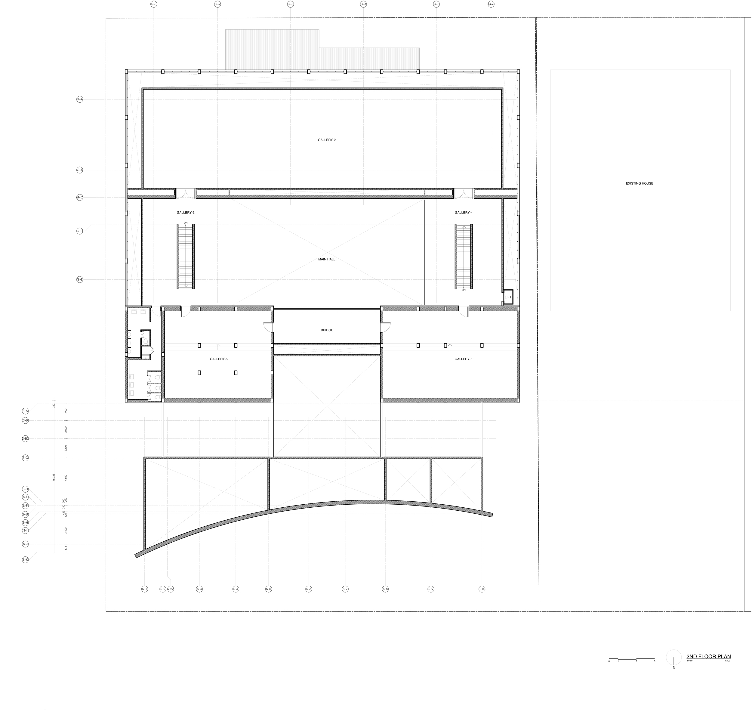
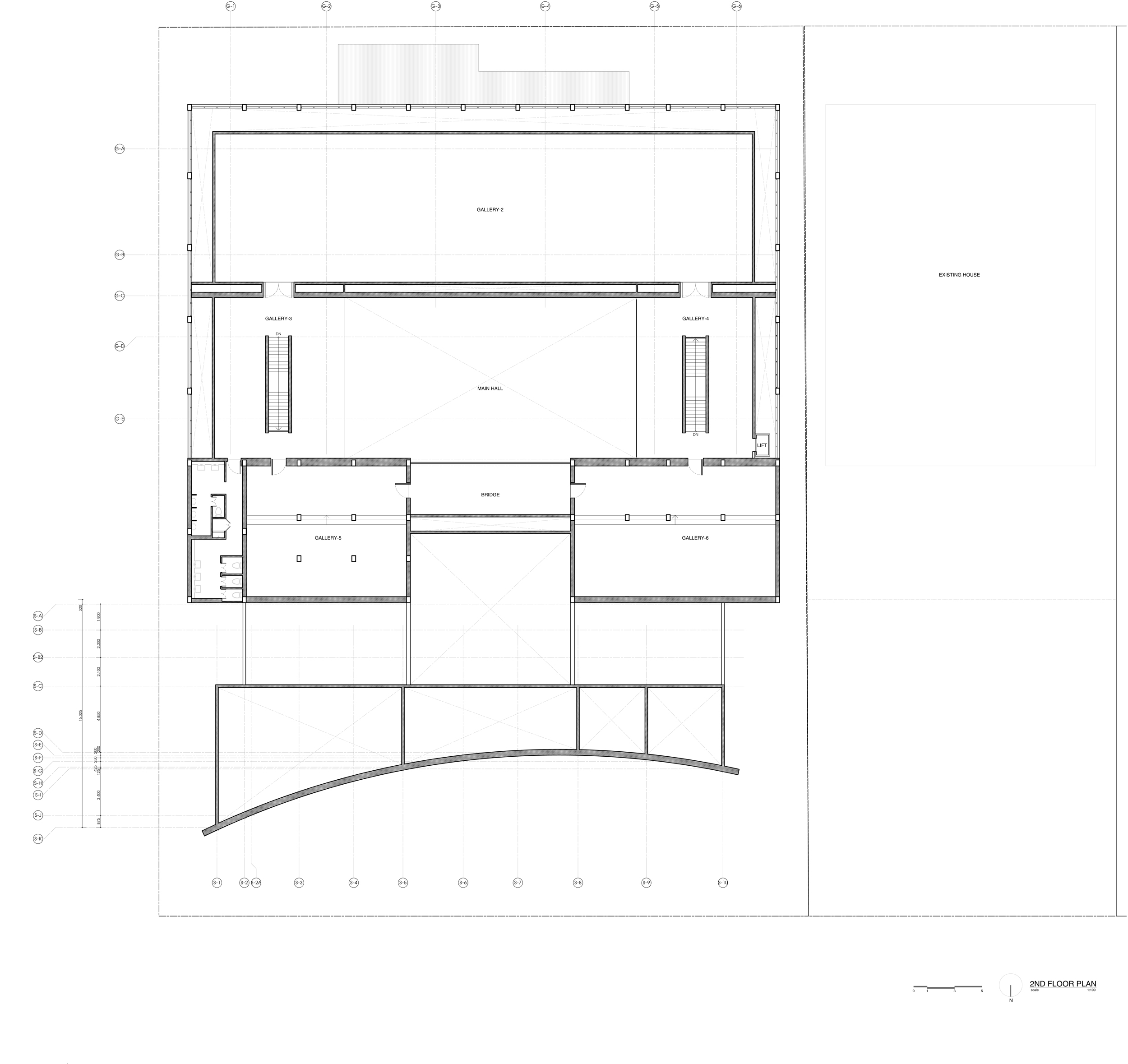
Den beteiligten Architekten von all(zone) ist es gelungen, die bestehende Lagerhalle so zu renovieren und umzubauen, dass auf 3700 Quadratmetern ein dynamischer Raum für Kunst- und Kultur entsteht. Auch im Grundriss lässt sich die Kopplung der beiden Programme, Museum und Kulturzentrum, erkennen: in der renovierten Lagerhalle befinden sich auf zwei Geschossen die Ausstellungsräume, ein vorgelagerter Neubau beherbergt das Kulturzentrum. Die Trennung der beiden unterschiedlichen Bereiche ist von außen klar ablesbar: der Neubau bildet die geschwungene Hauptfassade, die mit reflektierenden, kleinen Spiegeln verziert ist.
Der Unterschied und gleichzeitig das Zusammenspiel beider Bereiche steht im Mittelpunkt des Form- und Materialkonzepts der Architekten. Der industrielle Charakter des ehemaligen Lagerhauses kontrastiert mit den hellen, puristischen Ausstellungsräumen. Eine indirekte Beleuchtung der Kunstwerke wird durch das Einfügen von Lichtschächten erzielt. Der eher nüchtern gehaltene Innenraum wird mit einer expressiven, fast extravaganten Fassade kombiniert. Die Verwendung der Spiegel an der Fassade verweist auf die traditionelle, thailändische Tempel-Architektur. In diesem Fall bilden die Spiegel allerdings ein modernes Fliesenmuster, das die geschwungene Fassade wirken lässt, als sei sie leicht gefaltet. In der ungewöhnlichen Fassade spiegelt sich die Umgebung – das Gebäude wird Teil der Landschaft und wird in diese integriert.
Von dem starken Kontrast zwischen Bestand und Neubau, Innen- und Außenraum, Gebäudehülle und Inhalt lebt das Projekt: der Bestand wird durch eine zeitgenössische Interpretation lokaler Einflüsse aufgewertet.
Den beteiligten Architekten von all(zone) ist es gelungen, die bestehende Lagerhalle so zu renovieren und umzubauen, dass auf 3700 Quadratmetern ein dynamischer Raum für Kunst- und Kultur entsteht. Auch im Grundriss lässt sich die Kopplung der beiden Programme, Museum und Kulturzentrum, erkennen: in der renovierten Lagerhalle befinden sich auf zwei Geschossen die Ausstellungsräume, ein vorgelagerter Neubau beherbergt das Kulturzentrum. Die Trennung der beiden unterschiedlichen Bereiche ist von außen klar ablesbar: der Neubau bildet die geschwungene Hauptfassade, die mit reflektierenden, kleinen Spiegeln verziert ist.
Der Unterschied und gleichzeitig das Zusammenspiel beider Bereiche steht im Mittelpunkt des Form- und Materialkonzepts der Architekten. Der industrielle Charakter des ehemaligen Lagerhauses kontrastiert mit den hellen, puristischen Ausstellungsräumen. Eine indirekte Beleuchtung der Kunstwerke wird durch das Einfügen von Lichtschächten erzielt. Der eher nüchtern gehaltene Innenraum wird mit einer expressiven, fast extravaganten Fassade kombiniert. Die Verwendung der Spiegel an der Fassade verweist auf die traditionelle, thailändische Tempel-Architektur. In diesem Fall bilden die Spiegel allerdings ein modernes Fliesenmuster, das die geschwungene Fassade wirken lässt, als sei sie leicht gefaltet. In der ungewöhnlichen Fassade spiegelt sich die Umgebung – das Gebäude wird Teil der Landschaft und wird in diese integriert.
Von dem starken Kontrast zwischen Bestand und Neubau, Innen- und Außenraum, Gebäudehülle und Inhalt lebt das Projekt: der Bestand wird durch eine zeitgenössische Interpretation lokaler Einflüsse aufgewertet.
Weitere Informationen:
Mitarbeiter: Rachaporn Choochuey, Sorawit Klaimak, Asrin Sanguanwongwan, Aroonrod Supreeyaporn in collaboration with Sarin Nilsonthi
Tragwerksplaner: Next Innovation
Lichtplanung: Kris Manopimok
Tageslichtplanung: Narongwit Areemit
Landschaftsarchitekten: Rachaniporn Tiempayotorn
Bauunternehmer: Urban Form
Fotografen: Soopakorn Srisakul
Mitarbeiter: Rachaporn Choochuey, Sorawit Klaimak, Asrin Sanguanwongwan, Aroonrod Supreeyaporn in collaboration with Sarin Nilsonthi
Tragwerksplaner: Next Innovation
Lichtplanung: Kris Manopimok
Tageslichtplanung: Narongwit Areemit
Landschaftsarchitekten: Rachaniporn Tiempayotorn
Bauunternehmer: Urban Form
Fotografen: Soopakorn Srisakul












