// Check if the article Layout ?>
Stadtbaustein XXL: Konzert- und Theatergebäude Odeon in Odense
Foto: Kirstine Mengel
Wenn es um die Verkehrsplanung geht, haben unsere dänischen Nachbarn seit jeher Mut bewiesen. Die Kopenhagener Fahrradkultur ist fast schon legendär. Auch die 180.000-Einwohner-Stadt Odense auf der Insel Fünen verfolgt seit einigen Jahren einen ehrgeizigen Plan. 2008 beschloss der Stadtrat einstimmig, die vierspurige Thomas B. Thryges Gade, die das Stadtzentrum von Nord nach Süd durchschneidet, für den Autoverkehr zu sperren. Stattdessen soll hier eine Fußgängerzone mit einer neuen Trambahnlinie entstehen. 2014 erfolgte die Sperrung des ersten Streckenabschnitts und bis 2020 soll die Umgestaltung des Quartiers abgeschlossen sein.
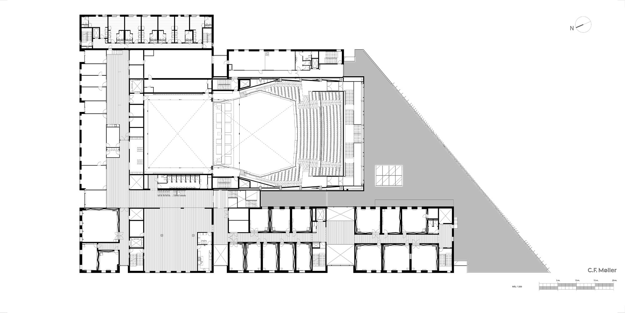
Eine weitere wichtige Weichenstellung für das Quartier gab es schon 2006. Damals gewann ein Konsortium aus dem Bauunternehmen KPC-Byg und dem Architekturbüro C. F. Møller den Investorenwettbewerb für ein neues Kultur- und Konzertzentrum an der einstigen Hauptverkehrsachse. Der Neubaukomplex ist als Public Private Partnership entstanden und wurde im Frühjahr 2017 eingeweiht. Insgesamt umfasst das »Odeon« 32.000 Quadratmeter Bruttogrundfläche. Dazu zählen vier Säle für Konzert, Theater und Tanz, Räume für eine Musikakademie und eine Schauspielschule, Restaurant und Bar, ein Lebensmittelladen sowie einige Wohnungen für Jugendliche.
Dieses massive Bauvolumen wollten die Architekten einigermaßen stadtbildverträglich gliedern. Das ist ihnen zumindest auf der Eingangsseite im Süden, wo der Neubau an deutlich kleinteiligere Wohnbebauung angrenzt, durchaus gelungen. An der immer noch verkehrsumtosten Nordseite hingegen türmen sich die Lochfassaden der Akademie- und Wohntrakte bis zu sechs Geschosse hoch auf. Immerhin zergliedern verglaste Einschnitte den Bau allenthalben in überschaubare Volumina.
Als Fassadenverkleidung wählten die Architekten weiße, senkrecht profilierte Betonfertigteile, die insbesondere im Streiflicht ihren Reiz entfalten. Das Erdgeschoss ist abwechselnd verglast und mit einer Vormauerung aus grauen Ziegeln versehen. Im Inneren des Gebäudes erschließen großzügige Foyers den großen Saal für 1800 Zuschauer, den kleinen Saal mit 300 Plätzen sowie einen Kammermusiksaal und einen Saal für Tanzaufführungen.
Neben weißen Wänden und Lamellendecken bestimmen vor allem die Treppenläufe aus schwarzem Stahl mit Eschen-Stabparkett den Raumeindruck in den Erschließungszonen. Im Großen Saal wählten die Architekten eine eher ungewöhnliche Farbkombination mit grasgrüner Bestuhlung und goldfarbenen Wandverkleidungen. Die gleiche Farbe kehrt auch außen an den Saalwänden wieder. Nach eigenen Angaben wollten C. F. Møller damit den großen historischen Theaterbauten wie dem königlichen Theater in Kopenhagen oder dem »Goldenen Saal« des Wiener Musikvereins ihre Reverenz erweisen.
Eine weitere wichtige Weichenstellung für das Quartier gab es schon 2006. Damals gewann ein Konsortium aus dem Bauunternehmen KPC-Byg und dem Architekturbüro C. F. Møller den Investorenwettbewerb für ein neues Kultur- und Konzertzentrum an der einstigen Hauptverkehrsachse. Der Neubaukomplex ist als Public Private Partnership entstanden und wurde im Frühjahr 2017 eingeweiht. Insgesamt umfasst das »Odeon« 32.000 Quadratmeter Bruttogrundfläche. Dazu zählen vier Säle für Konzert, Theater und Tanz, Räume für eine Musikakademie und eine Schauspielschule, Restaurant und Bar, ein Lebensmittelladen sowie einige Wohnungen für Jugendliche.
Dieses massive Bauvolumen wollten die Architekten einigermaßen stadtbildverträglich gliedern. Das ist ihnen zumindest auf der Eingangsseite im Süden, wo der Neubau an deutlich kleinteiligere Wohnbebauung angrenzt, durchaus gelungen. An der immer noch verkehrsumtosten Nordseite hingegen türmen sich die Lochfassaden der Akademie- und Wohntrakte bis zu sechs Geschosse hoch auf. Immerhin zergliedern verglaste Einschnitte den Bau allenthalben in überschaubare Volumina.
Als Fassadenverkleidung wählten die Architekten weiße, senkrecht profilierte Betonfertigteile, die insbesondere im Streiflicht ihren Reiz entfalten. Das Erdgeschoss ist abwechselnd verglast und mit einer Vormauerung aus grauen Ziegeln versehen. Im Inneren des Gebäudes erschließen großzügige Foyers den großen Saal für 1800 Zuschauer, den kleinen Saal mit 300 Plätzen sowie einen Kammermusiksaal und einen Saal für Tanzaufführungen.
Neben weißen Wänden und Lamellendecken bestimmen vor allem die Treppenläufe aus schwarzem Stahl mit Eschen-Stabparkett den Raumeindruck in den Erschließungszonen. Im Großen Saal wählten die Architekten eine eher ungewöhnliche Farbkombination mit grasgrüner Bestuhlung und goldfarbenen Wandverkleidungen. Die gleiche Farbe kehrt auch außen an den Saalwänden wieder. Nach eigenen Angaben wollten C. F. Møller damit den großen historischen Theaterbauten wie dem königlichen Theater in Kopenhagen oder dem »Goldenen Saal« des Wiener Musikvereins ihre Reverenz erweisen.
Weitere Informationen:
Bauunternehmen: KPC-Byg
Generalplaner: C.F. Møller
Beratende Ingenieure: COWI
Akustik: Gade Mortensen Akustik
Theatertechnik: AIX Theater Planning
Tontechnik: LydRommet
Bruttofläche: 32.000 m2 (inkl. Tiefgarage)
Baukosten: 650 Mio. DKK
Bauunternehmen: KPC-Byg
Generalplaner: C.F. Møller
Beratende Ingenieure: COWI
Akustik: Gade Mortensen Akustik
Theatertechnik: AIX Theater Planning
Tontechnik: LydRommet
Bruttofläche: 32.000 m2 (inkl. Tiefgarage)
Baukosten: 650 Mio. DKK



























