Tradition trifft Luxus: Allmann Sattler Wappner realisieren Hotelumbau
Foto: Brigida González
Die Architekten höhlen die einzelnen Gebäude des Öschberghofs bis auf ihre Grundstruktur aus und ergänzen das Golfresort um neue Baukörper. Eine in Lage und Höhe gestaffelte Anordnung des baulichen Ensembles sorgt für ein stimmiges Gesamtbild. In der Gestaltung orientieren sich Allmann Sattler Wappner Architekten an den, für die Region typischen Schwarzwaldhöfen. Sie interpretieren die traditionelle Bauweise auf moderne Weise und reduzieren die einzelnen Trakte in ihrer Formensprache. Dadurch ergeben sich schlichte Volumen mit Satteldach, die sich in die Natur integrieren. Vertikal strukturierte, graubraune Paneele bekleiden die Fassaden und Dächer. Sie legen sich als Lochblechelemente vor die großflächigen Verglasungen. Die uniformen Außenansichten fassen die einzelnen Baukörper harmonisch zusammen.
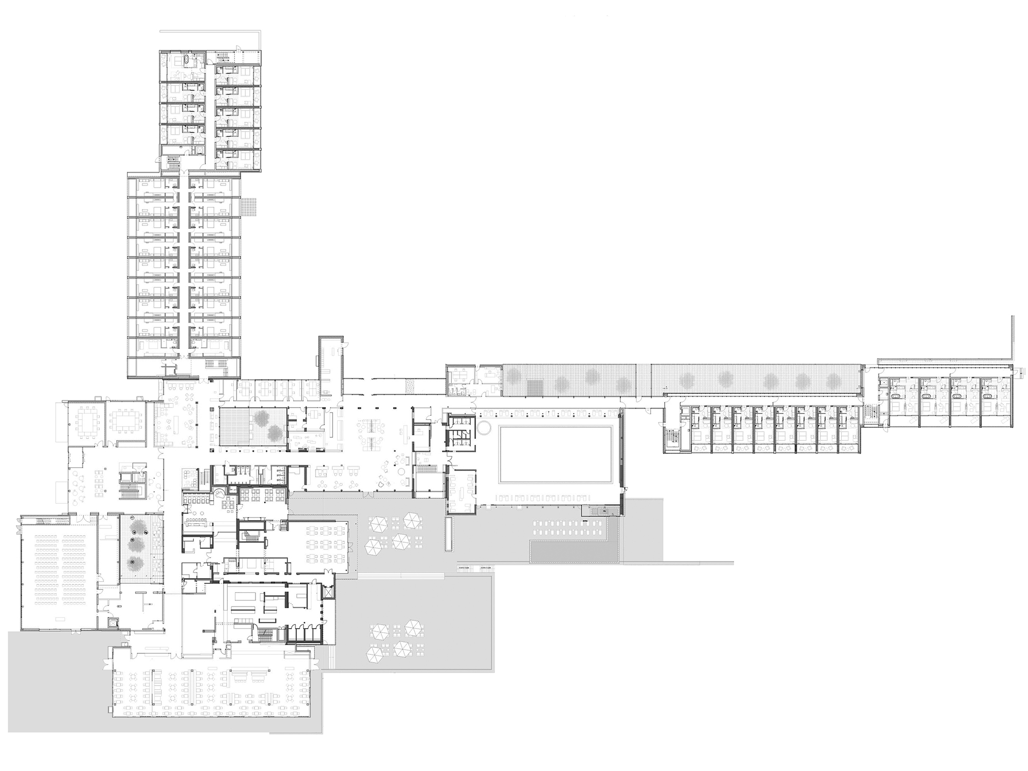
Im Inneren des Öschberghofs sorgen Allmann Sattler Wappner Architekten mittels eines neuen Organisationsprinzips für eine klar ablesbare Gliederung der Bereiche. Sie weisen die unterschiedlichen Funktionen den einzelnen Trakten zu und sorgen so für einfache Orientierung und optimierte Erschließung innerhalb des Hotelensembles. Das Herzstück bildet die zentrale Empfangshalle. Von hier aus gelangt der Gast entweder in eines der 126 Hotelzimmer mit Panoramablick, zum Spa-Bereich mit Pool, in eines der Restaurants oder Bars, zum Tagungszentrum oder auf den Golfplatz.
Die Lochblechfassade ermöglicht Ausblicke in die Landschaft und den Golfplatz und sorgt bei Tag im Inneren für eine geborgene Atmosphäre. Bei Nacht dringt das Leben im Golfresort durch die transluzenten Ansichten nach außen und macht den Öschberghof zum diffusen Leuchtmittel.

















